公寓房(砖头) 出卖 Székesfehérvár - Gyümölcs utca

出卖 Székesfehérvár 公寓房(砖头)
123 m2面积 6 房间
100 000 000 HUF 价格
390909识别码
更多信息

街道 风景

正在修 状态

Tégla 架构

燃气(循环式) 暖气

deplin confort 舒适感

自己的泊车位 停车

几层 1

顶层

没有 电梯

Kiváló 公共交通

美国式厨房

没有 有园子

屋顶房子

2025 修建年

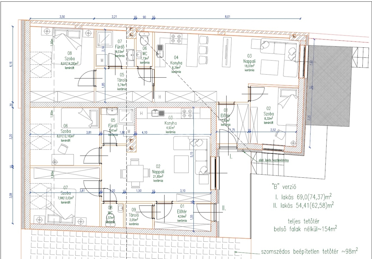
L-004695. Belvárosi tetőtér – két új lakás kialakításának lehetőségével, külön bejárattal
Belvárosi elhelyezkedésű, egybefüggő tetőtéri ingatlan eladó, amelyből két önálló, jól használható lakás alakítható ki.

Az ingatlan külön bejárattal rendelkezik, így a későbbi megosztás funkcionálisan és értékesítés szempontjából is ideális.

A tervezett kialakítás szerint:

• az egyik lakás 69 m²,
• a másik lakás 54 m² alapterületű, mindkettő amerikai konyhás nappali + 2 szobás elrendezéssel.

A lakásokban a fürdőszoba és a WC külön helyiségben kap helyet, ami mind saját célú használat, mind kiadás esetén kifejezetten előnyös.

Az alaprajzi kiosztás jól átgondolt, a helyiségek arányosak, élhető méretűek, természetes fénnyel jól ellátott terek alakíthatók ki.

Az ingatlan kiváló választás:

• befektetőknek, akik két külön lakást szeretnének értékesíteni vagy bérbe adni,
• családoknak, akik egy nagyobb, de akár később is leválasztható ingatlanban gondolkodnak,
• illetve azoknak, akik hosszú távon értékálló belvárosi ingatlant keresnek.

A lokáció miatt az elkészült lakások könnyen és gyorsan kiadhatók, valamint az elhelyezkedés az értéknövekedést is támogatja.

Az ingatlan ritka lehetőség a belvárosban, hiszen az alatta lévő lakás is eladó ami 56 nm nagyságú és akár egybe is nyitható a felette lévő 123 nm területtel így egy kivételes, közel 180 nm lakótér alakítható ki.

Eladási Irány Ár (csak a tetőtér vonatkozásában): 100 MFt

Ha felkeltette érdeklődését, hívja irodánkat bizalommal, éljen ingyenes, személyre szabott hitelügyintézés szolgáltatásunkkal. Segítünk továbbá adásvételhez szükséges ügyvédi közreműködésben, energetikai tanúsítvány, valamint értékbecslés elkészítésében.

For English details please send us a message or an e-mail, thank you
Gergicsné B. Enikő

Gergicsné B. Enikő

随时给我们打电话

+36-30-941- 给我看

更多的广告

房产代理处
GDN 房产联盟 - SZIGET
+36 24 656 320