公寓房(砖头) 出卖 Székesfehérvár - Belváros

出卖 Székesfehérvár 公寓房(砖头)
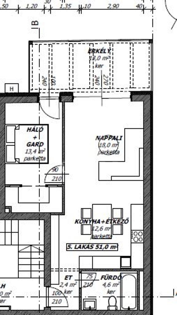
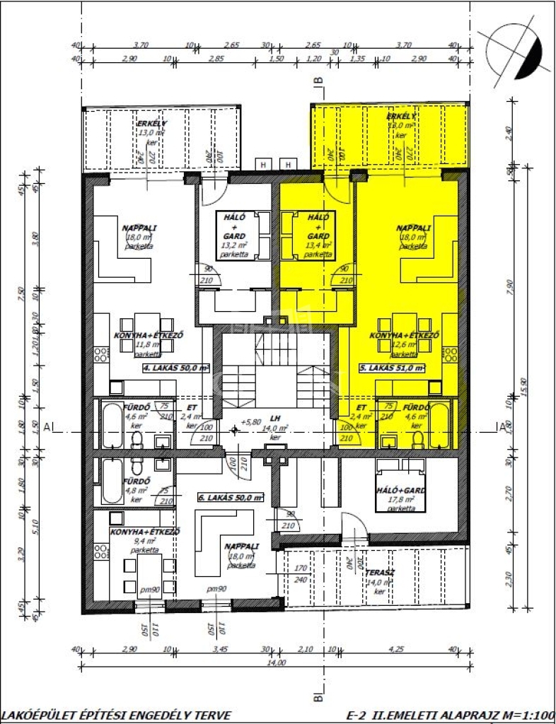
51 m2面积 1 + 1 房间
85 900 000 HUF 价格
392079识别码
更多信息

街道 风景

新建 状态

Tégla 架构

13 m2 阳台

热泵 暖气

deplin confort 舒适感

可以买车库位/泊车位 停车

几层 2

没有 电梯

Kiváló 公共交通

美国式厨房

没有 有园子

2026 修建年

L-004718 Székesfehérvár egyik legkeresettebb, rendezett városrészében, a belvárostól néhány perc sétára kínáljuk ezt a mindössze 7 lakásos, elegáns társasház egyik kiemelt otthonát.

Átadás: 2026 Q4

A kettő szintes, tetőtér-beépítéses épület modern megoldásai, nagy üvegfelületei és minőségi anyaghasználata világos, élhető tereket biztosítanak.

A lakás ideális választás városi életformát kedvelőknek, családoknak vagy otthonról dolgozóknak.
A kényelmet zárt garázs és felszíni parkoló (külön megvásárolható), a biztonságot kaputelefonos távnyitó rendszer biztosítja.

Kiváló elhelyezkedés, ahol minden elérhető: iskola, óvoda, üzletek, orvosi ellátás, közlekedés és szabadidős lehetőségek pár perc sétával.

Minőség, nyugalom, exkluzív környezet – kompromisszumok nélkül.

A projekt megbízható beruházó által valósul meg, több referencia épülettel, társasházzal rendelkezik a városban.

A lakás alaprajza és a helységek listája a képek között megtalálható.

Finanszírozás:

Az ingatlan alkalmas állami támogatások és kedvezményes hitelkonstrukciók igénybevételére (CSOK Plusz, Otthon Start, Babaváró). Irodánk teljes körű, díjmentes ügyintézést biztosít.

Irányár: 85,9 millió Ft

Amennyiben felkeltette az érdeklődését, hívjon bizalommal, és egyeztessünk időpontot a megtekintésre!

Éljen ingyenes, személyre szabott hitelügyintézés szolgáltatásunkkal. Segítünk továbbá adásvételhez szükséges ügyvédi közreműködésben, energetikai tanúsítvány, valamint értékbecslés elkészítésében.

For English details please send us a message or an e-mail, thank you
Kémeri-Szekernyés Tímea

Kémeri-Szekernyés Tímea

随时给我们打电话

+36-30-248- 给我看

更多的广告

房产代理处
GDN 房产联盟 - SZIGET
+36 24 656 320