公寓房(砖头) 出卖 Szombathely - Béke tér

出卖 Szombathely 公寓房(砖头)
68 m2面积 3 房间
50 000 000 HUF 价格
390127识别码
更多信息

60 m2 地皮

外面是园子 风景

正在修 状态

Tégla 架构

楼房中央暖气 暖气

deplin confort 舒适感

自己的泊车位 停车

几层 Ground floor

没有 电梯

Bun 公共交通

美国式厨房

有 有园子

1983 修建年

Dél 方向

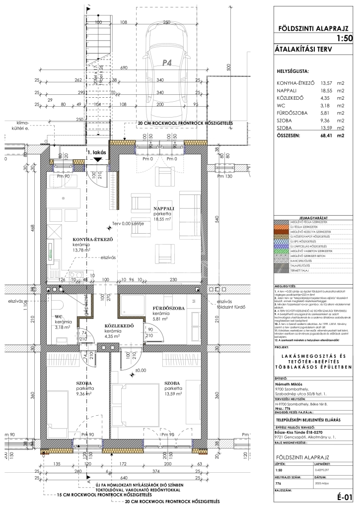
Szombathely kedvelt herényi városrészén átalakított, jelenleg felújítás alatt álló ingatlan egy sorház középső földszinti lakása eladó. Az ingatlanhoz külön parkoló és előkert is tartozik. Szerkezetileg kiváló állapotú lakás minőségi anyagok beépítésével, kulcsrakész állapotban kerül átadásra. Leendő tulajdonosa saját ízlésének megfelelően kérheti a burkolatokat, beltéri ajtókat, szanitereket, csaptelepeket. Értékhatáron belül, vagy ráfizetéssel akár drágább anyagok megválasztásával. A ház északi oldalára 20 cm vastag, a déli oldalra 15 cm vastag homlokzati szigetelés kerül. Háromrétegű, fokozottan hang-és hőszigetelt nyílászárói beépített tokos redőnyökkel, szúnyoghálóval felszereltek. A lakás fűtése házközponti, egyedi hőmennyiség mérővel felszerelt. A melegvizet villanybojler szolgáltatja. Nappalijában hűtő-fűtő klíma előkészítés történik. A 68.41 m2-es lakás kettő hálószobával, nappali étkező- konyhával, fürdő, wc-vel rendelkezik. A vizesblokkokból a pára elvezetésérte elszívó kerül beépítésre. Ha felkette érdeklődését, kérem keressen.
Apolzan Magdalena

Apolzan Magdalena

随时给我们打电话

+36-70-908- 给我看

更多的广告

房产代理处
GDN 房产联盟 - SZIGET
+36 24 656 320