公寓房(砖头) 出卖 Budapest XII. 市区 - Kútvölgy kertkapcsolatos lakás-ház

出卖 Budapest XII. kerület 公寓房(砖头)
93 m2面积 4 房间
169 000 000 HUF 价格
388131识别码
更多信息

1100 m2 地皮

全景 风景

待翻新 状态

Tégla 架构

20 m2 阳台

燃气(循环式) 暖气

Dupla komfort 舒适感

自己的泊车位 停车

几层 Ground floor

没有 电梯

Mediu 公共交通

No 美国式厨房

有 有园子

1940 修建年

公关费用 85 000 HUF

Eladásra kínálunk Kútvölgy kedvelt részén egy Ősfás 1100 m2 területen elhelyezkedő patinás házban elhelyezkedő 93 m2 lakást mely 250 m2-es közvetlen kertkapcsolattal rendelkezik.

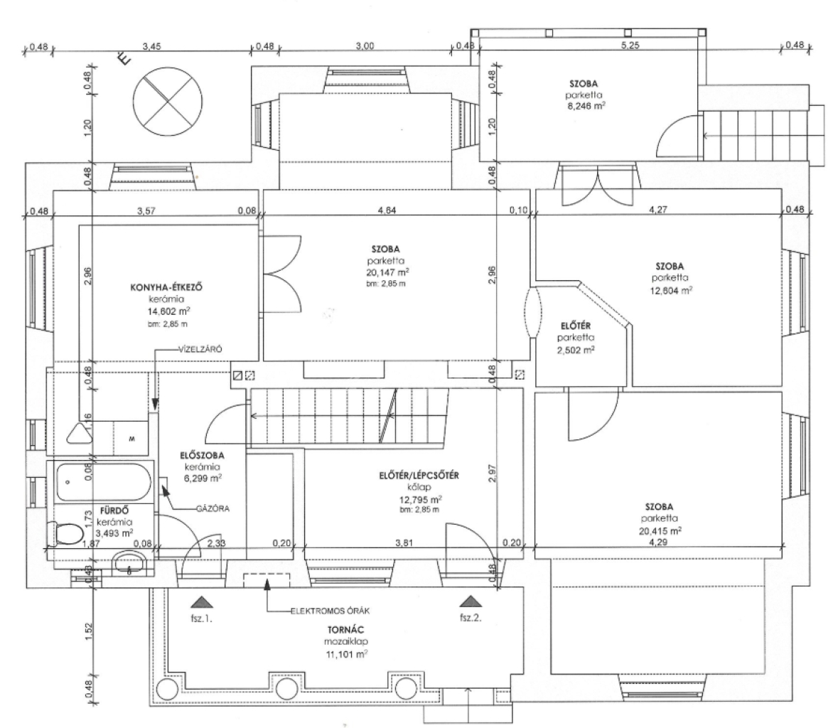
A 93 m2-es lakás az épület földszintjén helyezkedik el.

Lakás elrendezése:

Földszint:
• 3 db. 20,1 - 20,1 - 12,6 m2, 12,6 m2 szoba, + 8,2 m2 télikert
• Konyha - étkező 14,6 m2
• Fürdőszoba 6,2 m2
• Közlekedő 6,2 m2
• Tornác 5,5 m2

Tároló - pince:
• 30 m2

Kert:
• Közvetlen 250-300 m2 kertrész + kerti kemence
• Kocsibeálló 2 autónak is kialakitható terület

A ház 1940-ben épült 55 cm vastag téglafalakkal. Az épület szerkezetileg jó állapotú – feljutása és korszerűsítése esedékes.

Az ingatlant fiatal pároknak -családoknak egyaránt ajánljuk.

A társasházban párhuzamosan kerül értékesítésre a hirdetésben szereplő 93 m2 és a felette található 100 db. első emeleti lakás.

Amennyiben Önnek a vásárláshoz szüksége lenne hitelre egyedi kedvezménnyel,kezdeményezheti a kapcsolatfelvételt bankfüggetlen hitelügyintézőinkkel, teljesen DÍJMENTESEN.

Az ingatlan részletes ismertetése és bemutatása előre egyeztetett időpontban lehetséges, melyet nagyon rugalmasan kezelünk, akár HÉTVÉGÉN is.

Amennyiben felkeltette az érdeklődését, további kérdéseivel kapcsolatban várom jelentkezését!
Apolzan Magdalena

Apolzan Magdalena

随时给我们打电话

+36-70-908- 给我看

更多的广告

房产代理处
GDN 房产联盟 - SZIGET
+36 24 656 320

请给我回电话

相似的房产