Week-end house For sale Gárdony - Téliesített ikernyaraló

For sale Gárdony Week-end house
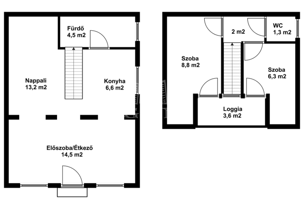
59 m2Space 1 + 2 Rooms
49 900 000 HUF Price
391490ID number
Other data

185 m2 Building lot

Garden view View

In good condition Condition

Brick Structure

Gas (circulating) Heating

Full comfort Comfort

Self-parking Parking

Good Public transport

No American kitchen

Exist Access to the garden

1980 Year of construction

South Orientation

4681. Agárdon, pár perc sétára a tóparttól, csendes utcában található, 80-as években épült, 2018-ban felújított, egész évben lakható, gázcirkó fűtéses, hőszigetelt, műanyag nyílászárókkal rendelkező, tetőtér beépítéses, 59 m2 lakóterületű, nappali + 2 hálószobás ikernyaraló, inverteres klímával, gondozott 185 m2-es kertrésszel eladó. Ár: 49,9 Mft
Gergicsné B. Enikő

Gergicsné B. Enikő
Advertiser

Call me with confidence

+36-30-941-Show!

Other listings

Real Estate Agency
GDN Real Estate Network - SZIGET
+36 24 656 320

Call me back

Similar properties