Week-end house For sale Gárdony - Téliesített ikernyaraló egyben

For sale Gárdony Week-end house
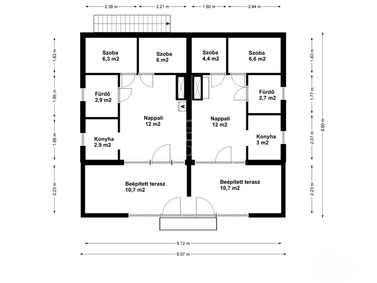
108 m2Space 3 + 4 Rooms
50 000 000 HUF Price
383636ID number
Other data

578 m2 Building lot

Garden view View

In fair condition Condition

Brick Structure

Gas (circulating) Heating

Full comfort Comfort

Self-parking Parking

Medium Public transport

No American kitchen

Exist Access to the garden

1975 Year of construction

South Orientation

4843. Gárdonyban a számozott utcák felső szakaszában, 1974-76 között épült, tégla szerkezetű, 2 + 1 lakrészre kialakított, téliesített (gázközponti + cserépkályha fűtéses), 40 + 40 m2 földszint + 28 m2 tetőtér alapterületű, átlagos/felújítandó állapotú hétvégi ház, udvar megjelölésű ingatlan, 578 m2-es összközműves telken, fedett kocsibeállóval, szaletlivel, tárolókkal, 4 m2 pincével eladó. Ár: 50 Mft
Gergicsné B. Enikő

Gergicsné B. Enikő
Advertiser

Call me with confidence

+36-30-941-Show!

Other listings

Real Estate Agency
GDN Real Estate Network - SZIGET
+36 24 656 320

Call me back

Similar properties