Квартира (кирпичная) Продается Budapest VIII. mикрорайон - Harminckettesek tere

Продается Budapest VIII. kerület Квартира (кирпичная)
52 m2Площадь 2 Комната
62 900 000 HUF Цена
394513Идентификация
Прочие данные

Уличная вид

Подлежит ремонту Cостояние

Tégla Kонструкция

Другое отопление

Comfort Kомфортность

На улице, в общественном месте парковка

Этаж 4

Последний этаж

Есть Лифт

Kiváló Общественный транспорт

No Американская кухня

Нет Есть сад

1902 Год строительства

Общие сборы 17 000 HUF

Észak Расположение

Befektetők figyelem! Két garzon lehetőség a belváros szívében, a Harminckettesek tere közelében!

Budapesten, a **Harminckettesek tere közelében**, **liftes, akadálymentesített, jó állapotú társasházban** eladó egy **teljesen felújítandó**, 4. emeleti, utcai, világos lakás, amely ideális befektetésre vagy átalakításra. **Idén megtörténik a belső függőfolyósok és a homlokzat felújítása**, így hosszú távon is kényelmes, értékálló befektetést jelent.

** Lakás paraméterei:**
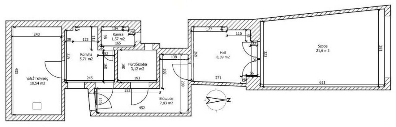
✅ Valós alapterület: 59 m² (tulajdoni lapon 52 m²)
✅ Szobák: 2 (átalakítható akár 3 szobássá, vagy két külön lakássá)
✅ Konyha és fürdő ablakos
✅ Közös költség: 17.000 Ft
✅ Liftes, akadálymentesített, rendezett társasház

** Környék és közlekedés:**
✅ Közvetlenül a **Körúthoz közel**, pezsgő belvárosi élet
✅ Sok **üzlet, kávézó, bár, étterem, szolgáltatás** a környéken
✅ Gyors közlekedés: busz és trolibusz a ház előtt, villamos mindössze 50 méterre

** Ajánlott:**
✅ Befektetőknek, akik gyorsan alakítható, két garzonként is működő lakást keresnek
✅ Felújítóknak és saját igényre alakítóknak

-- English --

**Attention Investors! Opportunity for Two Studios Near Harminckettesek Square!**

In Budapest, **near Harminckettesek Square**, an **elevator-equipped, accessible, well-maintained building** offers a **fully renovatable**, 4th-floor, street-facing, bright apartment—perfect for investment or conversion. **Interior corridors and facade renovations are scheduled for this year**, ensuring a long-term, valuable investment.

** Apartment Details:**
✅ Actual area: 59 m² (52 m² on the title deed)
✅ Rooms: 2 (can be converted into 3 rooms or split into two separate apartments)
✅ Kitchen and bathroom with windows
✅ Monthly maintenance fee: 17,000 HUF
✅ Elevator, accessible, well-maintained building

** Neighborhood and Transport:**
✅ Very close to the **Grand Boulevard**, vibrant downtown life
✅ Plenty of **shops, cafés, bars, restaurants, and services** nearby
✅ Excellent public transport: bus and trolleybus stops in front of the building, tram just 50 meters away

** Recommended For:**
✅ Investors looking for a quickly convertible apartment, suitable as two studios
✅ Renovators and buyers who want to customize to their own taste

B.Zs.
Köő Zsolt

Köő Zsolt

Звоните нам с доверием

+36-20-234- Показать

Другие объявления

Aгентств недвижимости
GDN Сеть недвижимости - SZIGET
+36 24 656 320