Ikerház Eladó Kerepes - Alföldi utca

Eladó Kerepes Ikerház
120 m2Alapterület 4 + 2 Szoba
165 000 000 Ft Ár
Hitelkalkuláció folyamatban... Loading
395485Azonosító
További adatok

500 m2 Telek

Kertre néző Kilátás

Újszerű Állapot

Ytong Szerkezet

50 m2 Erkély/terasz

Gáz (cirkó) Fűtés

Összkomfort Komfort

Saját beálló Parkolás

Tömegközlekedés

Amerikai konyhás

Van Kertkapcsolat

2020 Építés éve

Délkeleti Tájolás

Modern otthon. Privát kert. Nyugodt mindennapok.
Van az a ritka érzés, amikor egy ház már az első pillanatban rendezettnek, átgondoltnak és szerethetőnek érződik.
Ez a 2020-ban épült önálló ikerházfél pontosan ilyen.
Csendes, igényes környezetben található, saját, parkosított kerttel, nagy terasszal és olyan kényelmi megoldásokkal, amelyek hosszú távon is valódi otthonná teszik.

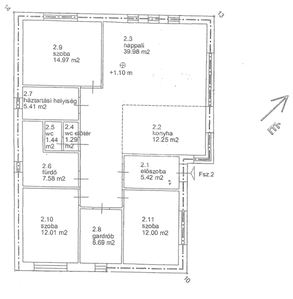
A ház 119 m²-es, jól élhető elosztással:
tágas nappali – étkező – konyha egy légtérben
3 külön nyíló szoba
gardrób
háztartási helyiség
külön WC
fürdőszoba
A nagy üvegfelületek miatt a ház világos és barátságos, a közel 2,9 méteres belmagasság pedig tovább növeli a térérzetet.

A nappali előtt egy közel 50 m²-es terasz található, részben fedett kialakítással, ami szinte plusz élettérként használható tavasztól őszig.
A kert rendezett és valóban használható:


parkosított környezet
automata öntözőrendszer
kialakított medencehely
9 m²-es tároló kisház
elektromos kapu
fedett gépkocsi-beálló két autónak
Ez az a kert, ahol jó érzés időt tölteni, nem csak fenntartani.

A műszaki tartalom is erős:
ytong falazat
vasbeton födém
fa nyílászárók elektromos redőnnyel
mindenhol szúnyogháló
padlófűtés
hűtő-fűtő klíma
4 kW-os napelem rendszer
kiépített riasztó és kamerarendszer
A ház energiatudatos, modern és biztonságos.

Az ingatlan társasházi formában működik, de a ház önálló helyrajzi számon szerepel, a telek teljesen körbekerített, a használat rendezett és jól elkülönített.

Ez az otthon ideális azoknak, akik:
– modern, igényes házat keresnek
– fontos számukra a privát kert és a nyugalom
– nem szeretnének éveket felújítással tölteni

Irányár: 160 millió Ft
Van, amikor egy ház nem akar többnek látszani, mint ami.
Egyszerűen csak jó benne lenni. És ezt ritkán tudja egy ingatlan ilyen természetesen.
Hívjon bizalommal – az ilyen otthonokat érdemes személyesen is átélni.
Csík Zsolt

Csík Zsolt

Hívjon bizalommal

+36-30-641-Mutasd!

További hirdetéseim

Ingatlaniroda
GDN Ingatlanhálózat - SZIGET
+36 24 656 320