Családi ház Eladó Kerepes - Panorámás családi ház

Eladó Kerepes Családi ház
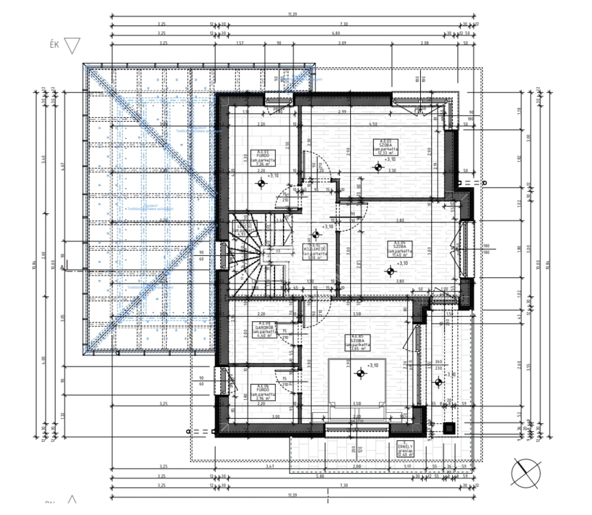
156 m2Alapterület 4 Szoba
165 000 000 Ft Ár
Hitelkalkuláció folyamatban... Loading
386773Azonosító
További adatok

300 m2 Telek

Panoráma Kilátás

Újszerű Állapot

Tégla Szerkezet

60 m2 Erkély/terasz

Hőszivattyú Fűtés

Luxus Komfort

Saját garázs Parkolás

Tömegközlekedés

Amerikai konyhás

Van Kertkapcsolat

2025 Építés éve

Délkeleti Tájolás

PRÉMIUM LUXUS OTTHON – KEREPES PANORÁMA LAKÓPARKBAN, ÖRÖKPANORÁMÁVAL!

Álomotthon, ahol a luxus, a modern technológia és a mediterrán hangulat találkozik!
Eladó egy exkluzív, újépítésű, kulcsrakész luxus családi ház, amely Kerepes legmagasabb, legcsendesebb pontján helyezkedik el, páratlan panorámával. Ez az ingatlan nem csupán egy ház, hanem egy életstílus – olyan igényes vevőknek, akik kompromisszumok nélkül keresnek otthont.

Kötelezően megvásárlandó beépített ingóság értéke 20.000.000.-, mely a vételáron felül fizetendő.

Főbb jellemzők:

300 m²-es telek

158 m²-es, egyedi tervezésű családi ház

Nappali + 3 hálószoba

Előszoba, közlekedő

2 luxus fürdőszoba, 3 mellékhelyiség

Gardróbszoba

Terasz és garázs

Luxus felszereltség és belső tér:

A ház teljes egészében prémium anyagokkal és modern technológiával készült:

Felsőkategóriás konyhagépek: Miele, Neff, Bosch, Liebherr

Intelligens hűtő (jégkészítő, bevásárlólista, receptek)

Beépített Miele kávéfőző, 4D sütő

Extra halk, Zeolith rendszerű mosogatógép

Indukciós főzőlap

Érintésre nyíló borhűtő

Beépített konyhamalac a mosogatóban

A tágas, világos nappali berendezve várja új tulajdonosát, a fürdőszobákban pedig felső kategóriás, bronz és rosegold színekben pompázó TRES csaptelepek és zuhanyok, valamint érintésmentes szappanadagolók és szemetesek szolgálják a kényelmet.

Okos otthon és biztonság:

Smart home rendszer

Elektromos redőnyök, szúnyoghálók, pliszék

Tokba nyíló, mágneszáras, rosegold betétes beltéri ajtók

Ajax riasztórendszer, videókaputelefon, elektromos kapu

Kamera rendszer, telefonról vezérelhető teljes ház

Energiahatékonyság és kényelem:

Hőszivattyús fűtés-hűtés rendszer

Padlófűtés és fan-coil egységek

Alacsony rezsiköltség

Lokáció és infrastruktúra:

A környék nyugodt, családi házas övezet, ugyanakkor minden elérhető közelségben: iskola, óvoda, bevásárlási lehetőségek (Lidl, Aldi, Penny, Auchan), posta, benzinkút, csomagátvevő pontok. A HÉV megálló kb. 15 perc sétával elérhető, így a belváros könnyen megközelíthető.

Opciók:

Az ingatlan bútorozatlanul kulcsrakészen eladó. 165 000 000.- Ft

Igény esetén a képeken látható teljes luxus berendezéssel együtt is megvásárolható – ebben az esetben Önnek csak a személyes holmiját kell hoznia, és már élvezheti is a stresszmentes költözést. 185 000 000.-

INGYENES hitel tanácsadás! CSOK+ Ügy intézés!
BANKFÜGGETLEN hitelcentrumunk minden elérhető bank és hitelintézet ajánlatát versenyezteti az Ön kedvéért, ráadásul DÍJMENTESEN.
Önnek nincs más dolga, mint elbeszélgetni munkatársunkkal, aki a hallott információk alapján versenyre hívja a bankokat, hogy Ön hosszú távon is a legjobb konstrukciót kaphassa. A legjobb ajánlatokból végül Ön választhatja ki a nyertest.
Munkatársaink sokéves szakmai tapasztalattal várják Önt, előre egyeztetve akár a normál munkaidő után is.

Amennyiben hirdetésem felkeltette érdeklődését, várom hívását, akár hétvégén is! V.I.
Gergicsné Veér Annamária

Gergicsné Veér Annamária

Hívjon bizalommal

+36-20-396-Mutasd!

További hirdetéseim

Ingatlaniroda
GDN Ingatlanhálózat - SZIGET
+36 24 656 320

Visszahívást kérek

Hasonló ingatlanok

Keressen bennünket