Wohnung (Panel) Verkauf Budapest XI. bezirk - Etele út

Verkauf Budapest XI. kerület Wohnung (Panel)
48 m2Wohnfläche 2 Zimmer
80 000 000 HUF Kaufpreis
393337ID nummer
Weitere Informationen

Blick auf den Garten Ansicht

Erneuert Zustand

Beton Struktur

4 m2 Balkon/terrasse

Fernheizung mit individuellem Messer Heizung

voller Komfort Komfort

Auf Gemeindeflächen Parkplatz

Etage 2

Es gibt Aufzug

Ausgezeichnet Öffentliche Verkehrsmittel

Nein Amerikanische Küche

Es gibt nicht Zugang zum garten

1970 Baujahr

Süden Orientierung

Bikás park és a Fehérvári út között, a 4-es metró megállójától mindössze 3 perc sétára, parkos környezetben eladó egy déli–északi tájolású, két szobás, tehermentes lakás eladó.

A lokáció kiváló: a közelben található a 4-es metró, az Etele Pláza, az Újbuda Center, az Allee bevásárlóközpont, valamint a Kelenföldi pályaudvar.

A társasház részt vett a Panel Programban, így teljes körű felújításon esett át: hőszigetelt homlokzat, rendezett, szép állapotú lépcsőház és megbízható közös képviselet jellemzi.

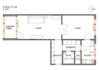
A lakás a második emeleten helyezkedik el, világos és jól átszellőztethető. Déli oldalon az Etele úttal párhuzamos zöld sávra, északi irányban a ház mögötti parkolóra és játszótérre néz.

Az ingatlan praktikus elosztású, napfényes, jó állapotú. A szobák külön bejáratúak, kétszárnyú ajtóval elválaszthatók vagy igény szerint egybenyithatók, így akár irodának is kiváló választás lehet.

A konyha ablakkal rendelkezik, így természetes módon szellőztethető. A déli oldalon található beépített erkély hőszigetelt, redőnnyel felszerelt ablakai teljesen kitárhatók.

A lakás teljes villamoshálózata (vezetékek, lakáselosztó, biztosítékok, szerelvények és világítás) felújításra került, a lakás frissen festett. Új, gépesített konyhabútor került beépítésre.

Az ingatlanban beépített szekrények, bútorok (új kinyitható kanapé, design komódok, lámpák, modern szőnyeg és függönyök), valamint hűtőszekrény és mosógép is található.

A lakáshoz a szinten közös tároló tartozik.
Az alaprajz méretarányos és pontos, a feltöltött fotók a valós állapotot mutatják.

Megállapodás szerint Otthon Start és CSOK Plusz támogatással is megvásárolható.
A lakás azonnal költözhető.

P.P.
Ravasz Csongor

Ravasz Csongor
Inserent

Rufen Sie uns mit Vertrauen

+36-30-603- Zeig!

Andere eigene Anzeigen

Immobilienbüro
GDN Immobilien Netzwerk - SZIGET
+36 24 656 320