Wohnung (Panel) Verkauf Budapest XI. bezirk - Etele út

Verkauf Budapest XI. kerület Wohnung (Panel)
50 m2Wohnfläche 2 Zimmer
81 900 000 HUF Kaufpreis
394488ID nummer
Weitere Informationen

Straße Ansicht

Erneuert Zustand

Panel Struktur

4 m2 Balkon/terrasse

Fernheizung Heizung

voller Komfort Komfort

Auf Gemeindeflächen Parkplatz

Etage 5

Es gibt Aufzug

Ausgezeichnet Öffentliche Verkehrsmittel

Nein Amerikanische Küche

Es gibt nicht Zugang zum garten

1980 Baujahr

Gemeinsame Gebühren 22 150 HUF

Südwesten Orientierung

Csak a mi irodánk kínálatában elérhető ajánlat!

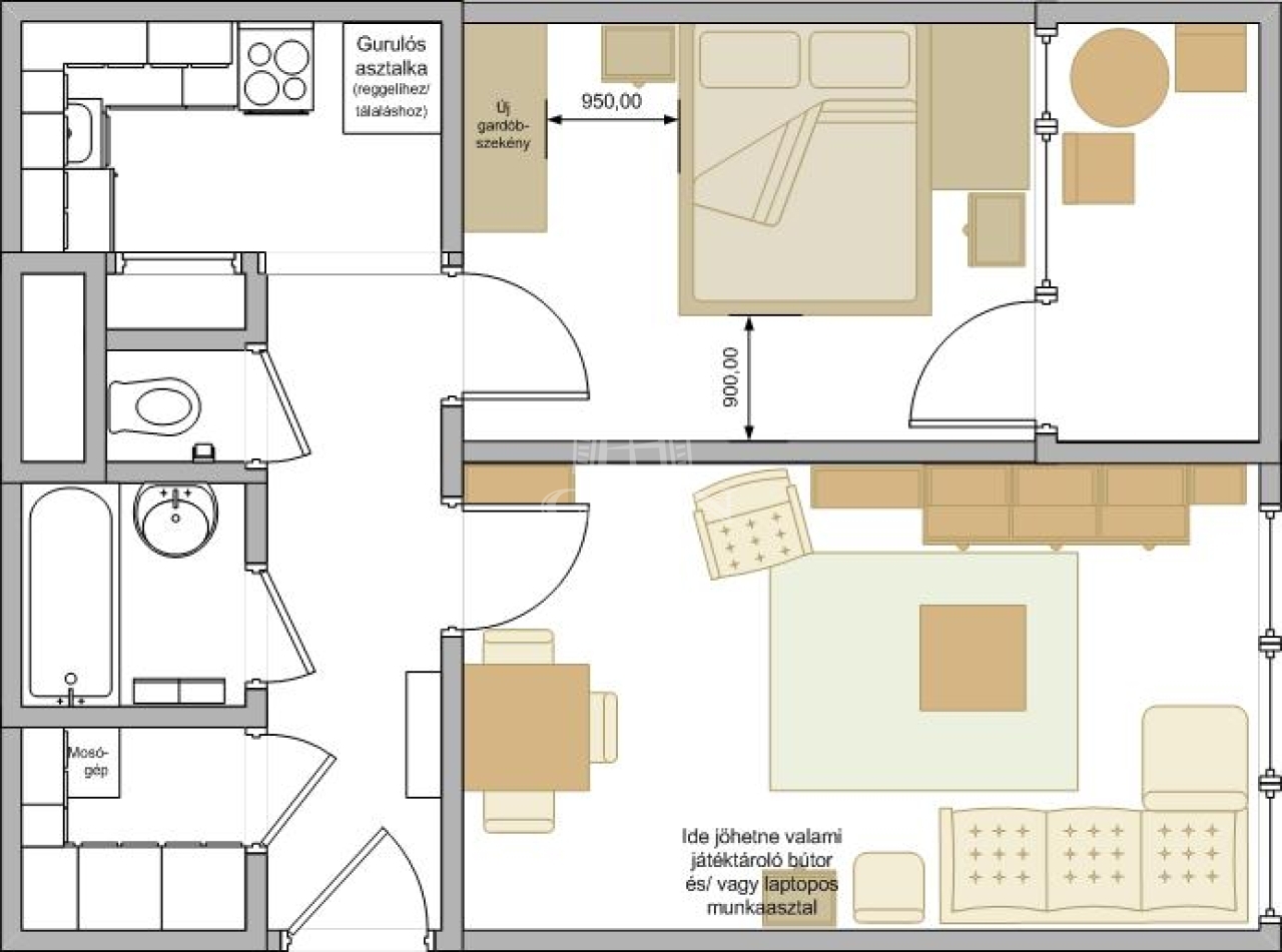
XI. kerületben Etele úton, közvetlen az Etele Pláza közelében, egy 1980-ban épült, délnyugati fekvésű, V. emeleten lévő 50m2-es, 2 szoba+loggiával rendelkező, felújított állapotú lakást kínálunk megvételre.

Helyiségei:
előszoba(6,4m2), gardrób(2,35m2), fürdőszoba(2,4m2), WC.(0,7m2), konyha(5m2), kamra(0,55m2), nappali(16,87m2), hálószoba(12,63m2), loggia(3,96m2)

A konyha 2024-ben, a fürdőszoba 2025-ben került felújításra.
-mindkét szobában hűtő-fűtő klíma felszerelt.
-nappaliban a nyílászárók műanyagra lettek cserélve.

Hideg-meleg vízórás lakás, közös költsége 22.150 Ft./hó., fűtését távhő szolgáltatás biztosítja.
A lépcsőház tiszta, biztonsági kamerával felszerelt.
A lakáshoz közös tároló helyiség tartozik.

A környékről: pár percre található üzletek Etele pláza, az Allee, a Savoya park (Auchan, Aldi, DM, OBI, Rossman, gyógyszertár, Kórház stb)….Bikás park séta távolságra nyújt kikapcsolódási, sportolási lehetőséget.

Óvoda, Bölcsőde, Iskola, Cukrászda, Élelmiszerbolt, Gyógyszertár, a lakástól néhány perc alatt sétatávolságban elérhetőek.
Parkolás közterületen lehetséges, fizetős övezetben.

Amennyiben Önnek a vásárláshoz szüksége lenne hitelre, OTTHON START HITEL, CSOK PLUSZ, babaváró kölcsönre, lakástakarékra, stb., kezdeményezheti a kapcsolatfelvételt bankfüggetlen hitelügyintézőinkkel, teljesen DÍJMENTESEN.

Közlekedés szempontjából szintén nagyon jó helyen van a lakás:
A Kelenföldi pályaudvar, M4-es metró, számtalan buszjárat(114, 213, 7), az 1, 47, 17, 19, 49-es villamos közelsége gyors bejutást biztosít a városba.
Autóval pár perc alatt elérhető az M7, M1, M0 autópályák, Budaörs bevásárló centrumok.

Amennyiben felkeltette az érdeklődését, kérem keressen bizalommal a hét minden napján!
Apolzan Magdalena

Apolzan Magdalena
Inserent

Rufen Sie uns mit Vertrauen

+36-70-908- Zeig!

Andere eigene Anzeigen

Immobilienbüro
GDN Immobilien Netzwerk - SZIGET
+36 24 656 320