公寓房(砖头) 出卖 Zalacsány - Lakás -golfpálya, Balaton mellett!

出卖 Zalacsány 公寓房(砖头)
59 m2面积 3 房间
58 900 000 HUF 价格
392020识别码
更多信息

外面是园子 风景

新建 状态

Tégla 架构

7 m2 阳台

热泵 暖气

deplin confort 舒适感

自己的泊车位 停车

几层 1

顶层

没有 电梯

Bun 公共交通

No 美国式厨房

没有 有园子

屋顶房子

2025 修建年

✨ Batthyányi Villapark – Exkluzív életérzés a természet és a luxus találkozásánál

A zalacsányi Batthyány Kastélyszálló ősfás parkjában megvalósult Villapark egyedülálló lehetőséget kínál azok számára, akik a természet nyugalmát, a prémium életminőséget és az értékálló befektetést egyetlen helyen szeretnék megtalálni.

A limitált beépítésű, kis lakásszámú társasházak diszkrét, exkluzív lakókörnyezetet biztosítanak. A Villapark teljes egészében körbekerített, a bejutás elektromos kapun keresztül történik, garantálva a lakók biztonságát és nyugalmát.

✨A meghirdetett lakás

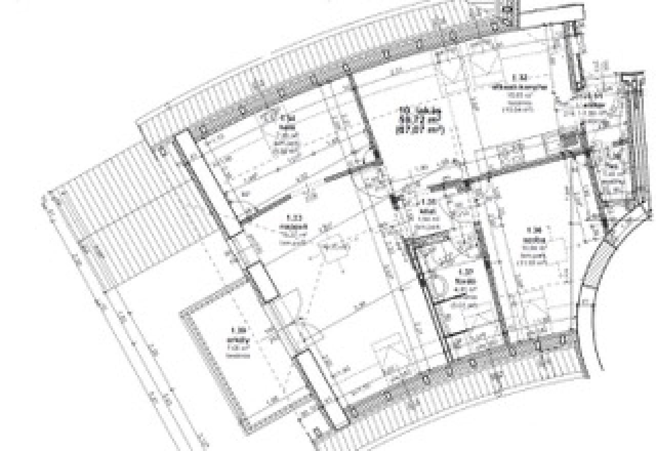
A kínálatunkban szereplő 10. számú prémium apartman az épület 1. emeletén helyezkedik el.

• 57 m² lakótér
• 7 m² panorámás terasz
• Konyha étkezővel
•Teraszkapcsolatos nappali
• 2 hálószoba
• Előtér
• Fürdőszoba
• Külön illemhely
• Nappaliból nyíló teraszkapcsolat

✨Vételár: 58.900.000 Ft, melyhez most AKCIÓ keretében egy alagsori TÁROLÓ-t AJÁNDÉK-ba adunk‼️

Az ingatlan ára tartalmaz egy autó beállót, elektromos autó-töltési lehetőséggel.

✨ Modern műszaki tartalom és okos megoldások

A társasház energiahatékony és környezetbarát rendszerekkel épült:

• Geotermikus hőenergia alapú fűtés
• Központi Daikin hűtőrendszer
• Okosotthon funkciók mobilalkalmazással
• Elektromos autó töltési lehetőség
• Helyiségenként szabályozható termosztát
• Fürdőszobában törölközőszárító radiátor

Az ingatlan belső burkolatai és szaniterei a leendő tulajdonos egyéni elképzelései szerint választhatók ki, lehetőséget biztosítva egy teljesen személyre szabott, prémium otthon kialakítására.
A kulcsrakész állapot eléréséhez szükséges valamennyi befejezési költség a vételár részét képezi.

✨Természetközeli életstílus és exkluzív szolgáltatások

A Villapark közvetlen szomszédságában található a Batthyány Kastélyszálló, amelynek parkja és wellness részlege a lakók számára kedvezményesen, közvetlen átjárással érhető el.

✨A környék különleges kikapcsolódási lehetőségeket kínál:

• Zala Springs Golf Resort világszínvonalú 18 lyukú golfpálya pár perc sétára
• Hévízi-tó – Európa egyik legismertebb termáltava
• Kehidakustányi Gyógyfürdő – 2 km távolságra
• Kis-Balaton és Zalai-dombság túra- és kerékpárútjai
• Balaton közelsége egész éves rekreációs lehetőségekkel

✨Biztonság és kényelem

• Zárt lakópark, elektromos kapus beléptetés
• Tűzjelző és biztonságtechnikai rendszerek
• Kaputelefon
• Villaparkon belüli parkoló elektromos autó töltéssel
• Prémium üzemeltetési szolgáltatások (karbantartás, kertészet, takarítás, biztonság)
•Az épület alagsorában különböző méretű tárolók vásárolhatók

✨Befektetés és életminőség egyben

A Villapark ingatlanjai kiválóan alkalmasak:

• állandó lakhatásra
• exkluzív nyaralóként
• sport- és rekreációs célokra
• stabil, értékálló befektetésként

Az épületben mindössze 12 prémium lakás került kialakításra, amely tovább növeli az exkluzivitást és az értékállóságot.

✨ Miért érdemes most dönteni?

A jelenlegi ajánlat lehetőséget biztosít arra, hogy még érvényesíthesse egyéni elképzeléseit az otthon kialakításában, valamint éljen az aktuális kedvezményes vételárral.

Batthyányi Villapark – ahol a mindennapok a kikapcsolódásról, a természet közelségéről és a prémium életminőségről szólnak.

A hirdetésben szereplő lakásról kérje részletes ajánlatunkat bizalommal!
Gergicsné B. Enikő

Gergicsné B. Enikő

随时给我们打电话

+36-30-941- 给我看

更多的广告

房产代理处
GDN 房产联盟 - SZIGET
+36 24 656 320

请给我回电话