公寓房(砖头) 出卖 Veresegyház - Táncsics Mihály utca

出卖 Veresegyház 公寓房(砖头)
62 m2面积 2 房间
69 990 000 HUF 价格
393038识别码
更多信息

外面是园子 风景

已翻新 状态

Tégla 架构

5 m2 阳台

热泵 暖气

deplin confort 舒适感

自己的泊车位 停车

几层 1

顶层

没有 电梯

Bun 公共交通

美国式厨房

有 有园子

1980 修建年

Délnyugat 方向

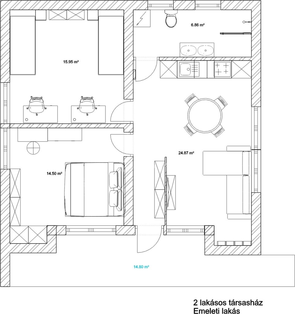
Felújítás alatt álló, kertkapcsolatos lakások eladók Veresegyházon!

Eladásra kínálok egy kétlakásos társasház földszinti és emeleti lakását Veresegyházon, a vasúti megálló közelében, csendes, jól megközelíthető környezetben.

Az ingatlan egy 400 m²-es telken helyezkedik el. A ház teljes körű felújítás alatt áll:
✔ új tetőszerkezet
✔ 10 cm külső hőszigetelés
✔ modern, energia hatékony műszaki megoldások

Várható költözés: 2026. április

Műszaki tartalom:

• hőszivattyús rendszer
• teljes padlófűtés
• klíma minden lakásban
• korszerű, energia hatékony kialakítás

Kertkapcsolat:

Mindkét lakáshoz kb. 200 m² saját kertrész tartozik.
A kerítés a ház sarkával egy vonalba kerül kialakításra, így autóbeállási lehetőség biztosított telken belül.

A lakások a ház két oldalán helyezkednek el, teljesen külön bejárattal, ügyvéd általi megosztással.

Amit kínálunk:

✔ praktikus térkialakítás
✔ modern, energiatakarékos műszaki megoldások
✔ saját kertkapcsolat
✔ klíma a lakásokban
✔ egyedi igények figyelembe vétele a kivitelezés során

Ideális választás családoknak, első otthonnak vagy akár befektetésnek is.

Várom hívását a hét bármely napján.
Csík Zsolt

Csík Zsolt

随时给我们打电话

+36-30-641- 给我看

更多的广告

房产代理处
GDN 房产联盟 - SZIGET
+36 24 656 320