家庭别墅 出卖 Vácduka - Csendes részén

出卖 Vácduka 家庭别墅
148 m2面积 5 房间
67 900 000 HUF 价格
390957识别码
更多信息

2398 m2 地皮

园子 风景

正在修 状态

Ytong 架构

其他 暖气

Alt 舒适感

自己的泊车位 停车

Mediu 公共交通

No 美国式厨房

有 有园子

2025 修建年

Nyugat 方向

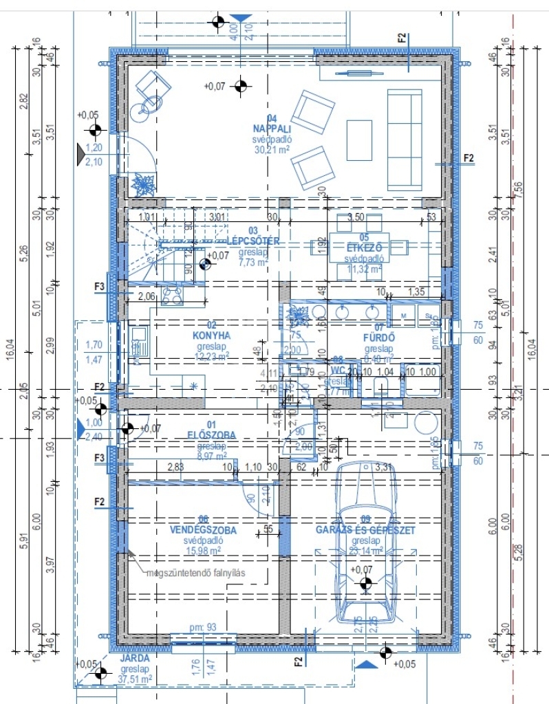
Eladó Vácduka csendes, aszfaltozott utcájában egy 148 m² alapterületű, szerkezetkész családi ház.

Az ingatlan ideális választás azoknak, akik elkerülnék a bontási munkálatokat, és egy már korszerűsített, szilárd alapokon nyugvó házat szeretnének saját igényeik szerint befejezni.

A telek adottságai:
A 2398 m²-es, tágas telek közvetlen erdőkapcsolattal rendelkezik, a kert végét fás terület határolja, biztosítva a privát szférát és a nyugalmat. A telek méretéből adódóan (Lke-1 besorolás, 30%-os beépíthetőség) megosztható, így hosszú távon további lehetőségeket rejt.

Az Ytong téglából épült ház kivitelezése évekkel ezelőtt kezdődött, majd egy hosszabb szünetet követően 2025-ben az épület jelentős állagmegóvási és korszerűsítési munkálatokon esett át. A felújítás során az alábbi fejlesztések valósultak meg
• Tető: A tetőszerkezet teljes felújítást kapott új héjazattal és kész belső szigeteléssel.
• Nyílászárók: Új, hőszigetelt műanyag nyílászárók kerültek beépítésre.
• Szerkezet: A statikailag nem megfelelő részeket eltávolították. A belső térben jelenleg csak a főfalak állnak, így a válaszfalak elhelyezése és a belső elrendezés még teljesen szabadon alakítható.
• Födém: A fa födém részben elkészült; a nyitott szakaszok lehetőséget adnak galéria kialakítására vagy a teljes beépítésre.

Közművek:
• Víz bevezetve
• Villany bekötve, a mérőóra felszerelve; a mérőhelynél kialakított, működő konnektor pedig azonnali áramvételi lehetőséget biztosít
• Gáz a telken belül
• Csatorna a telken belül

Környezet és elhelyezkedés:
Az ingatlan infrastruktúrája kiváló: iskola és óvoda 250 méterre, orvosi rendelő és posta 700 méterre található. Vác mindössze 5 perc, Budapest pedig az M2-es úton 30 perc alatt elérhető. A tömegközlekedést rendszeres buszjáratok és a váci zónázó vonatok biztosítják.

A ház azonnal birtokba vehető, az építkezés a rendelkezésre álló dokumentumoknak köszönhetően késedelem nélkül folytatható.

Ez az ingatlan ideális választás lehet azok számára, akik:
• saját otthonukat szeretnék kialakítani,
• nyugodt, természetközeli környezetre vágynak,
• befektetőknek, akik jó elhelyezkedésű fejlesztési lehetőséget keresnek

Ha felkeltette érdeklődését az ingatlan, szívesen adunk további információt, vagy egyeztethetünk egy személyes megtekintést.

Amiben segíteni tudjuk ingatlanvásárlását:
•jogi háttér
•földhivatali ügyintézés
•ingyenes, bankfüggetlen hitelügyintézés (CSOK+, Babaváró, Otthon Start)
•energetikai tanúsítvány elkészítése
•biztosítás
•belsőépítész
Kémeri-Szekernyés Tímea

Kémeri-Szekernyés Tímea

随时给我们打电话

+36-30-248- 给我看

更多的广告

房产代理处
GDN 房产联盟 - SZIGET
+36 24 656 320

请给我回电话