家庭别墅 出卖 Szombathely - Oladi dombon

出卖 Szombathely 家庭别墅
95 m2面积 4 房间
99 750 000 HUF 价格
392757识别码
更多信息

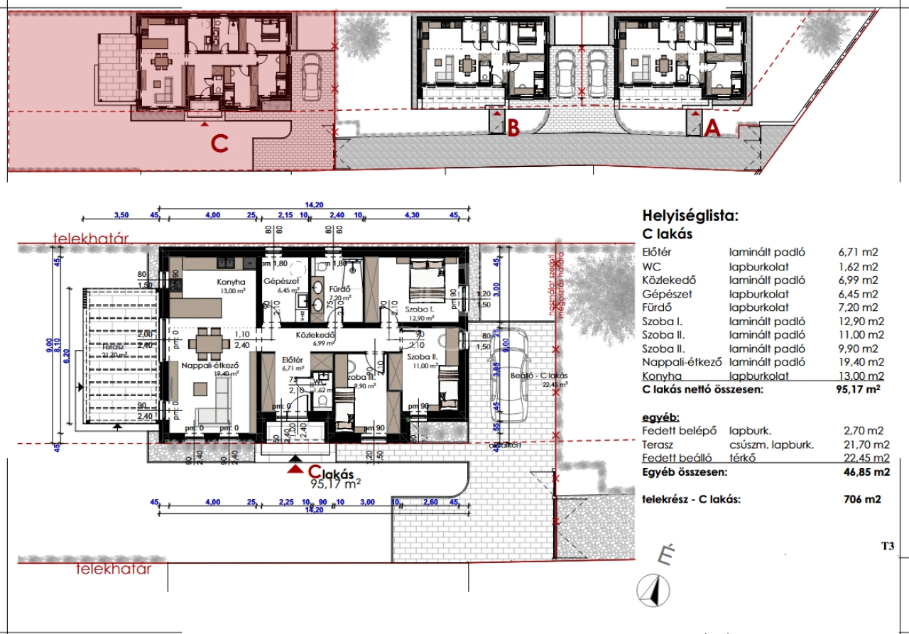
706 m2 地皮

园子 风景

新建 状态

Tégla 架构

22 m2 阳台

热泵 暖气

deplin confort 舒适感

自己的泊车位 停车

Bun 公共交通

美国式厨房

有 有园子

2026 修建年

Délnyugat 方向

Szombathelyen az oladi dombon, aszfaltos útról megközelíthető, új építésű házak eladók. A telekre 2db 63 m2 -es ház ( amelyek lexánnal fedett gépkocsibeállókkal érintkeznek) és egy 95 m2-es különálló ingatlan épül. Az ikresített házakhoz 256 m2 saját kert tartozik. A szóló ingatlan 706 m2 telket tudhat magáénak.
A Wienerberger Porotherm téglából épülő házak magas műszaki tartalommal épülnek. Tetőszerkezete C22 I. osztályú , rovar, gomba és lángmentesítővel kezelt faanyaggal kerül kivitelezésre. Fedése Terran vagy Bramac cseréppel történik, az összes rendszer tartozékkal, előírások szerint helyenként hófogóval. Bádogos szerkezetek, a külső vízelvezetések ereszcsatornái, a lefolyócsövei és az egyéb bádogos szerkezetek 0.6 mm vastag acéllemezből készülnek. Homlokzati falfelületek 15 cm vastag EPS hőszigetelő rendszert, a lábazatok 10 cm vastag XPS lábazati hőszigetelő rendszert kapnak. A padozatokba 10 cm vastag teherbíró EPS hab hőszigetelés kerül. A födém hőszigetelése 25 cm vastag ásványgyapot szigetelőanyaggal történik. Külső nyílászárói műanyag, három rétegű üvegezéssel szerelt, fokozottan hang-és hőszigeteltek. Fűtése, a háztartási helyiségben elhelyezett 10Kw teljesítményű Gree Versati 3 hőszivattyúval történik, padlófűtéses hőleadással szabályozható termosztáttal. A hőszivattyú biztosítja a melegvizet is, egy 200 literes hőtárolós víztartállyal. Nappaliában 3.5 Kw teljesítményű hűtő-fűtő klíma kerül. Az ingatlanban riasztó, kaputelefon, előkészítés történik. Beltéri ajtók, hideg-meleg burkolatok, szaniterek, csaptelepek választhatók.. Ha bővebb tájékoztatást szeretne, kérem keressen. Vegye igénybe irodánk szolgáltatásait. Hitelügyintézésben is segítünk.
Gergicsné Veér Annamária

Gergicsné Veér Annamária

随时给我们打电话

+36-20-396- 给我看

更多的广告

房产代理处
GDN 房产联盟 - SZIGET
+36 24 656 320