办公室 出租 Szeged - Kígyó utca

出租 Szeged 办公室
252 m2面积 6 房间
2 445 €(~ 888 709 HUF)
391523识别码
更多信息

街道 风景

已翻新 状态

Tégla 架构

热泵 暖气

在接到 停车

几层 1

电梯

Kiváló 公共交通

1970 修建年

Északkelet 方向

KIADÓ TELJES IRODASZINT SZEGED BELVÁROSÁBAN – A KÍGYÓ UTCÁBAN

Modern, reprezentatív iroda a város szívében.

Szeged belvárosának egyik legfrekventáltabb utcájában, a Kígyó utcában kínálunk kiadásra egy teljes irodaszintet egy liftes, teljeskörűen felújított irodaházban. Az ingatlan ideális választás olyan cégek számára, akik számára fontos a presztízs, a kiváló megközelíthetőség és a modern munkakörnyezet.

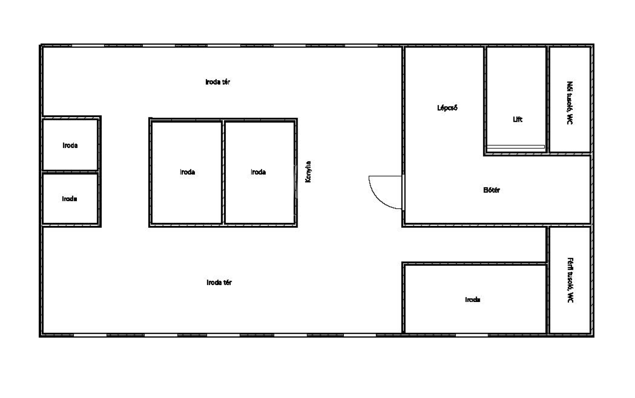
Az iroda az első emeleten helyezkedik el, az egész szint egyben bérelhető, így teljesen szeparált, önálló működést biztosít.

IRODA KIALAKÍTÁSA ÉS MÉRETEI

Teljes alapterület: 252 m²

Kialakítás: modern, egy légterű iroda

A központi térben:

- több, különböző méretű üvegfalú zárt iroda / tárgyaló

- egy nagyobb méretű vezetői iroda

Előtér

Gépesített konyha

Férfi és női WC + tusoló

Bútorozatlan – saját arculatra szabható

Az üvegfalas megoldások világos, inspiráló munkakörnyezetet teremtenek, miközben a zárt irodák megfelelő diszkréciót biztosítanak vezetői vagy tárgyaló funkciókra.

MŰSZAKI TARTALOM

- Fan-coil rendszerű hűtés–fűtés, egyedileg szabályozható

- Teljesen felújított épület

- Lift

- Utcáról nyíló, reprezentatív bejárat

- Korszerű gépészet, alacsony üzemeltetési kockázat

LOKÁCIÓ – BELVÁROS, KÍGYÓ UTCA

A Kígyó utca Szeged egyik legismertebb belvárosi utcája:
- kiváló tömegközlekedés
- éttermek, kávézók, bankok, szolgáltatások közvetlen közelben
- könnyű ügyfélfogadás, presztízsértékű cím
- ideális ügyvédi iroda, IT cég, tanácsadó vállalkozás, szolgáltató központ vagy regionális iroda számára

BÉRLETI FELTÉTELEK

Bérleti díj: 9,7 EUR / m² / hó

Üzemeltetési költség: 3 EUR / m² / hó

Rezsi: fogyasztás alapján

KINEK IDEÁLIS?

Olyan cégeknek, akik belvárosi jelenlétet keresnek

Ügyfélforgalmat bonyolító vállalkozásoknak

Regionális központnak vagy növekvő csapat számára

Akik egy modern, egyben bérelhető, reprezentatív irodát szeretnének Szeged szívében
Gergicsné Veér Annamária

Gergicsné Veér Annamária

随时给我们打电话

+36-20-396- 给我看

更多的广告

房产代理处
GDN 房产联盟 - SZIGET
+36 24 656 320

请给我回电话