公寓房(砖头) 出卖 Szeged - Szeged Belvárosi új lakások eladók!

出卖 Szeged 公寓房(砖头)
74 m2面积 3 房间
99 900 000 HUF 价格
390236识别码
更多信息

园子 风景

新建 状态

Tégla 架构

自己的炉子 暖气

deplin confort 舒适感

可以买车库位/泊车位 停车

几层 Ground floor

没有 电梯

Kiváló 公共交通

美国式厨房

没有 有园子

2025 修建年

Eladó új építésű, belvárosi kertkapcsolatos lakások Szegeden

Belvárosi – csendes belső udvarban helyezkednek el
Ingatlan típusa: társasházi lakás
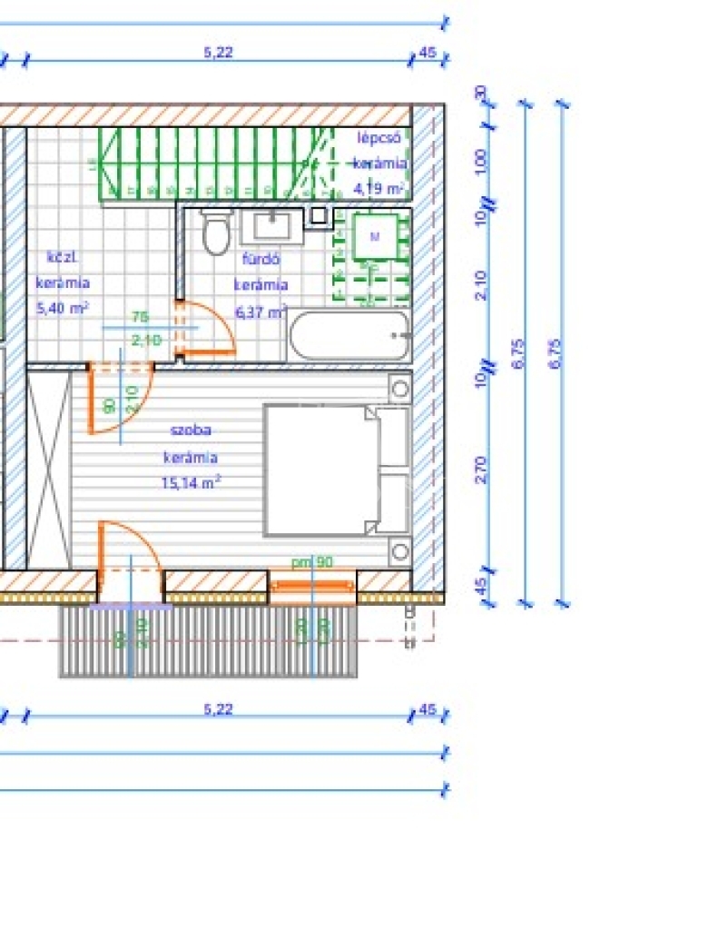
Alapterület:74 m2
Elrendezés: amerikai konyhás nappali + 2 hálószoba

Főbb jellemzők:

Csendes, mégis belvárosi környezet

2 méter mély, 60 cm széles C25-ös beton alapozás, Leier 30 N/F tégla falazat 15 cm hőszigeteléssel

Hanggátló válaszfalak a teljes nyugalomért

Bramac antracit tetőcserép

3 rétegű üvegezésű műanyag nyílászárók

Padlófűtés (Westend 24 kW-os gázkazán + 100 l-es hőtároló)

3,5 kW-os hűtő-fűtő klíma

Energetikailag korszerű kivitelezés

Kíváló minőségű anyaghasználat

A VÉTELÁR TARTALMAZ 1M Ft KONYHABÚTORT , 10000Ft/M2 HIDEG-MELEG BURKOLATOKAT, 500e Ft SZANITEREKET , 100e Ft/DB BELTÉR AJTÓKAT.

ÖN MEGÁLMODJA ÉS 60 NAPON BELLÜL MÁR A SAJÁT ÍZLÉSE SZERINT KIALAKÍTOTT OTTHONBAN LAKIK.

További lehetőségek:

Kocsibeálló vásárolható: 5,5 millió Ft

Garázs vásárolható: 12 millió Ft


HITELKÉPES LAKÁSOK!

Ez a lakás ideális választás mindazok számára, akik belvárosi elhelyezkedést, modern technológiát és privát életteret keresnek Szeged szívében, de rendívüli lehetőség befektetési célra is!

TEKINTSE MEG SZEMÉLYESEN REFERENCIA INGATLANUNKAT!
Gergicsné B. Enikő

Gergicsné B. Enikő

随时给我们打电话

+36-30-941- 给我看

更多的广告

房产代理处
GDN 房产联盟 - SZIGET
+36 24 656 320