家庭别墅 出卖 Péteri - Petőfi Sándor utca

出卖 Péteri 家庭别墅
160 m2面积 3 房间
87 500 000 HUF 价格
389653识别码
更多信息

818 m2 地皮

园子 风景

状态一般 状态

Tégla 架构

12 m2 阳台

混合燃料锅炉 暖气

deplin confort 舒适感

自己的车库 停车

Bun 公共交通

No 美国式厨房

有 有园子

1988 修建年

Délnyugat 方向

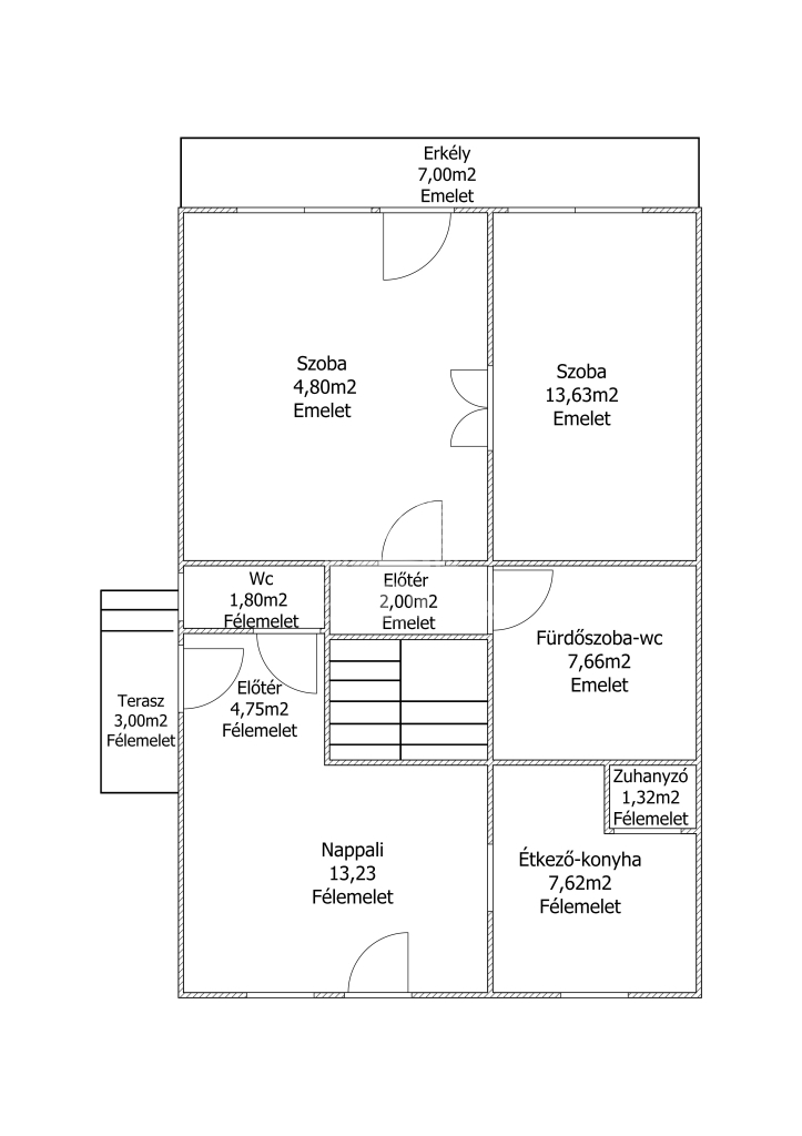
Kétgenerációs lehetőségekkel bíró, eltolt szintes családi ház Péteri kertvárosi övezetében – közel Pesthez, mégis csendben!

Eladóvá vált egy 160 m²-es, eltolt szintekkel épült közepes állapotú családi ház Péteri egyik legkedveltebb, kiemelt belterületi utcájában, a hangulatos Petőfi Sándor utcában. A házhoz egy tágas, 818 m²-es kert tartozik, sok-sok további alakítási és fejlesztési lehetőséggel – tökéletes azoknak, akik szeretnek saját ízlésre formálni egy ingatlant.

A ház jelenlegi kialakítása – 3 szoba, erkély (9 m²), terasz (3 m²) – ideális alap egy kétgenerációs otthon megvalósításához is. A tetőtér újabb két eltolt szinten beépíthető, ideális alap egy kétgenerációs álomotthon megvalósításához is! A fűtésről vegyes tüzelésű kazán gondoskodik, az udvar pedig igazi kertvárosi nyugalmat áraszt.

Közlekedés szempontjából is szuper választás: Péteri az agglomerációban található, közel Budapesthez, remek elérhetőséggel. A vasút és a busz is gyors és kényelmes kapcsolatot biztosít a főváros felé – így azoknak is ideális, akik naponta ingáznak.

A házhoz tartozik továbbá saját garázs, a környék pedig kifejezetten barátságos, csendes és biztonságos.

Fiatal pároknak, nagycsaládosoknak vagy kétgenerációs otthont keresőknek egyaránt remek lehetőség!
Csík Zsolt

Csík Zsolt

随时给我们打电话

+36-30-641- 给我看

更多的广告

房产代理处
GDN 房产联盟 - SZIGET
+36 24 656 320

请给我回电话