双面别墅 出卖 Budapest X. 市区 - Szőlőtelep utca

出卖 Budapest X. kerület 双面别墅
122 m2面积 4 房间
134 900 000 HUF 价格
394052识别码
更多信息

231 m2 地皮

外面是园子 风景

正在修 状态

Tégla 架构

7 m2 阳台

热泵 暖气

Dupla komfort 舒适感

自己的车库 停车

Kiváló 公共交通

美国式厨房

有 有园子

2025 修建年

Új építésű, kétszintes ikerház prémium felszereltséggel!

Csendes környezet – Magas minőségű kivitelezés – Teljes digitális átláthatóság!

Budapest X. kerületének egyik legnyugodtabb mellékutcájában, kiváló közlekedési és infrastrukturális adottságok mellett készül ez a korszerű, kétszintes ikerház.
Az építkezés teljes folyamata átláthatóan nyomon követhető!

Főbb adatok


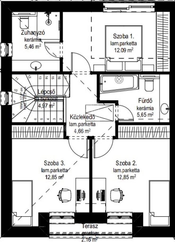
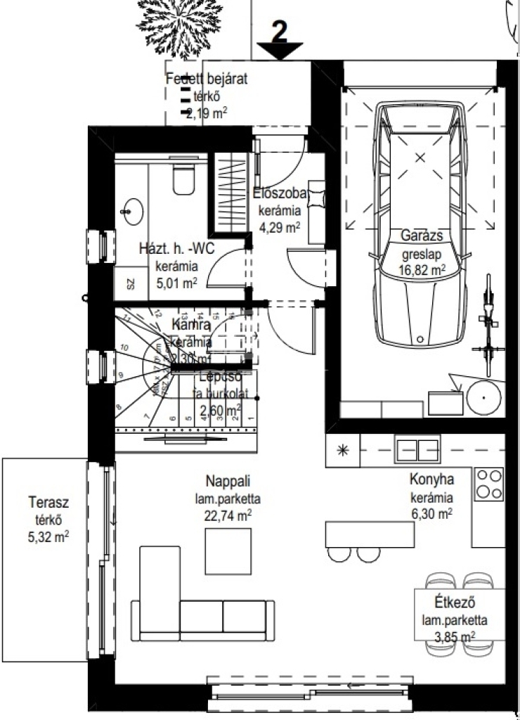
Hasznos alapterület: 122 m²


Telekméret: 231 m² saját kerttel


Szintek száma: földszint + emelet


Hálószobák: 3 külön nyíló szoba


Fürdőszobák: összesen 3 (2 az emeleten, 1 a földszinten)


Nappali: 33 m²-es amerikai konyhás tér, közvetlen teraszkapcsolattal


Parkolás: fedett garázs, nagyobb méretű autó számára is ideális



Műszaki felszereltség


POROTHERM 30 N+F téglafalak, monolit vasbeton födémszerkezet


15 cm homlokzati EPS hőszigetelés + 20 cm födémszigetelés


Hőszivattyúval működő mennyezeti fűtés és hűtés


3 rétegű hőszigetelt nyílászárók és biztonsági bejárati ajtó


Laminált parketta és kerámia burkolatok kombinációja


Terrán Zenit Max Carbon tetőcserép



Kiemelt extrák


Komplett okosotthon rendszer


Motoros alumínium redőnyök


Kamera- és riasztórendszer előkészítés


Videó kaputelefon


Elektromos kapu és autótöltési lehetőség


Automata kertöntöző


WPC kerítés, rejtett világítás, kültéri lámpatestek



Digitális projektkövetés – PlanRadar

A vásárló:


Élőben követheti az építkezés előrehaladását telefonon


Kéthetente részletes fotódokumentációt kap


Az átadáskor digitálisan megkap minden szükséges hivatalos dokumentumot (garanciák, tervrajzok, jegyzőkönyvek)

Finanszírozási lehetőségek tárháza


Hitelből is megvásárolható


Díjmentes hitelügyintézés minden hazai bank felé


Elérhető aktuális állami támogatások



Várható átadás: 2026. III. negyedév
Ez az ingatlan ideális választás mindazok számára, akik modern, biztonságos és kényelmes otthont szeretnének. Ne hagyja ki ezt a kivételes lehetőséget!
ID: 390189
Csík Zsolt

Csík Zsolt

随时给我们打电话

+36-30-641- 给我看

更多的广告

房产代理处
GDN 房产联盟 - SZIGET
+36 24 656 320