家庭别墅 出卖 Dunaharaszti - Fő út

出卖 Dunaharaszti 家庭别墅
109 m2面积 3 房间
125 000 000 HUF 价格
392764识别码
更多信息

1562 m2 地皮

外面是园子 风景

状态一般 状态

Tégla 架构

38 m2 阳台

燃气(对流式) 暖气

deplin confort 舒适感

自己的车库 停车

Kiváló 公共交通

No 美国式厨房

有 有园子

1970 修建年

Eladó önálló családi ház nagy telekkel Dunaharasztiban!

Dunaharaszti frekventált részén az Óvárosban nettó 108,5 nm alapterületű, tégla építésű, önálló családi házat kínálunk megvételre 1562 nm-es telken.
A telek övezeti besorolása: LKe3.
Mérete: 25 x 62 méter.

Az ingatlan több lehetőséget rejt magában, korszerűsítés után kényelmes, élhető otthon lehet nagy telekkel.
Elhelyezkedése miatt vállalkozások számára is kiváló lehetőség
(régen kertészet működött itt).

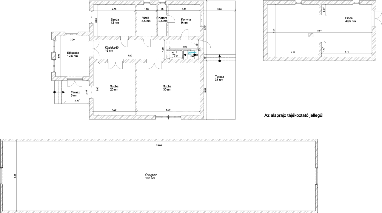
A ház beosztása:
- előszoba 12,5 nm,
- közlekedő 15 nm,
- szoba 12 nm,
- szoba 20 nm,
- szoba 30 nm,
- fürdőszoba 5,5 nm,
- WC 1,0 nm,
- kamra 2,5 nm,
- konyha 9,0 nm,
- padlásfeljáró 1,0 nm,
---------------------------------
összesen: 108,5 nm
+ terasz 33 nm,
+ terasz 5,0 nm,
+ pince 49,5 nm.

A udvarban található még, egy 198 nm-es üvegház, valamint egy tároló.

A telken fúrt kút van.
Minden közmű a házba bekötve.

Az ingatlan elhelyezkedése kiváló, HÉV- megálló a közelben.
Iskola, óvoda, bölcsöde gyalogosan néhány perc alatt elérhető.

Amivel segítjük az Ön ingatlanvásárlását:
- ingyenes hitelügyintézés,
- jogi háttér,
- földhivatali ügyintézés,
- energetikai tanúsítvány,
- a vevő számára az ingatlanközvetítés ingyenes.

Irodánk 30 éves szakmai tapasztalattal áll ügyfelei rendelkezésére!

Várom szíves megkeresését!
Gergicsné B. Enikő

Gergicsné B. Enikő

随时给我们打电话

+36-30-941- 给我看

更多的广告

房产代理处
GDN 房产联盟 - SZIGET
+36 24 656 320