家庭别墅 出卖 Zalaegerszeg - Zalaegerszeg, Csács

出卖 Zalaegerszeg 家庭别墅
100 m2面积 4 房间
99 000 000 HUF 价格
351240识别码
更多信息

404 m2 地皮

园子 风景

新建 状态

Tégla 架构

热泵 暖气

deplin confort 舒适感

自己的泊车位 停车

Bun 公共交通

美国式厨房

有 有园子

2023 修建年

Eladó PRÉMIUM CSALÁDI HÁZ ÚJ KIVITELEZŐTŐL!

❗Zalaegerszeg, csácsi városrészében egy 100 m2-es, új építésű, korszerű kialakítású alacsony rezsivel rendelkező családi ház eladó! ❗

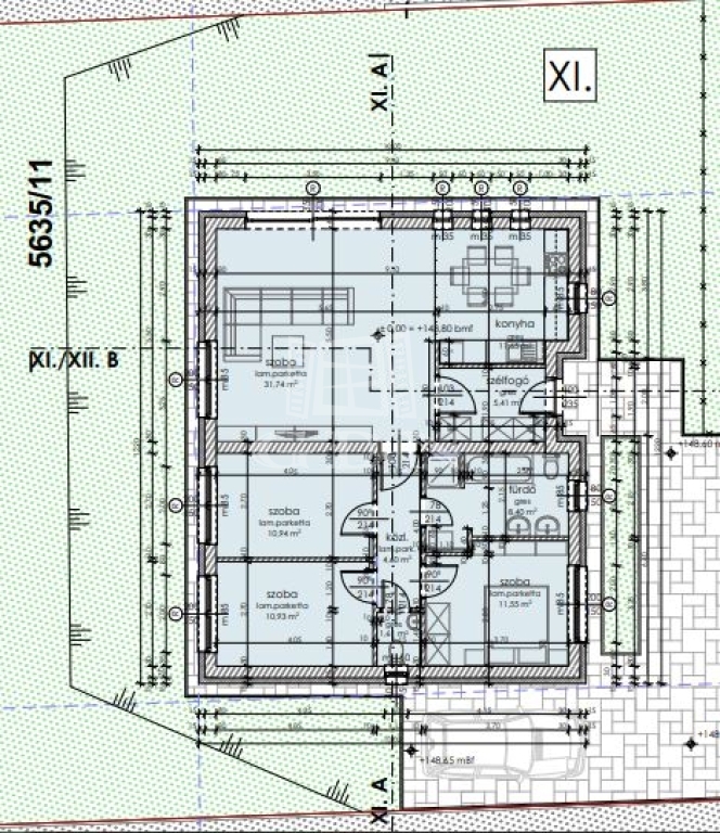
Az ingatlan helyiségei:
- amerikai konyhás nappali étkezővel
- 3 szoba
-fürdőszoba plusz WC
-előszoba
-közlekedő
-terasz

Műszaki információk:
- 30-as tégla falazat
- 15 cm-es szigetelés
- 3 rétegű műanyag nyílászárók redőnnyel ellátva
- hőszivattyús fűtésrendszer (padlófűtés)
- 1 db inverteres klíma
- választható hideg-meleg burkolatok

További jellemzők, extrák:
A vételár tartalmazza a tereprendezést, a kerítés kialakítását és a térkövezést egyaránt.
Délnyugati tájolásának megfelelően tágas terei napfényesek és világosak szinte egész nap.
Csendes, családi lakóövezet, egy szintes kialakítással.
CSOK és egyéb illetékkedvezmények egyaránt igénybe vehetők!

A hirdetésben szereplő képek látványtervek.

Amennyiben az ingatlan elnyerte tetszését és megtekintené, keressen bizalommal!
Irodánk ingyenes hiteltanácsadással és hitelügyintézéssel, kedvező díjszabású ügyvéddel és energetikai tanúsítvány elkészítésével várja az ügyfeleket
Apolzan Magdalena

Apolzan Magdalena

随时给我们打电话

+36-70-908- 给我看

更多的广告

房产代理处
GDN 房产联盟 - SZIGET
+36 24 656 320