家庭别墅 出卖 Ercsi - ÁRCSÖKKENÉS!!!

出卖 Ercsi 家庭别墅
125 m2面积 3 + 1 房间
57 000 000 HUF 价格
393319识别码
更多信息

1075 m2 地皮

外面是园子 风景

状态好 状态

Tégla 架构

燃气(循环式) 暖气

Dupla komfort 舒适感

自己的车库 停车

Bun 公共交通

No 美国式厨房

有 有园子

1981 修建年

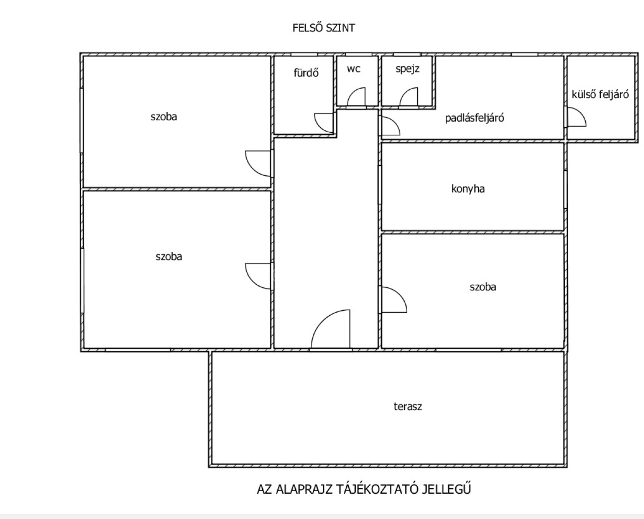
Ercsi egyik legfrekventáltabb városrészén kínálunk megvételre egy 1075 nm nagyságú telken, 125 négyzetméteres, 3+1 félszobás, jó műszaki és esztétikai állapotú, két lakásos családi házat.

Az ingatlan alsó szintje 1981-ben épült B30 téglafalazattal, 2009-ben teljes körű, külső dryvit szigetelést kapott, valamint a nyílászárókat műanyagra cserélték.

Lakóépület helyiségek (2 szint):
- Szoba 1
- Szoba 2
- Szoba 3
- Fürdőszoba
- Előtér és étkező
- Konyha
- Kamra és feljáró a tetőtérbe
(ami igény szerint beépíthető, önálló lakás is kialakítható belőle)
- WC
- Veranda

Alsó szint
- Kazánház
- Pince
- Garázs
- Szoba-konyha-nappali-fürdő és wc helyiségekből álló önálló lakrész

Az épület fűtéséről gáz kazán és vegyes tüzelésű kazán gondoskodik. A meleg-víz ellátás villanybojlerről biztosított.

A kert rendezett, gyümölcsfákkal, növényekkel, konyhakerttel gazdagított.

Kiváló ár-érték arány.

Mivel az ingatlan két rendeltetési egységből áll, így mindkét lakóegység külön-külön is jogosult a kedvezményes rezsiköltség elszámolásra.

Az ingatlan per igény-és tehermentes.

Az ingatlan a forgalom zajától távol eső részén található. Az utca aszfaltozva van, az átmenő forgalom nem jellemző.

Autóval pár perc távolságra: oktatási intézmények, bevásárlási lehetőségek, buszmegálló, vasút, 6-os főút, M6-os autópálya,kompkikötő, posta, egészségház.

Irodánk teljes körű banki hitellehetőségekkel, pénzügyi konstrukciókkal, illetve állami támogatásokkal díjmentesen áll az érdeklődők rendelkezésére.

Amennyiben további tájékoztatásra van szüksége, vagy szeretné megtekinteni az ingatlant kérem, hívjon a hét bármely napján.

A hirdetésben szereplő adatok tájékoztató jellegűek, nem minősülnek ajánlattételnek.
Csík Zsolt

Csík Zsolt

随时给我们打电话

+36-30-641- 给我看

更多的广告

房产代理处
GDN 房产联盟 - SZIGET
+36 24 656 320