家庭别墅 出卖 Pécel - Bartoshegy

出卖 Pécel 家庭别墅
76 m2面积 1 + 2 房间
52 000 000 HUF 价格
346401识别码
更多信息

840 m2 地皮

园子 风景

新建 状态

Tégla 架构

16 m2 阳台

自己的炉子 暖气

deplin confort 舒适感

自己的泊车位 停车

Slab 公共交通

美国式厨房

有 有园子

2005 修建年

Délnyugat 方向

CSAK NÁLUNK!

76,5 m² családiház, áron alul eladó!


Pécel, Bartoshegy részén eladó egy 840 m² területű, Gksz – Sz/1 övezeti besorolású telek.

A telken van egy családiház mely két lépcsőben épült. Az alap épület 2005-ben épült majd, 2016-ban kibővített. Ekkor kapta meg a jelenlegi formáját.

A ház bruttó 119 m². A hasznos alapterület terasszal 93,14 m², a fűtött alaptarület nettó 76,5 m² 1+2 félszobából áll, ideális kisebb családok számára.

A 16 négyzetméteres fedett terasz tökéletes helyszín reggeli kávézásokhoz vagy esti pihenésekhez, udvari kilátással.

Az épület 2022-ben, belülről teljes körűen fel lett újítva.

A ház falazata tégla + YTONG falazóanyagok. A födém fa, a tetejét cserép fedi.

Az épület NEM rendelkezik használatba vételi engedéllyel!

CSAK KÉSZPÉNZES VÁSÁRLÁS LEHETSÉGES!!!!

A telken 380 V ipari áram és vezetékes víz van.

A ház fűtéséről egyedi kazán gondoskodik radiátoros hőleadással, evvel biztosítva a kellemes hőmérsékletet a hideg hónapokban. A melegvizet ARISTON típusú villany bojler adja.

A nappali hűtéséről, és az alternatív fűtésről klíma gondoskodik.

A külső nyílászárók két rétegű műanyag ablakok.

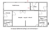
Helységlista:

-fürdőszoba,
-2 db félszoba,
-nappali – konyha – étkező,
-kazánház,
-kamra,
-előtér,
-fedett terasz.


Kereskedelmi, szolgáltató gazdasági területek (Gksz) előírásai:

75. § Az építési övezet területe nem zavaró hatású gazdasági tevékenységet szolgáló építmények
elhelyezésére szolgál.

76. § A kereskedelmi szolgáltató területen elhelyezhető:
a) mindenfajta, nem jelentős zavaró hatású gazdasági tevékenységi célú épület,
b) igazgatási, iroda- és szociális épület,
c) parkolóház, üzemanyagtöltő,
d) sportépület és -építmény,
e) egyéb közösségi szórakoztató épület, lakóterülettől legalább 200 méter távolságra,
f) a gazdasági tevékenységet kiszolgáló szállásjellegű és lakóépület, legfeljebb egy lakással, a tulajdonos illetve a dolgozók számára.

77. § Az épületekben a következő funkciók helyezhetők el:
a) mindenfajta nem jelentős zavaró hatású gazdasági és raktározási funkció,
b) kereskedelmi, szolgáltatási és vendéglátási funkciók,
c) igazgatási, irodai, sportfunkciók,
d) szállás- és lakófunkció.

78. § A lakóterülettel szomszédosan elhelyezkedő üzem saját telkén, a lakóterület felé, minimum 10 méter szélességben kétszintes, és 3 méter széles háromszintes növénytelepítésű zöldsáv alakítandó ki.

79. §60 Az építési övezet telkei legfeljebb 3 méter magas kerítéssel keríthetők le.

80. § A településszerkezeti jelentőségű utak mellett, 50 méter széles teleksávon belül szabadtéri raktározás nem folytatható.

81. § Az építési övezetben megengedett funkciójú épületek, építmények speciális technológiai előírások miatt szükséges egyedi építményeinek, különösen siló, víztorony, kémény magassága nem
lehet több 30 méternél. Egyéb építményekre az építési övezeti előírásoknak megfelelő építménymagasságot kell betartani.

82. § A Gksz-SZ/1 jelű építési övezetben a következő előírásokat kell betartani:

a) a telek szabadonálló módon építhető be,
b) az építési övezetben a legkisebb kialakítandó telek mérete 1000 m2
c) a beépítettség legfeljebb 40 % lehet,
d) a szintterületi mutató a telkeken legfeljebb 2,0 lehet,
e) a telek legalább 25 %-át zöldfelületként kell kialakítani,
f) az épületmagasság legfeljebb 10 méter,
g) az elő-, oldal-, hátsókert mérete 5 méter



Ha egy nyugodt, új otthont keres Pécelen, ezt a családi házat érdemes megtekintenie.


JÖJJÖN EL, NÉZZE MEG TEGYEN AJÁNLATOT!

A GDN HitelCentrum, KÖTELEZETTSÉG MENTESEN és DÍJMENTESEN, versenyezteti Önért a bankok hitelajánlatait. Ismerje meg a vissza nem térítendő állami támogatásokat!


* Egyedi, bankfiókban nem elérhető kamat- és díjkedvezmények.
* Ingyenes Hitelképesség vizsgálat.
* Idő, energia és pénz megtakarítás.
* Teljes hivatali ügyintézés.
* Babaváró.
* CSOK+
* Hitel.
* Megtakarítás,
* és EGYÉB BANKI tranzakcióban segítségére lehetünk!

• Igény esetén, ÜGYVÉDI segítséget nyújtunk, MEGFIZETHETŐ áron!


Ha az ingatlannal kapcsolatban bővebb felvilágosításra lenne szüksége, hívjon bizalommal, állok rendelkezésére!

Videólink: https://youtu.be/kkrGTLN2Gao

F.M.
Gergicsné Veér Annamária

Gergicsné Veér Annamária

随时给我们打电话

+36-20-396- 给我看

更多的广告

房产代理处
GDN 房产联盟 - SZIGET
+36 24 656 320

请给我回电话

相似的房产