家庭别墅 出卖 Csór - Iszkaszőlőhegy

出卖 Csór 家庭别墅
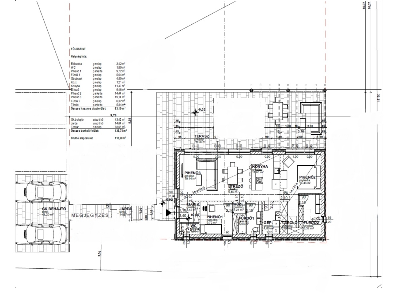
93 m2面积 3 房间
79 900 000 HUF 价格
389820识别码
更多信息

1100 m2 地皮

全景 风景

新建 状态

Ytong 架构

79 m2 阳台

热泵 暖气

deplin confort 舒适感

自己的泊车位 停车

Slab 公共交通

美国式厨房

有 有园子

2025 修建年

Exkluzív, új építésű családi otthon lenyűgöző örökpanorámával Csór, Iszkaszőlőhegyen!

Vh-Csór, Iszkaszőlőhegy egyik legszebb részén, aszfaltozott úton könnyen megközelíthető, örökpanorámás telken ÚJÉPÍTÉSŰ, önálló családi ház ELADÓ, mely kulcsrakész állapotban várja új tulajdonosát.

A 2025-ben épült ingatlan 93 négyzetméter hasznos alapterülettel rendelkezik, mely ideális elrendezést biztosít: egy körbe napozott amerikai konyha-nappali mellett két tágas hálószoba, két különálló fürdőszoba, előszoba és háztartási helyiség került kialakításra. A belső tér rugalmasan alakítható, így igény szerint akár nappali + 3 szobás elrendezés is megvalósítható. Az életteret jelentősen kiterjeszti a házhoz kapcsolódó 79 négyzetméteres terasz.


Korszerű Műszaki Megoldások

Az otthon energiahatékonyságát a modern műszaki tartalom garantálja. A falazat Ytong téglából, a válaszfalak gipszkartonból készültek, 15 centiméter vastag homlokzati hőszigeteléssel ellátva. A szeglemezes födém,-tető szerkezetben 30 centiméter vastag, fújt cellulóz szigetelés került, melyet Terrán cserép tetőfedés zár.
A nyílászárók műanyagból készültek, 5 kamrás, háromrétegű hőszigetelt üvegezéssel.
A fűtésrendszer 11 kilowattos hőszivattyúval megoldott padlófűtést biztosít. A villamos hálózat 3x25A kapacitású, és lehetőség van H-tarifás óra igénylésére. A jövőre gondolva kialakításra került az elektromos autó töltő előkészítése, továbbá a ház alkalmas napelem- és napkollektor rendszer telepítésére is.


Telek és Közművek

A 1100 négyzetméteres telek körbekerített, a bejutás kényelmét elektromos kapu garantálja. A terepviszonyok kiegyenlítése céljából masszív vasbeton támfal épült.

A közműellátás a villany rendelkezésre állásával biztosított. Az ivóvíz fúrt kút és időszakosan feltöltendő víztároló segítségével megoldott, míg a szennyvízelvezetést egy 35 köbméteres derítő szolgálja.

Az eladási ár magában foglalja a megadott listából választható hideg-meleg burkolatokat, az alapszereléseket, valamint a tereprendezést is.
Az ingatlan a szerződéskötéstől számítva 1-3 hónapon belül kulcsrakész állapotban birtokba vehető.

Eladási irányár: 79,9 M Ft

Ha felkeltette érdeklődését, hívjon bizalommal, (hétvégén is) éljen ingyenes, személyre szabott hitelügyintézés szolgáltatásunkkal. Segítünk továbbá adásvételhez szükséges ügyvédi közreműködésben, energetikai tanúsítvány, valamint értékbecslés elkészítésében.

For English information please send a message.
Csík Zsolt

Csík Zsolt

随时给我们打电话

+36-30-641- 给我看

更多的广告

房产代理处
GDN 房产联盟 - SZIGET
+36 24 656 320

请给我回电话

相似的房产