公寓房(砖头) 出卖 Budapest VI. 市区 - Paulay Ede utca

出卖 Budapest VI. kerület 公寓房(砖头)
96 m2面积 3 房间
330 000 000 HUF 价格
387267识别码
更多信息

559 m2 地皮

全景 风景

新建 状态

Tégla 架构

40 m2 阳台

热泵 暖气

Dupla komfort 舒适感

在接到 停车

几层 5

顶层

电梯

Kiváló 公共交通

美国式厨房

没有 有园子

屋顶房子

2023 修建年

Délnyugat 方向

EGYEDI, Exkluzív AJÁNLAT Budapest belvárosában a Paulay Ede utcában, közel az Operához.

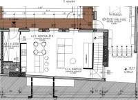
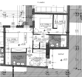
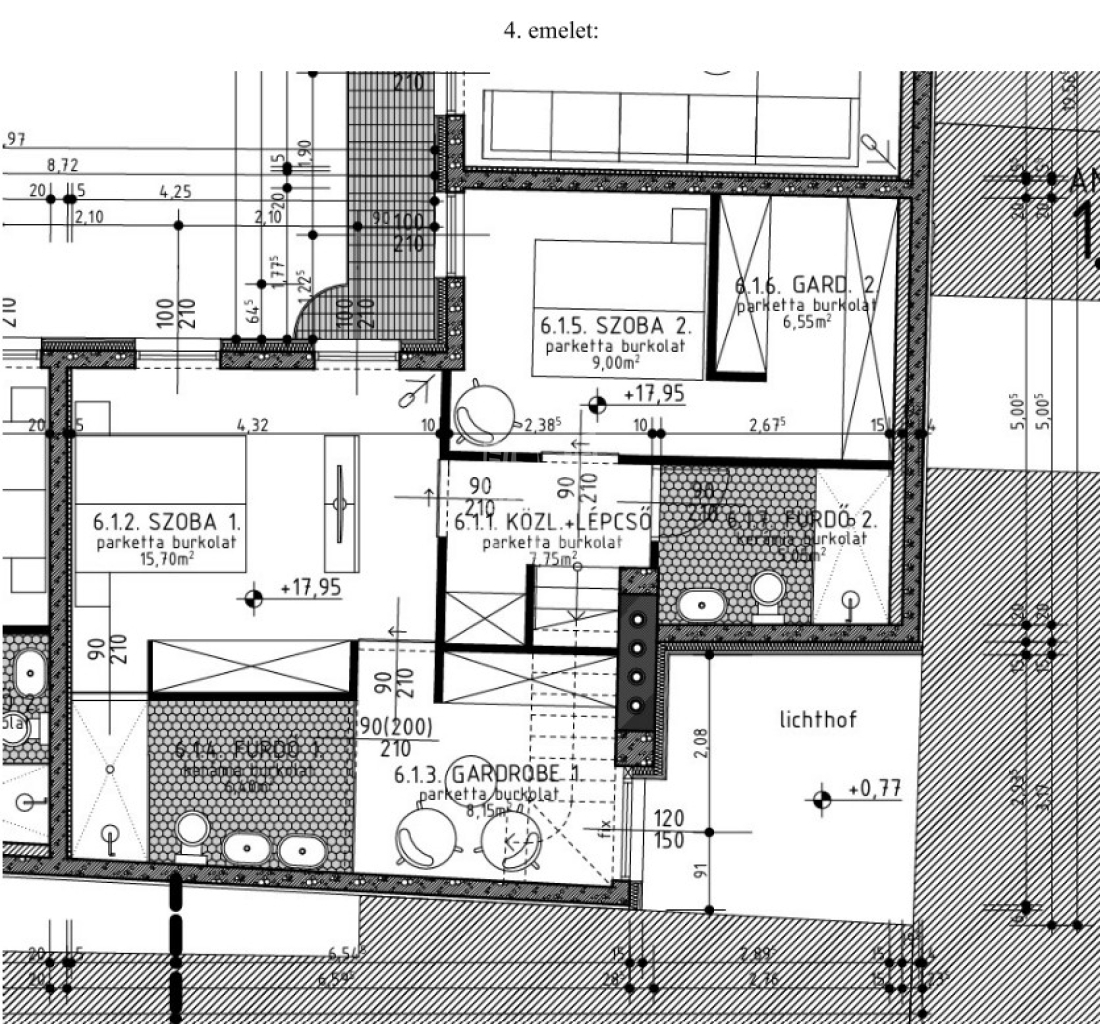
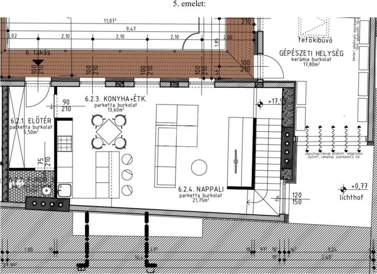
ELADÓ egy 4 – 5.em-i 96nm-s duplex, új építésű lakás, 40,47nm-es kizárólagos használatú tetőterasszal
Irányár: 330.000.000.-ft


A lakás 5.em-i része: 44.13nm
-nappali 21.75nm
-konyha-étkező 13.6nm
-előtér 5.5nm
-fürdőszoba3-- 1.9nm

közlekedő+lépcső: 7.75nm

4.em-i része: 52.05nm
-Szoba1---15.7nm
-gardrób1–8.15nm
-fürdőszoba1 –6,4nm

-szoba2 –9nm
-gardrób2–6.55nm
-fürdőszoba2–5.05nm

--------------------------------
Redukált alapterület: 101,35nm
Tulajdoni lapon szereplő terület: 96nm

A lakásnak mindkét szinten van bejárata.
Fűtési mód: hőszivattyú, fan-coil, mennyezet és padlófűtés/hűtés
Melegvíz-ellátás: hőszivattyú
Nyílászárók: fém szerkezetű, hőszigetelt, 3 rétegű bejárati ajtók, ablakok

FONTOS INFORMÁCIÓK:

A lakás készültségi foka: 85%-os.
2017-2023 között lett kialakítva.
A jelenlegi tulajdonos, kivitelező cég, vevői megrendelésre, igény szinttől és kialakítástól függően be tudja fejezni a lakást.

-Minden helyiség lebetonozott, végső festésre vár, szerelvényezés nélkül.
-Belső lépcső kialakításra vár.
-Tetőteraszra kijutás vagy lépcsővel vagy home-lifttel
-Választható burkolatok és szerelvények

Elhelyezkedés: kiváló. 200-400m belül elérhetőek a metrovonalak, villamos-, busz,-trolibusz megállók, az Andrássy út, Deák Ferenc tér, Bajcsy-Zsilinszky út, a Király utca stb., éttermek,kávézók, színház, Opera stb

Várom hívását!
Köő Zsolt

Köő Zsolt

随时给我们打电话

+36-20-234- 给我看

更多的广告

房产代理处
GDN 房产联盟 - SZIGET
+36 24 656 320