双面别墅 出卖 Budapest XXII. 市区 - Lídia utca

出卖 Budapest XXII. kerület 双面别墅
137 m2面积 5 房间
235 000 000 HUF 价格
395383识别码
更多信息

509 m2 地皮

外面是园子 风景

就像新 状态

Tégla 架构

27 m2 阳台

燃气(循环式) 暖气

De lux 舒适感

自己的车库 停车

Bun 公共交通

美国式厨房

有 有园子

2020 修建年

Nyugat 方向

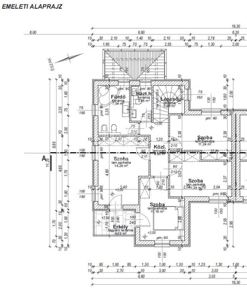
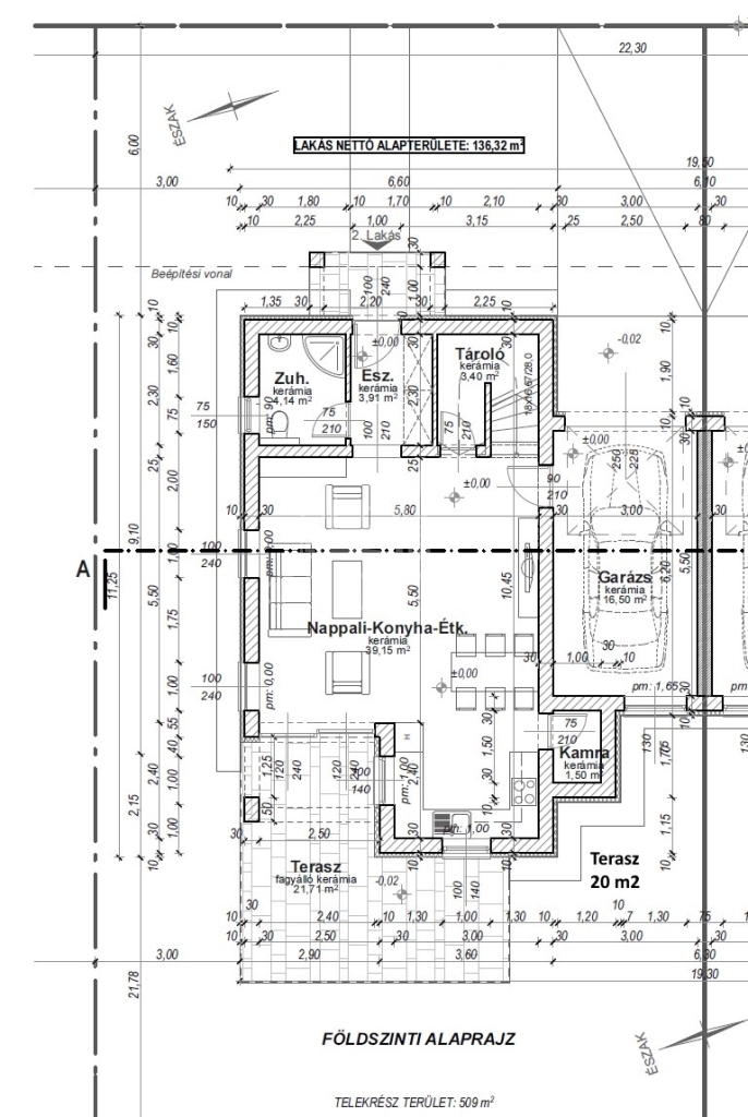
CSAK AZ IRODÁNK KÍNÁLATÁBAN! Újszerű 2020-as építésű nettó hasznos 137 m² lakóterületű ( + terasz és erkély ), földszint + teljes értékű emeletes, nappali + 4 hálószobás PRÉMIUM KATEGÓRIÁS ikerházat kínálunk eladásra, XXII. kerület Erdődűlő egyik legnyugodtabb kertvárosi részén, igényes ingatlanok szomszédságában.

Fontos kiemelni, hogy az ingatlanról készült fotók a valós állapotot tükrözik, nem mesterséges intelligencia által generált képek !!!

Az ingatlan teljes berendezéssel együtt kerül értékesítésre – a vételár minden bútort, gépesítést és kiegészítőt tartalmaz.
Természetesen a berendezés nélküli értékesítés is lehetséges, amennyiben a vevő ezt preferálja.

Az ingatlan kivitelezését egy elismert, nagy múltú, széles referenciával rendelkező kivitelező cég valósította meg, amely a környéken számos magas minőségű projektet jegyez.

A ház elrendezése átgondolt és élhető: a földszinten az épület csak a garázsnál érintkezik a szomszéddal, az emeleten pedig mindössze két hálószobánál van kapcsolódási pont.
Ennek köszönhetően a mindennapi élettér szinte teljesen szeparált, csendes és zavartalan.

Az alaprajzhoz képest az emeleten a szülői hálószobából egy elegáns tükör tolóajtón keresztül közvetlenül is megközelíthető a fenti fürdőszoba, amely szintén prémium érzetet ad ennek a helyiségnek is.

Extrák, amelyek valóban kiemelik az ingatlant:

- Két épített, üvegfalas zuhanyzó
- Szabadonálló RIHO designkád
- Minden ablakon antracit alumínium redőny + szúnyogháló
- Belső oldalon zebrafüggöny minden helyiségben
- AEG beépített konyhagépek, modern-minőségi beépített egyedi konyhabútorral
- Led beépített lépcsőfok-megvilágítás
- NODOR 16 palackos beépített borhűtő
- Minőségi hideg és melegburkolatok
- Látványkandalló fűtési funkcióval is
- 5 db inverteres klíma
- Automata-vezérelhető öntözőrendszer, gyönyörűen parkosított kert
- Riasztórendszer, telepített minőségi kamerarendszerrel
- 40 m² hátsó, burkolt terasz fedetlen és két fedett résszel is
- Rejtett kamra a konyha mellett
- Max City-ben vásárolt 6 személyes étkezőasztal, nappaliban ülőgarnitúra
- teljes további berendezésekkel és egyedi bútorokkal a szülői hálószobában, a gyerekszobákban illetve a vendégszobában

Parkolás – ritka adottság:

Az előkert teljes területe térkővel burkolt, így a garázson felül további 2 autó számára fedett beállási lehetőség biztosított.
Ezen felül még 2–3 autóval is kényelmesen be lehet állni a telken belül, ennek köszönhetően a parkolási lehetőség a telek adottságaihoz mérten maximálisan ki van használva.
A ház előtt is kényelmesen lehet parkolni az utcában.

Miért különleges ez az ingatlan?

- Prémium kulcsrakész kivitelezés
- Újszerű állapot, modern műszaki tartalom
- Teljes bútorzattal és gépesítéssel együtt eladó, így akár bőrönddel is költözhető :-)
- Minimális érintkezési pont a szomszéddal – csendes, intim élettér kint és bent
- Nagy amerikai konyhás nappali étkezővel, négy hálószoba, garázs
- Nagy 2 db. fedett és nem fedett terasz, parkosított udvar
- Kiváló lokáció: rendezett családias környezet, játszótér, Tétényi-fennsík tanösvény és Kamaraerdő közelsége

Az ingatlan részletes ismertetése és bemutatása előre egyeztetett időpontban lehetséges, melyet nagyon rugalmasan kezelünk, akár HÉTVÉGÉN is.
Amennyiben Önnek a vásárláshoz szüksége lenne hitelre egyedi kedvezménnyel, CSOK PLUSZ-ra, Babaváró Kölcsön, állami támogatásokra, stb., kezdeményezheti a kapcsolatfelvételt bankfüggetlen hitelügyintézőinkkel, teljesen DÍJMENTESEN.
Közel 25 év szakmai tapasztalattal rendelkezem, eladó vagy kiadó ingatlana értékesítése vagy bérbeadása esetén, készséggel állok az Ön rendelkezésére is.
Köő Zsolt

Köő Zsolt

随时给我们打电话

+36-20-234- 给我看

更多的广告

房产代理处
GDN 房产联盟 - SZIGET
+36 24 656 320