家庭别墅 出卖 Királyszentistván - Panorámás, újépítés, tervezhető

出卖 Királyszentistván 家庭别墅
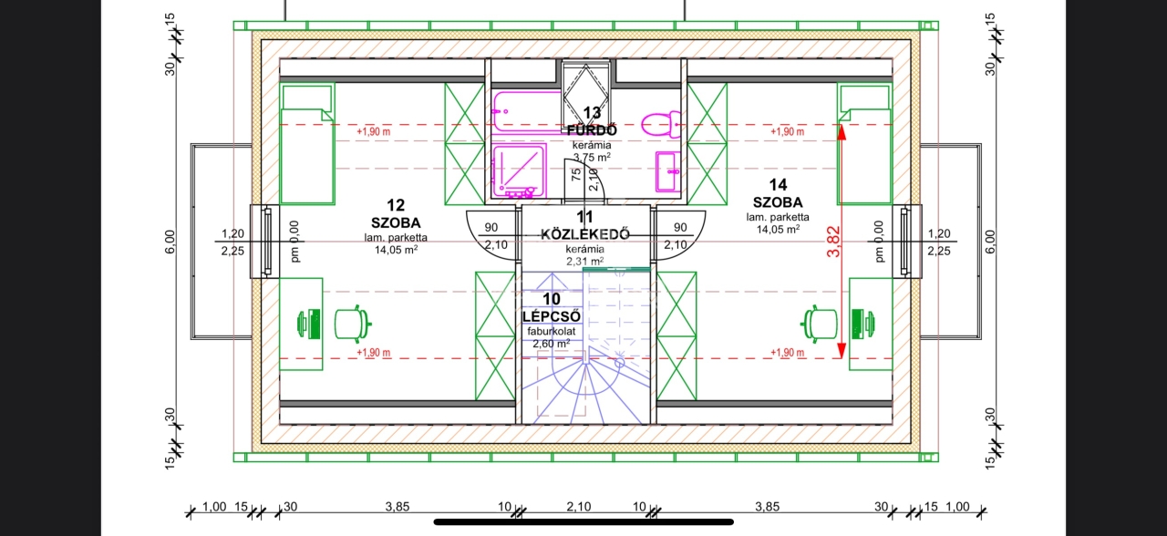
80 m2面积 3 房间
83 600 000 HUF 价格
392337识别码
更多信息

400 m2 地皮

全景 风景

新建 状态

Tégla 架构

电供热 暖气

deplin confort 舒适感

自己的车库 停车

Bun 公共交通

美国式厨房

有 有园子

2026 修建年

Álmaid otthona Királyszentistváni panorámával – új építésű családi házak elérhető áron!

Királyszentistván legkedveltebb, teljesen csendes zsákutcájában kínálunk most 5 darab új építésű, modern családi házat, ahol a nyugalom és a természet közelsége találkozik a komfortos, modern életstílussal.

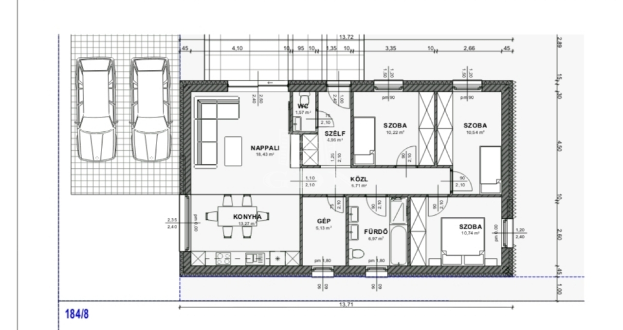
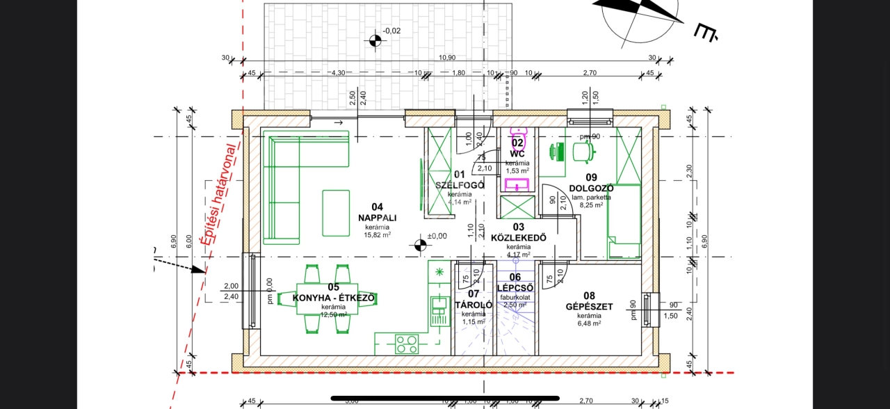
Minden ház 80–90 nm-es, napelemes, padlófűtéssel felszerelt, és a belső tér teljesen a saját igényeid szerint tervezhető. Így lehetőséged van arra, hogy minden ház pontosan úgy alakuljon, ahogyan megálmodtad.

Ár: 1 045 000 Ft/nm
Átadás: 2026 év vége
Környezet: zsákutca, csendes, nyugodt
Különlegesség: panorámás kilátás, világos, modern terek

Ez a lakópark tökéletes választás, ha szeretnél egy csendes, barátságos környezetben élni, de mégis közel a város és a mindennapi szolgáltatások. A házak új építésűek, így energiatakarékosak és hosszú távon is költséghatékonyak.
100 nm-es vagy annál nagyobb ingatlanra egyedi árak és tervek kérhetők.
Az ár tartalmazza az 5 Kw napelem rendszert és az 1 db 3,5 Kw klímát.
Beltéri ajtó 70 000 Ft / DB
Meleg burkolat :8000 Ft/nm
Hideg burkolat: 11 000 Ft/nm


Királyszentistván rendkívül jó lokációjú település, közel a Balatonhoz, Veszprémhez.

Ne hagyd ki a lehetőséget! Tervezd meg álmaid otthonát Királyszentistváni panorámával, és élvezd a békés, nyugodt életet egy modern, fenntartható házban.

Részletes műszaki leírásért, valamint további információkért hívjon bizalommal!
Köő Zsolt

Köő Zsolt

随时给我们打电话

+36-20-234- 给我看

更多的广告

房产代理处
GDN 房产联盟 - SZIGET
+36 24 656 320

请给我回电话