家庭别墅 出卖 Domony - Akác utca

出卖 Domony 家庭别墅
118 m2面积 4 房间
130 000 000 HUF 价格
393368识别码
更多信息

645 m2 地皮

全景 风景

新建 状态

Tégla 架构

可再生能源 暖气

Dupla komfort 舒适感

自己的泊车位 停车

Bun 公共交通

美国式厨房

有 有园子

2026 修建年

Délnyugat 方向

Eladó újépítésű, exkluzív családi ház Domonyvölgy szívében

Domonyvölgyben, a Gödöllői-dombság gyönyörű, természetvédelmi területén kínáljuk megvételre ezt a 619 m²-es telken épülő modern családi házat, amely a kényelem és a fenntarthatóság jegyében készül.

Az épület jelenlegi tervei szerint 118 m² lakóterű, de igény szerint akár 180 m²-re is bővíthető, így tökéletes választás lehet kisebb és nagyobb családoknak egyaránt.

Területi besorolása Lf-2 (falusias lakóövezet), 30% beépíthetőség, 5 méteres épületmagasság engedélyezett.

A belterületi övezet utolsó építési telke.

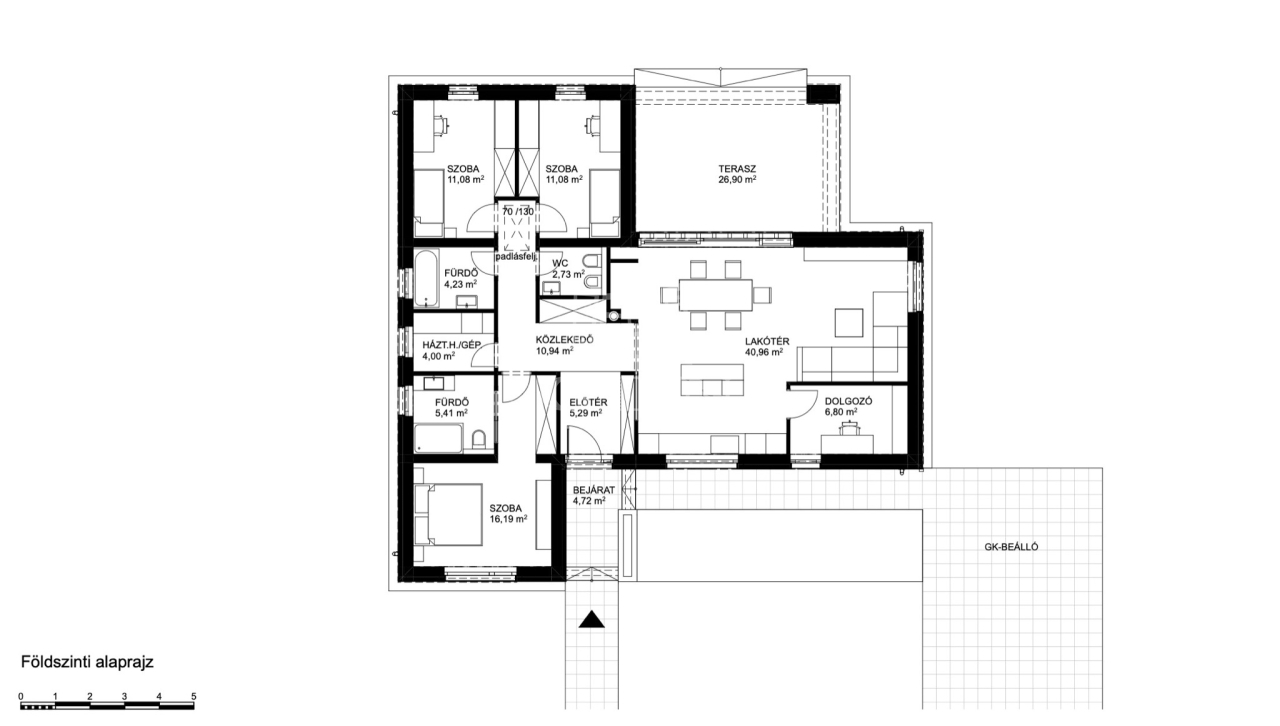
Főbb helyiségek:
- tágas, amerikai konyhás nappali-étkező (41 m²)
- 4 szoba (16, 11, 11 és 7 m²)
- 2 fürdőszoba, külön WC
- háztartási helyiség, közlekedők, előtér
- 27 m²-es terasz
- igény szerint garázs is kialakítható

Műszaki tartalom:

- beton alap, tégla falazat, kerámia tetőcserép
- háromrétegű, hőszigetelt műanyag nyílászárók
- vizes helyiségekben greslap, szobákban melegburkolat
- hőszivattyús fűtés előkészítéssel, napelemrendszer lehetőséggel
- kémény kiépítve kandallóhoz
- közművek: víz, villany az utcában, csatorna a telken belül (telekre való bevitel folyamatban, a vevő igényeihez igazítva)

Ez a ház magas műszaki tartalommal épül, amely modern és energiatakarékos otthont biztosít. A kivitelező cég referenciájaként a környéken épülő házak megtekinthetők.

Finanszírozási lehetőségek:

- CSOK Plusz
- 3%-os Otthon Start hitel
- Zöld hitel







Környék és elhelyezkedés:

A Budapesttől mindössze 35 km-re található Domonyvölgy a Natura 2000 természetvédelmi területen helyezkedik el, ahol négy hangulatos tó, erdők és különleges élővilág várja a kikapcsolódásra vágyókat.
Tömegközlekedéssel könnyen elérhető Gödöllő, illetve Aszód és Bag ahonnan számos busz és vonathálózat áll rendelkezésre.
M3 autópálya pár perc alatt elérhető (Bag, Gödöllő)

Szabadidős lehetőségek a közelben:
D-Beach homokos partszakasszal és pálmafákkal
Lázár Lovaspark – csikós bemutató, állatsimogató, magyaros vendéglátás
Domonyvölgyi víztározó és horgásztó
Extrém élmények: quad túra, off-road terepjáró, tankvezetés, paintball

Ez a ház ideális választás mindazoknak, akik szeretnék a főváros közelségét ötvözni a nyugodt, természetközeli életérzéssel – egy exkluzív, korszerű és bővíthető otthonban.

Az ingatlan előre egyeztetett időpontban megtekinthető!
Kémeri-Szekernyés Tímea

Kémeri-Szekernyés Tímea

随时给我们打电话

+36-30-248- 给我看

更多的广告

房产代理处
GDN 房产联盟 - SZIGET
+36 24 656 320

请给我回电话