公寓房(砖头) 出卖 Budapest XX. 市区 - Kende Kanuth utca

出卖 Budapest XX. kerület 公寓房(砖头)
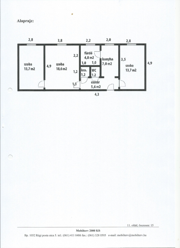
66 m2面积 3 房间
74 990 000 HUF 价格
391263识别码
更多信息

街道 风景

状态好 状态

Tégla 架构

燃气(对流式) 暖气

deplin confort 舒适感

在接到 停车

几层 2

没有 电梯

Kiváló 公共交通

No 美国式厨房

没有 有园子

1950 修建年

XX. kerület parkos környezetében, központi elhelyezkedés mellett, kis lakásszámú, rendezett társasház 2. emeletén eladásra kínálok, egy jó állapotú, 66 m2-es, 3 szobás, műanyag nyílászárókkal szerelt, klimatizált, per és tehermentes, azonnal költözhető lakást akár bútorozottan is!

A társasháztól sétatávolságra számos tömegközlekedési eszközt, üzletet és egyéb szolgáltatást találunk!

Az ingatlan megtekinthető a hét bármely napján!
Várom a hívását, akár hétvégén is!

B.Cs.
Köő Zsolt

Köő Zsolt

随时给我们打电话

+36-20-234- 给我看

更多的广告

房产代理处
GDN 房产联盟 - SZIGET
+36 24 656 320