公寓房(砖头) 出卖 Budapest XIV. 市区 - ZUGLÓBAN 13 LAKÁS ÉPÍTHETŐ

出卖 Budapest XIV. kerület 公寓房(砖头)
846 m2面积 36 房间
450 000 000 HUF 价格
388504识别码
更多信息

1077 m2 地皮

街道 风景

新建 状态

Tégla 架构

204 m2 阳台

楼房中央暖气 暖气

deplin confort 舒适感

自己的车库 停车

几层 3

顶层

电梯

Kiváló 公共交通

美国式厨房

有 有园子

屋顶房子

2026 修建年

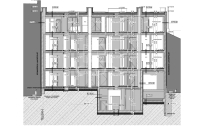
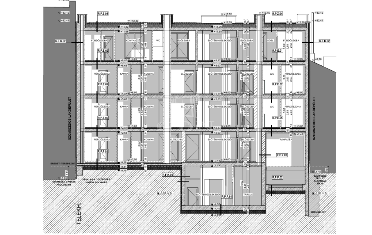
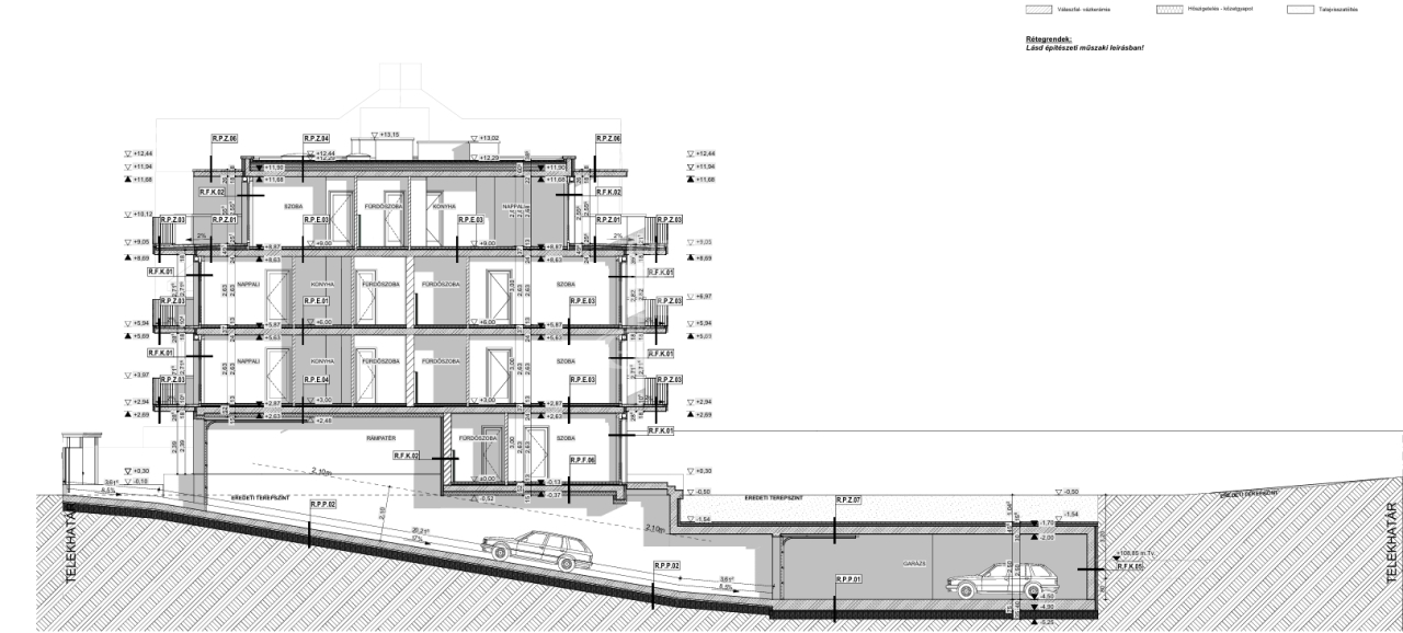
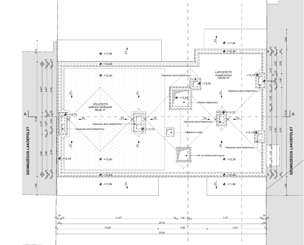
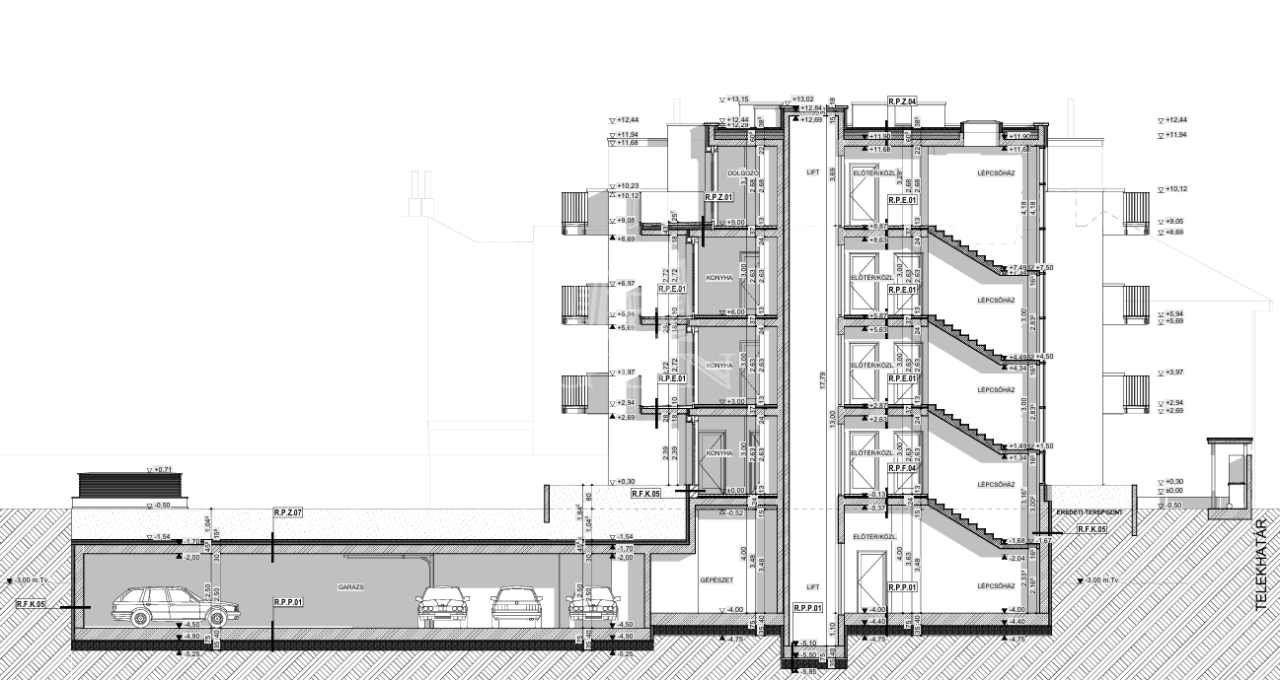
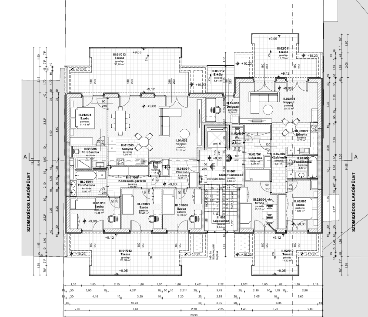
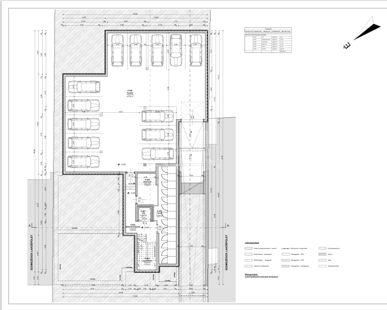
Új építésű társasház Zugló szívében – 13 lakásos prémium projekt

Zugló egyik legkedveltebb, frekventált részén elérhető 13 új lakás egy modern, engedéllyel rendelkező társasházban, melynek kivitelezése rövidesen indul!

A projekt főbb jellemzői:

13 lakás, 4 szinten – praktikus, élhető alaprajzokkal

Pinceszinten 13 gépkocsibeálló

Lift a kényelmes közlekedésért

Külön tárolók minden lakáshoz

Közös helyiségek: babakocsi- és kerékpártároló

Tágas erkélyek, teraszok és tetőteraszos lakások

Zöld-tető és környezetbarát, modern építészeti megoldások

Korszerű, energiatakarékos műszaki tartalom

Elhelyezkedés:
A társasház Zugló frekventált, mégis csendes utcájában helyezkedik el, kiváló közlekedéssel, bevásárlási lehetőségek, iskolák és parkok közelében.

Miért érdemes választani?

Azonnal induló, engedélyezett projekt

Kiváló befektetés: magas értéktartás és könnyen értékesíthető lakások

Prémium lokáció, minőségi kivitelezés

A hirdetésben feltüntetett adatok és információk csak tájékoztató jellegűek, jogi kötelezettséggel nem bíró jognyilatkozatnak minősülnek, mely nem tekinthető ajánlat tételnek és nem járnak az eladóra nézve kötelező ajánlati kötöttséggel.

Amennyiben felkeltettem az érdeklődését vagy bármely további kérdése lenne, keressen bizalommal.

Akár hétvégén is!

CSA
Apolzan Magdalena

Apolzan Magdalena

随时给我们打电话

+36-70-908- 给我看

更多的广告

房产代理处
GDN 房产联盟 - SZIGET
+36 24 656 320

请给我回电话