公寓房(砖头) 出租 Budapest XIII. 市区 - Bulcsú utca

出租 Budapest XIII. kerület 公寓房(砖头)
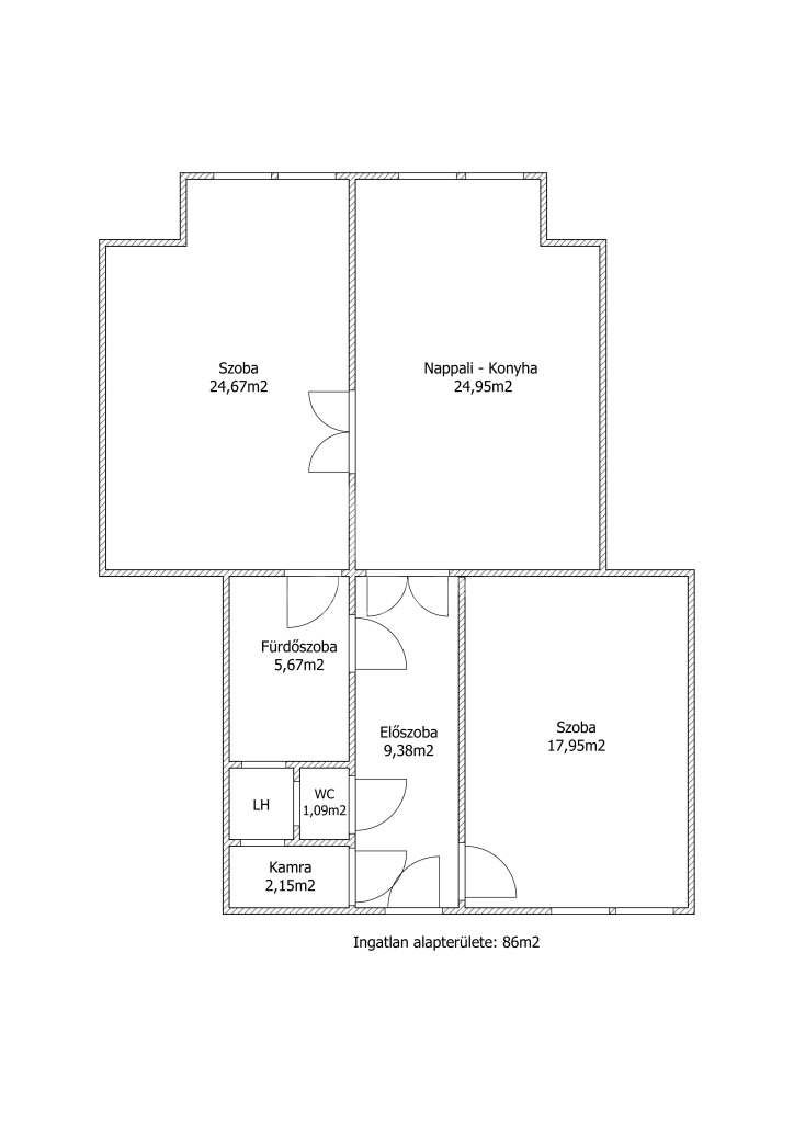
86 m2面积 3 房间
390 000 HUF /月 价格
393493识别码
更多信息

街道 风景

状态好 状态

Tégla 架构

燃气(对流式) 暖气

Comfort 舒适感

在接到 停车

几层 2

电梯

宠物 No

Kiváló 公共交通

美国式厨房

没有 有园子

1930 修建年

公关费用 33 000 HUF

Délnyugat 方向

Azonnal költözhető, 3 szobás lakás a Lehel téri piacnál – kiváló közlekedéssel, hosszú távra kiadó, egyetemistáknak és cégeknek is ideális


Budapest egyik frekventált részén, a Bulcsú utcában, közvetlenül a Lehel téri piac szomszédságában, kiadó egy jó állapotú, téglaépítésű társasház második emeletén található, 86 m²-es, világos lakás.
Az ingatlan három külön nyíló szobával rendelkezik, így ideális választás lehet családoknak, baráti társaságoknak vagy egyetemistáknak is.

A lakás elrendezése tágas és praktikus, a nagy ablakoknak köszönhetően napfényes és kellemes hangulatú.
A konyha teljesen felszerelt és gépesített, a fürdőszoba berendezése szintén rendelkezésre áll, így az ingatlan azonnal költözhető állapotban várja új bérlőit. A lakás bútorozott, ezért külön berendezésre nincs szükség.
Az ablakok utcai kilátással rendelkeznek, a környék pezsgő, városi hangulatú, miközben minden fontos szolgáltatás karnyújtásnyira található.

Kiváló lokáció és közlekedés
A lakás egyik legnagyobb előnye az elhelyezkedése: a Lehel téri piac közvetlen közelében található, ahol bevásárlási lehetőségek, üzletek, éttermek és szolgáltatások széles választéka elérhető.

A közlekedés kiemelkedően jó:
• M3 metró néhány perc sétára
• több villamos- és buszjárat a közelben
• gyors elérés a belváros és az egyetemek felé

Bérleti feltételek
Bérleti díj: 390.000 Ft / hó + rezsi
Kaució: 2 havi kaució

A lakás munkáltatói igazolással, határozatlan idejű munkaszerződéssel, valamint közjegyzői bérleti szerződéssel bérelhető.
A közjegyzői szerződés költsége a bérlőt terheli.


✨ Az ingatlan kiváló elhelyezkedése, tágas terei és azonnali költözhetősége miatt ritka lehetőség a környéken – érdemes mielőbb megtekinteni!
Gergicsné Veér Annamária

Gergicsné Veér Annamária

随时给我们打电话

+36-20-396- 给我看

更多的广告

房产代理处
GDN 房产联盟 - SZIGET
+36 24 656 320

请给我回电话