公寓房(砖头) 出卖 Budapest XIII. 市区 - Reitter Ferenc utca

出卖 Budapest XIII. kerület 公寓房(砖头)
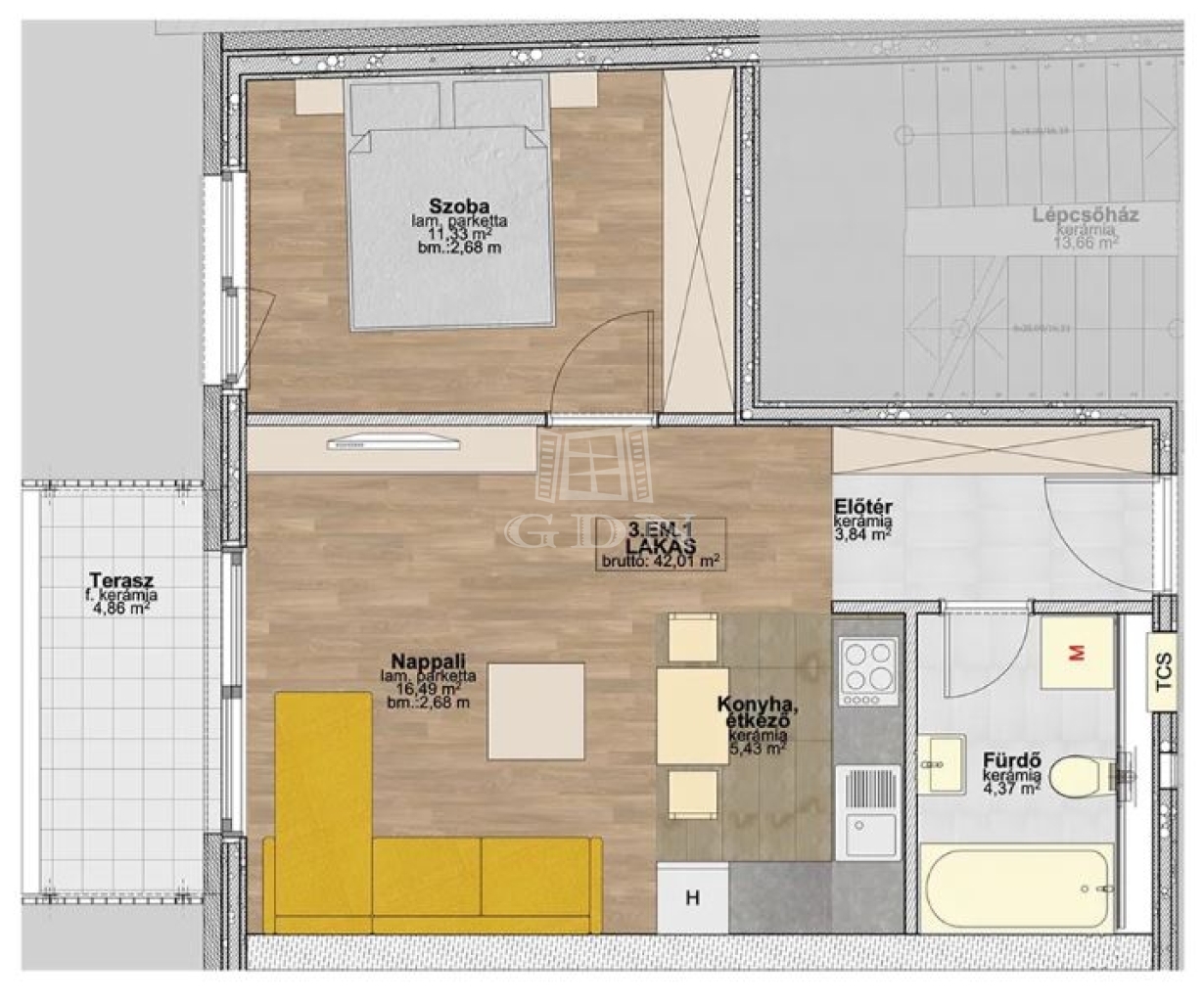
42 m2面积 2 房间
77 400 000 HUF 价格
391785识别码
更多信息

街道 风景

新建 状态

Beton 架构

5 m2 阳台

热泵 暖气

deplin confort 舒适感

可以买车库位/泊车位 停车

几层 3

电梯

Kiváló 公共交通

美国式厨房

没有 有园子

2027 修建年

Délnyugat 方向

„ÁLMODJA MEG OTTHONÁT VELÜNK”
BUDAPEST XIII. kerületben a REITTER FERENC utcában, a Rákos patak közelében, MEGBÍZHATÓ kivitelezőtől, ÚJ ÉPÍTÉSŰ, 16 lakásos, 5 emeletes, liftes társasházban 2027. II. negyedévben átadásra kerülő 42 m2 és 85 m2 alapterület közötti, 2 és 3 szobás, erkélyes, kiváló minőségű, A+ energetikájú lakások ELADÓK.

3. emelet – 42 m2 - 2 szoba – 5 m2 erkély – ELÉRHETŐ

A 25 ÉVES építési TAPASZTALATTAL rendelkező kivitelező olyan lakásokat épít, amelyek biztonságot, stabilitást nyújtanak, ezért is tartja kötelességének, hogy a LEGJOBB minőséget és a legkörültekintőbb kiszolgálást nyújtsa. Megbízható, igényes kivitelezőtől KIVÁLÓ ÁR-ÉRTÉK arányú ingatlant vásárolhat.

A kivitelezést modern, időtálló stílus és PRÉMIUM anyaghasználat jellemzi. A legmagasabb MŰSZAKI tartalommal épülő társasházban a HŐSZIVATTYÚS rendszer biztosítja a padló és mennyezet hűtés-fűtést és meleg víz ellátását. Az épület A+ ENERGETIKÁJÚ, 15 cm grafitos homlokzati szigeteléssel és 3 rétegű hőszigetelt külső nyílászárókkal.

Az 5 emeletes 16 lakásos társasház teremgarázsában AUTÓBEÁLLÓK és TÁROLÓK is épülnek, melyek külön is megvásárolhatók. Részletes műszaki tartalom a kivitelezővel történt egyeztetést követően. Alaprajz és fotók tájékoztató jellegűek.

Átadás: 2027. II. negyedév

A folyamatosan fejlődő városrészben a lokáció és a közlekedés kiváló. Ajánlom azoknak, akik OTTHONT keresnek jó közlekedéssel, BEFEKTETŐKNEK pedig a kiváló elhelyezkedés és értékállósága miatt.

Hívjon bizalommal, ha az ajánlat felkeltette érdeklődését.
Köő Zsolt

Köő Zsolt

随时给我们打电话

+36-20-234- 给我看

更多的广告

房产代理处
GDN 房产联盟 - SZIGET
+36 24 656 320