公寓房(砖头) 出卖 Budapest VIII. 市区 - Baross utca

出卖 Budapest VIII. kerület 公寓房(砖头)
56 m2面积 2 房间
92 900 000 HUF 价格
392255识别码
更多信息

街道 风景

已翻新 状态

Tégla 架构

燃气(循环式) 暖气

deplin confort 舒适感

在接到 停车

几层 1

电梯

Kiváló 公共交通

美国式厨房

没有 有园子

1940 修建年

公关费用 23 000 HUF

Délnyugat 方向

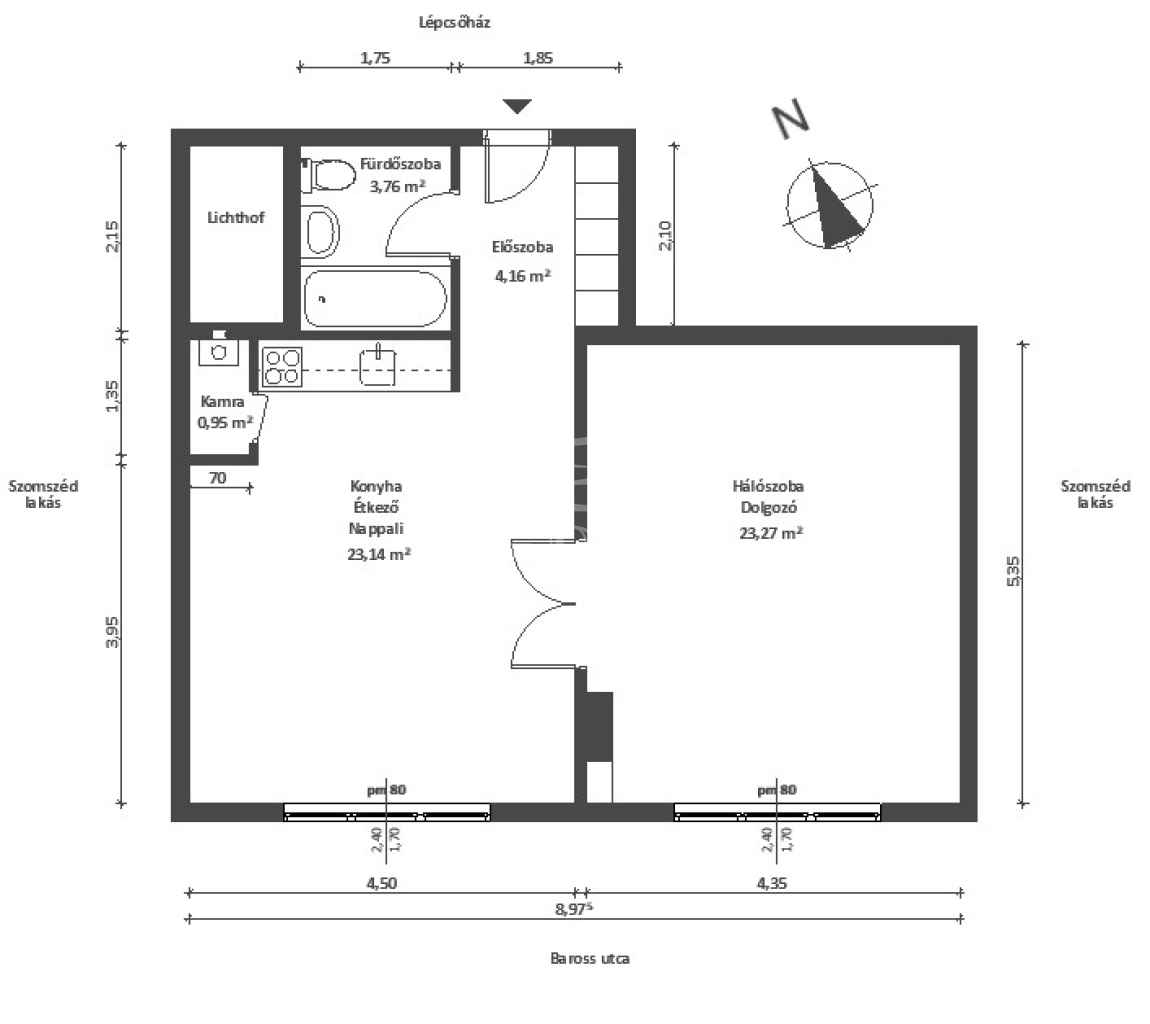
Eladásra kínálunk a Kálvin tér vonzásában egy felújított, kétszobás, emeleti lakást fiatalos környezetben!

Az első emeleti világos lakás teljeskörű felújításon esett át, a két szoba ideális elosztású.
Helyiségek; Előszoba praktikus beépített szekrénnyel, esztétikus kádas fürdőszoba, amerikai konyhás nappali, polcozott kamra- kombi cirkóval, valamint egy kényelmes hálószoba.

A liftes BAUHAUS-épület rendezett ,folyamatosan karbantartott.
Az ingatlant ajánlom minden korosztály számára, valamint befektetési célra is kiváló az egyetemek -belváros kapujában!

Minden közintézmény, bevásárlási lehetőség sétaválságon belül található. Ha szeretne egy remek megközelítésű impozáns lakást, további információért, rugalmas megtekintésért hívjon bizalommal a hét minden napján!

A lakás TEHERMENTES, azonnal költözhető, a berendezés alku tárgya.

INGYENES hitel tanácsadás, CSOK ügyintézés!
BANKFÜGGETLEN hitelcentrumunk minden elérhető bank és hitelintézet ajánlatát versenyezteti az Ön kedvéért, ráadásul DÍJMENTESEN.
LL
Kémeri-Szekernyés Tímea

Kémeri-Szekernyés Tímea

随时给我们打电话

+36-30-248- 给我看

更多的广告

房产代理处
GDN 房产联盟 - SZIGET
+36 24 656 320