商业用 - 店铺 出卖 Budapest VI. 市区 - Podmaniczky utca

出卖 Budapest VI. kerület 商业用 - 店铺
331 m2面积 0 房间
199 900 000 HUF 价格
392423识别码
更多信息

街道 风景

状态一般 状态

Tégla 架构

燃气(循环式) 暖气

在接到 停车

Kiváló 公共交通

1930 修建年

公关费用 83 000 HUF

Délnyugat 方向

Budapest egyik legforgalmasabb üzleti csomópontján, a Nyugati pályaudvar közvetlen közelében kínálunk megvételre egy 331 m² összterületű, sokoldalúan hasznosítható üzleti ingatlant.

Négyzetméterár: ~601.000 Ft/m², amely a környék adottságaihoz és a kiemelkedő utcai megjelenéshez képest kifejezetten kedvező befektetési lehetőség.

Területek megoszlása:

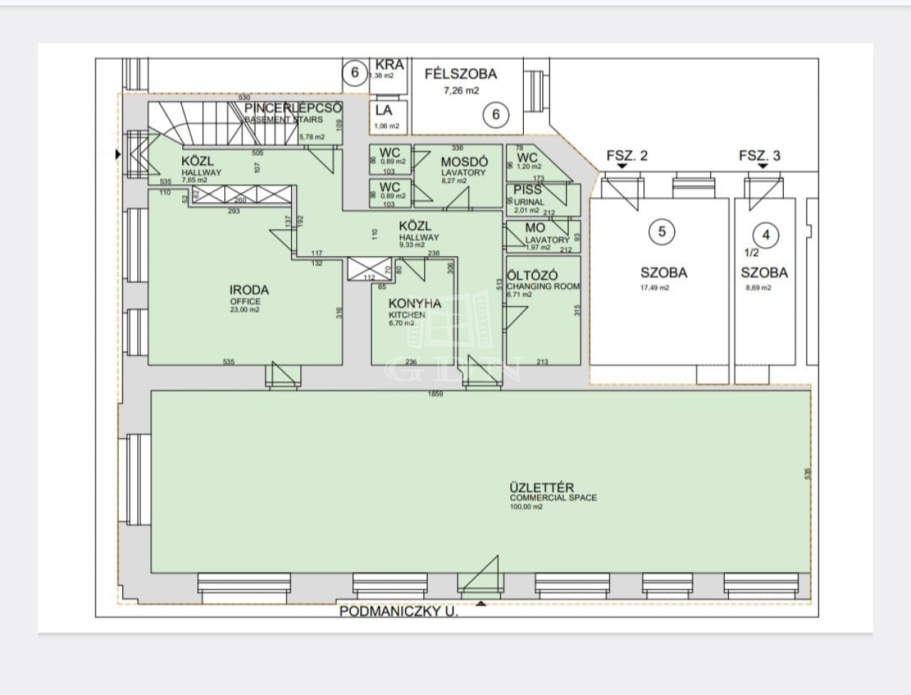
Földszint: 175 m²
Belső félemelet (galéria/tárgyaló): 41 m²
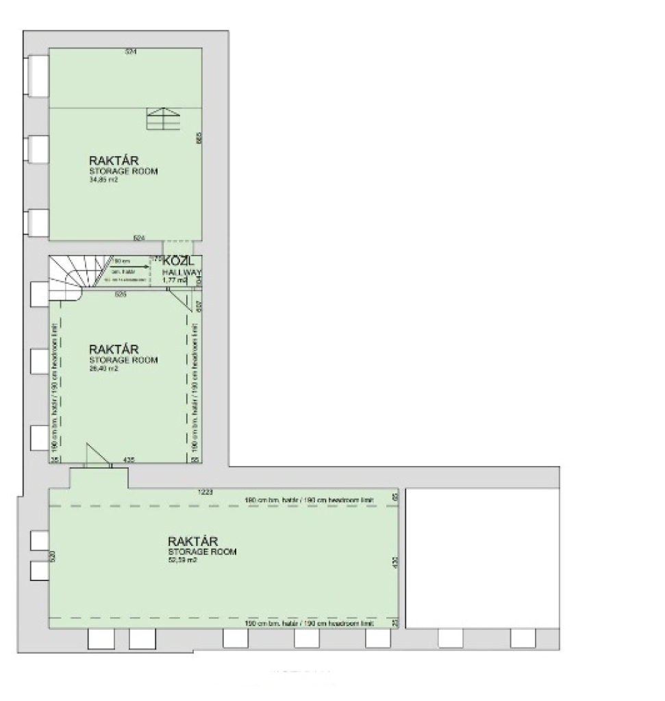
Alagsor (raktár, irattár): 115 m²
Összesen: 331 m²


Főbb jellemzők:

- Sarki elhelyezkedés, kiváló utcai jelenlét
- Két külön utcai bejárat
- Hét nagyméretű kirakati portál
- Több funkcióra bontható belső tér
- Nagy belmagasság, kiváló térérzet

Alkalmas lehet többek között:
üzlethelyiségnek, irodának, bankfióknak, cégképviseletnek, edzőteremnek, hostelnek, kulturális vagy tánctérnek, bemutatóteremnek.

Területek:

Földszint: 175 m² - reprezentatív, utcai kapcsolattal

Belső félemelet: 41 m² - téglaépítésű, teljes értékű galéria vagy tárgyaló, 2,2 m belmagassággal, akár önálló megközelítéssel

Alagsor: 115 m² - raktár- és irattárblokkok, utcai árucsúszdával

Műszaki és egyéb információk:

- Részben klimatizált
- Kiépített kamera- és riasztórendszer
- Saját vízóra
- Elektromos áram: 3 fázis, 3×32 A
- Közös költség: 83.000 Ft/hó
- A homlokzat 7–8 éve teljes felújításon esett át
- Rendezett társasház, stabil lakóközösség

Befektetők figyelmébe:
A környéken tervezett, állami szintű városfejlesztések – különösen a Nyugati pályaudvar átalakítása – jelentős hosszú távú értéknövekedési potenciált biztosítanak.

Az ingatlan az Andrássy út világörökségi helyszín védőövezetében helyezkedik el, Budapest műemlék jelentőségű területén található, tömegközlekedéssel is kiválóan megközelíthető.

Tulajdonjog és vásárlás:

Az ingatlan cég tulajdonában áll, megvásárolható céggel vagy cég nélkül is, az értékesítés ÁFA-mentes.

Megtekintés:
Rugalmasan, előzetes egyeztetést követően, akár hétvégén is.
Csík Zsolt

Csík Zsolt

随时给我们打电话

+36-30-641- 给我看

更多的广告

房产代理处
GDN 房产联盟 - SZIGET
+36 24 656 320

请给我回电话