公寓房(砖头) 出卖 Budapest VI. 市区 - Vörösmarty utca

出卖 Budapest VI. kerület 公寓房(砖头)
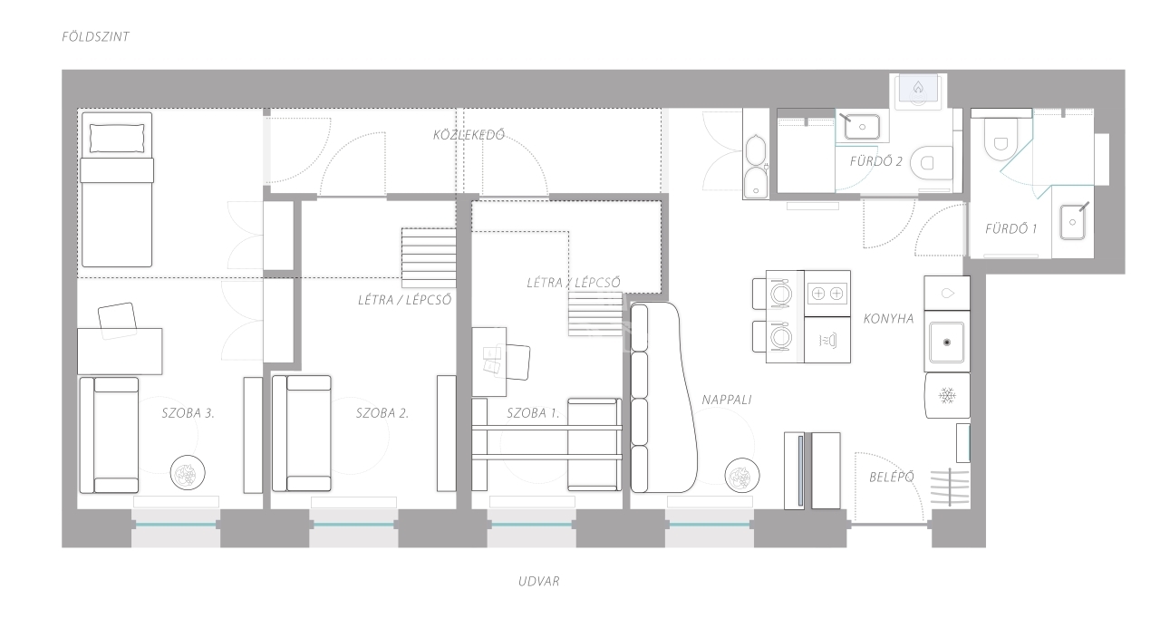
61 m2面积 3 + 1 房间
89 900 000 HUF 价格
391578识别码
更多信息

园子 风景

状态好 状态

Tégla 架构

燃气(循环式) 暖气

Dupla komfort 舒适感

在接到 停车

几层 Ground floor

电梯

Bun 公共交通

美国式厨房

没有 有园子

1900 修建年

公关费用 19 250 HUF

Eladó fiatalosan felújított lakás a VI. kerületben, a Vörösmarty utcában

A 2017-ben teljeskörűen, lakberendező közreműködésével felújított, modern, 61 m²-es lakás amerikai konyhás nappalival rendelkezik, mellette három különnyíló, jól használható galériázott hálószoba található (11, 12 és 15 m²), továbbá két fürdőszoba (mindkettő WC-vel, mosdókagylóval és zuhanyzóval felszerelt, az egyikben mosó-szárítógép is van).

A lakás ablakai a csendes belső udvarra néznek, ahol biciklik tárolása is biztonságosan megoldható. Az ingatlan teljesen gépesített és berendezett: beépített sütő, indukciós főzőlap, mosogatógép, hűtő fagyasztóval, nagy TV több száz csatornával, üvegszálas nagy sebességű internet.

Elhelyezkedés: kiváló közlekedés, percekre az Oktogon, a Nyugati tér, a Nyugati pályaudvar, a 4-6-os villamos, valamint az 1., 2., 3. metró. Bevásárlás, szórakozás, éttermek és kávézók gyalog elérhetők: Westend, Andrássy út és számos hangulatos hely a közelben.

Ideális választás stílusos belvárosi otthonnak vagy jövedelmező befektetésnek: jelenleg szobánként 160.000 Ft-ért kiadva.
Jöjjön el, nézze meg és tegyen ajánlatot!

INGYENES hitel tanácsadás!
BANKFÜGGETLEN hitelcentrumunk minden elérhető bank és hitelintézet ajánlatát versenyezteti az Ön kedvéért, ráadásul DÍJMENTESEN.

ID:391578
Kémeri-Szekernyés Tímea

Kémeri-Szekernyés Tímea

随时给我们打电话

+36-30-248- 给我看

更多的广告

房产代理处
GDN 房产联盟 - SZIGET
+36 24 656 320