公寓房(砖头) 出卖 Budapest VI. 市区 - Szondi utca

出卖 Budapest VI. kerület 公寓房(砖头)
71 m2面积 2 + 1 房间
109 900 000 HUF 价格
388136识别码
更多信息

街道 风景

状态好 状态

Tégla 架构

燃气(循环式) 暖气

Comfort 舒适感

在接到 停车

几层 2

电梯

Bun 公共交通

No 美国式厨房

没有 有园子

1950 修建年

Délnyugat 方向

Diplomatanegyed szívében – világos, különnyíló szobás lakás eladó liftes házban.

Elhelyezkedés: Diplomatanegyed, frekventált környék.

Emelet: 2. emelet (liftes ház).

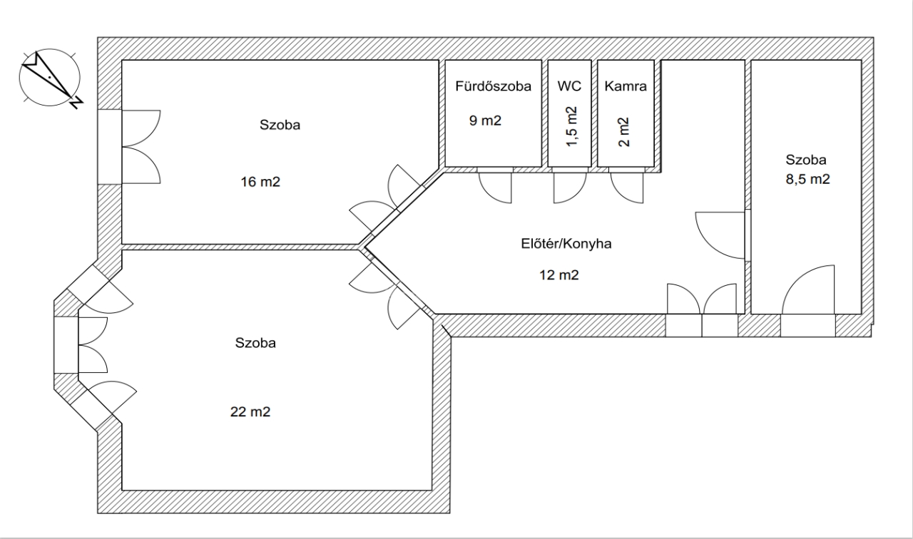
Szobák: 2 + ½ .

Fűtés: gáz cirkó.

Állapot: jó állapotú.

Közművek: minden mért fogyasztás alapján fizetendő.

Ez a napfényes, kiváló elrendezésű lakás Budapest egyik legpatinásabb városrészében, a Diplomatanegyed frekventált, mégis kellemesen élhető részén található.

A 23 m²-es nappali gyönyörű félköríves panorámaablakával különleges atmoszférát teremt, amely ritkaságszámba megy ezen a környéken. A nappali mellett két külön nyíló hálószoba, kádas fürdőszoba, külön WC, konyha, kamra, étkező, valamint előszoba teszik teljessé a praktikus alaprajzot.

A lakás a 2. emeleten található, egy liftes, rendezett társasházban, így idősek és családok számára is kényelmes választás.


Kiváló elhelyezkedés és infrastruktúra
Oktogon, Hősök tere, Városliget és az Állatkert rövid sétatávolságra

Közelben boltok, cukrászdák, iskolák, óvodák, bölcsődék

Kiváló tömegközlekedés:

72-es és 75-ös troli

5-ös busz

kisföldalatti (M1)


Kinek ajánlom?
Akik klasszikus városi miliőt keresnek kiváló közlekedéssel

Családoknak, akik szeretnének külön hálószobákat és praktikus elosztást

Befektetőknek, akik értékelik a belváros közelségét és a stabil bérbeadási lehetőséget
Köő Zsolt

Köő Zsolt

随时给我们打电话

+36-20-234- 给我看

更多的广告

房产代理处
GDN 房产联盟 - SZIGET
+36 24 656 320