公寓房(百叶窗) 出卖 Budapest IX. 市区 - Börzsöny utca

出卖 Budapest IX. kerület 公寓房(百叶窗)
55 m2面积 2 房间
78 900 000 HUF 价格
391679识别码
更多信息

街道 风景

已翻新 状态

Csúsztatott zsalu 架构

5 m2 阳台

中央供热 暖气

deplin confort 舒适感

在接到 停车

几层 3

没有 电梯

Mediu 公共交通

No 美国式厨房

没有 有园子

1970 修建年

公关费用 23 100 HUF

Dél 方向

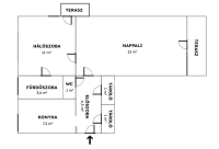
BUDAPEST IX. kerületben a JÓZSEF ATTILA-LAKÓTELEPEN a Börzsöny utcában eladó egy 3. emeleti 55 m2 alapterületű, 2 szobás (nappali + hálószoba), 2 különálló erkéllyel rendelkező, teljeskörűen felújított lakás. A lakáshoz tartozik a társasház pincéjében egy nagyobb 3-4 m2 közötti tároló is.

Közös költség: 23.100.- Ft/hó
A lakás egyedi vízórával felszerelt, a fűtésről távfűtés gondoskodik.

A 16 lakásból álló társasház csúsztatott zsalus technológiával épült. A ház szigetelése folyamatban van és tervben van annak folytatása. Az épület lépcsőházához tartozó nyílászárók már kicserélésre kerültek.

A társasház és környezete nagyon csendes. Séta távolságra található orvosi rendelő, könyvtár, gyógyszertár, boltok (Lidl, DM, Spar), továbbá számos iskola és óvoda is könnyen megközelíthető.

A parkolás az épület előtt és környékén található utcában lehetséges.

Tömegközlekedés:
- M3-as metró (Pöttyös utca, Ecseri úti megálló)
- 3-as villamos
- 181, 281-es buszok

Ajánlom azoknak, akik otthont keresnek egy rendezett társasházban, csendes környéken egy teljeskörűen felújított lakásban.

Hívjon bizalommal, ha a lakás felkeltette az érdeklődését!
Apolzan Magdalena

Apolzan Magdalena

随时给我们打电话

+36-70-908- 给我看

更多的广告

房产代理处
GDN 房产联盟 - SZIGET
+36 24 656 320