商业用 - 店铺 出租 Budapest III. 市区 - Bécsi út

出租 Budapest III. kerület 商业用 - 店铺
437 m2面积 0 房间
1 200 000 HUF /月 价格
394261识别码
更多信息

街道 风景

状态好 状态

Tégla 架构

其他 暖气

在接到 停车

Kiváló 公共交通

2000 修建年

Délnyugat 方向

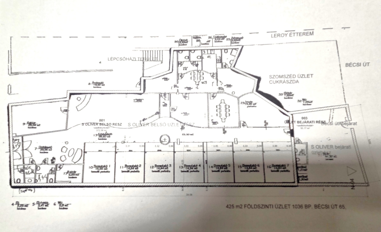
BÉCSI ÚT ÜZLETHELYISÉG!

FIGYELEM: a kínált üzlethelyiség egyik legnagyobb előnye, hogy a méretéből adódóan 2 külön vállalkozás, illetve tevékenység számára is megfelelő mérettel rendelkezik. A különböző tevékenységek egymástól hermetikusan elzártan működhetnek, ugyanis azok két külön utca felőli is megközelíthetőek (részben a Bécsi út, részben pedig a III. kerületi bíróság belső parkolója felől (ennek havi költsége 100eur/hó, amely 1db autó parkolására kínál lehetőséget).

Eddigi üzemeltetések:
könyvkiadó, műkörmös nagykereskedés, bútor bolt, Volt ételkihordó üzletlánc. Fontos megemlíteni, hogy vendéglátó egységként nem üzemeltethető.

2016.07.12-én készült Energetikai tanúsítvány alapján a helyiség DD besorolást kapott.

Elsődleges fűtés fain-coil, infra panel és inverteres hűtő-fűtő klíma.

Az üzlethelyiség egyben eladó is, melynek ára 75.000.000 Ft
Jelenlegi besorolás: üzlet és iroda, kereskedelmi egység.
Csík Zsolt

Csík Zsolt

随时给我们打电话

+36-30-641- 给我看

更多的广告

房产代理处
GDN 房产联盟 - SZIGET
+36 24 656 320

请给我回电话