公寓房(非砖头) 出卖 Budapest III. 市区 - Vörösvári út

出卖 Budapest III. kerület 公寓房(非砖头)
65 m2面积 3 房间
74 900 000 HUF 价格
389436识别码
更多信息

全景 风景

状态一般 状态

Panel 架构

4 m2 阳台

中央供热 暖气

deplin confort 舒适感

在接到 停车

几层 5

电梯

Kiváló 公共交通

No 美国式厨房

没有 有园子

1980 修建年

公关费用 13 000 HUF

Dél 方向

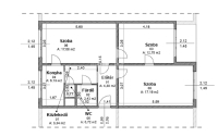
PANELPROGRAMOS, 3 SZOBÁS, LOGGIÁS, V.EMELETI, AZONNAL KÖLTÖZHETŐ, TEHERMENTES LAKÁS ELADÓ!

III. kerületben, az Óbudai Lakótelep kiváló infrastruktúrájú részén, a Vörösvári úton, 10 emeletes, szigetelt, PANELPROGRAMOS szövetkezeti társasházban, V. emeleti, 65 nm-es, (bruttó 69 nm), 3 szobás, közepes állapotú, távfűtéses, műanyag nyílászárós (rovarhálóval, redőnnyel), ablakos konyhás, Déli fekvésű, loggiás (4 nm), rendkívül alacsony fenntartási költségű, AZONNAL birtokba vehető, TEHERMENTES panel lakás eladó.

A környék ellátottsága, infrastruktúrája kiváló, busz, - HÉV - és villamos megállók karnyújtásnyira, bevásárlási lehetőségek, bankok, posta, iskola, óvoda pár percen belül elérhető.

Érdemes megnézni, bővebb információért hívjon bizalommal akár hétvégén is, előre egyeztetett időpontban kizárólag ingatlanközvetítő bevonásával megtekinthető!
L.D

INGYENES hitel tanácsadás, CSOK Plusz, OTTHON START ügyintézés!
BANKFÜGGETLEN hitelcentrumunk az összes elérhető bank és hitelintézet ajánlatát versenyezteti az Ön kedvéért, ráadásul DÍJMENTESEN.

- Egyedi, bankfiókban nem elérhető kamat- és díjkedvezmények
- Hitelképesség vizsgálat
- Idő, energia és pénz megtakarítás
- Teljes hivatali ügyintézés
Apolzan Magdalena

Apolzan Magdalena

随时给我们打电话

+36-70-908- 给我看

更多的广告

房产代理处
GDN 房产联盟 - SZIGET
+36 24 656 320