双面别墅 出卖 Balatonkeresztúr - Új építésű lakás közel a Balatonhoz

出卖 Balatonkeresztúr 双面别墅
42 m2面积 2 房间
59 500 000 HUF 价格
394262识别码
更多信息

300 m2 地皮

全景 风景

新建 状态

Könnyűszerkezet 架构

14 m2 阳台

其他 暖气

deplin confort 舒适感

自己的泊车位 停车

Bun 公共交通

美国式厨房

有 有园子

2026 修建年

ÚJ LEHETŐSÉG BALATONKERESZTÚRON!

Elindult az építkezés!
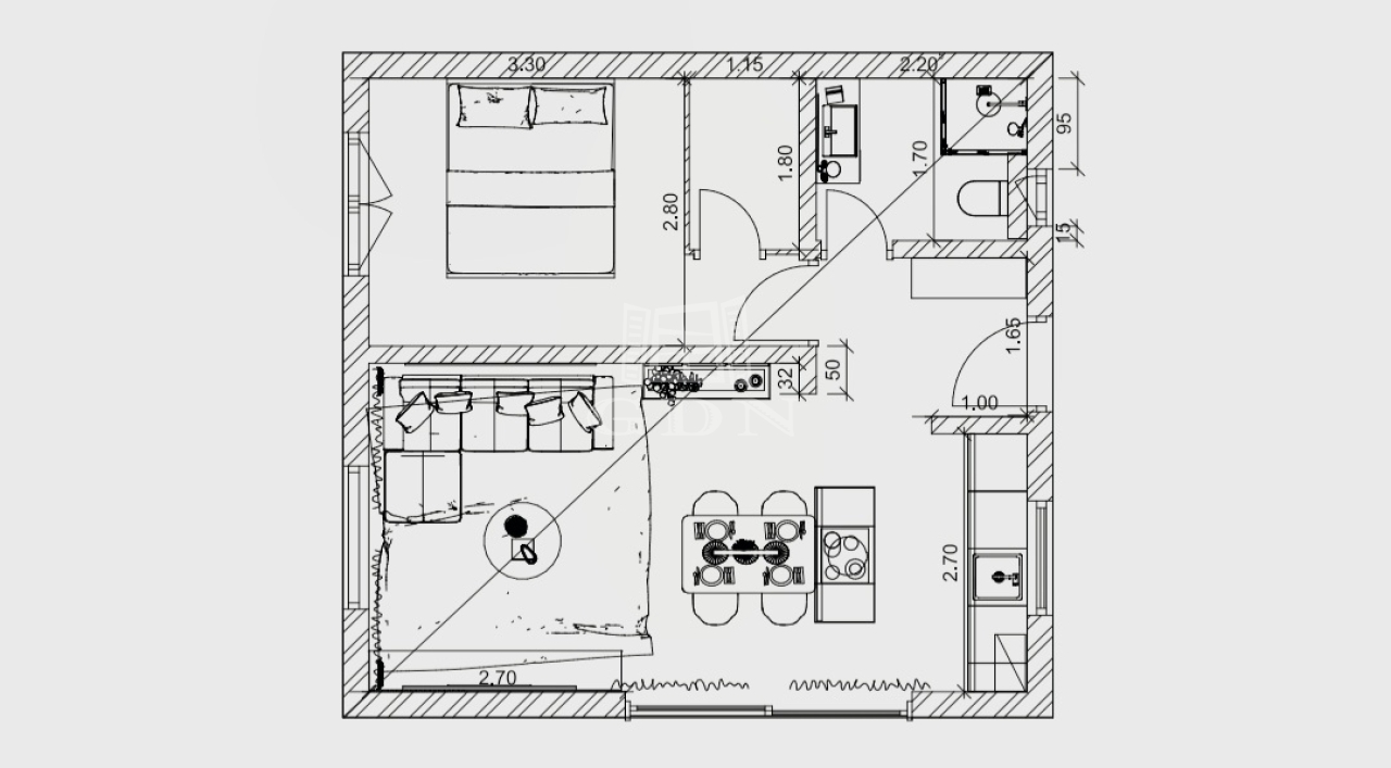
Megkezdődtek egy modern ikerház alapozási munkálatai Balatonkeresztúron, jelen hirdetésben a kisebbik, nettó 42 m²-es lakást kínáljuk megvételre.

✨ Amit kínálunk:
✔️ Teljesen kulcsrakész, költözhető állapot
✔️ 300 négyzetméteres privát, déli tájolású kert
✔️ Saját terasz ☀️
✔️ Nyugodt, balatoni környezet a csatornaparttól 200 m-re, a szabadstrand, hajókikötő 400 m.

Ár: 59.5 millió Ft

Tervezett átadás: 2026 nyara

Ha egy modern, gondtalan otthont keresel a Balaton közelében – akár saját részre, akár befektetésnek – ez egy kiváló lehetőség!

Alaprajz és műszaki tartalom leírásért érdeklődj üzenetben vagy vedd fel velünk a kapcsolatot.

2026.04.30-ig megtörténő szerződéskötés esetén egy Wellis jakuzzit vagy öntözőrendszert adunk ajándékba!
Csík Zsolt

Csík Zsolt

随时给我们打电话

+36-30-641- 给我看

更多的广告

房产代理处
GDN 房产联盟 - SZIGET
+36 24 656 320

请给我回电话