双面别墅 出卖 Albertirsa - ÚJ ÉPÍTÉSŰ 100%-os készültséggel!

出卖 Albertirsa 双面别墅
127 m2面积 5 房间
118 000 000 HUF 价格
388700识别码
更多信息

600 m2 地皮

外面是园子 风景

新建 状态

Tégla 架构

22 m2 阳台

热泵 暖气

Dupla komfort 舒适感

自己的车库 停车

Kiváló 公共交通

美国式厨房

有 有园子

2025 修建年

Délkelet 方向

ELADÓ ALBERTIRSÁN, egy KÖZPONTI, ÖSSZKÖZMŰVES, ASZFALTOZOTT UTCÁBAN ÚJ ÉPÍTÉSŰ, FÖLDSZINTES, AKADÁLYMENTES, AZONNAL BEKÖLTÖZHETŐ családi ház (kétlakásos társasház) SAJÁT KERTTEL, KÜLÖN BEJÁRATTAL. KÉT GENERÁCIÓNAK IS ALKALMAS, KIEMELKEDŐ MŰSZAKI TARTALOMMAL + H tarifával.

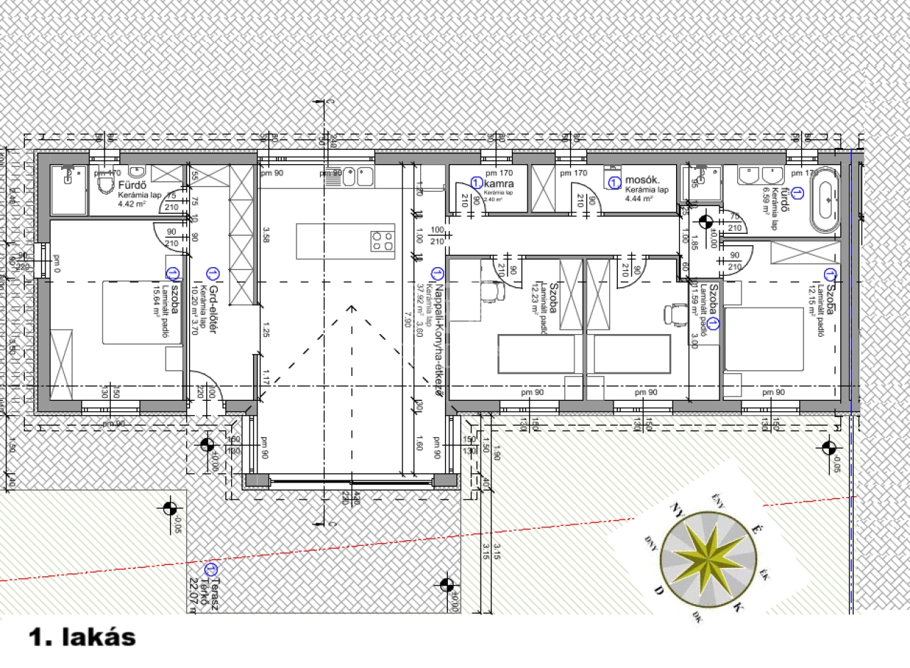
1. lakás GARÁZS épülettel
- Elrendezés: 4 hálószoba + nappali + 2 fürdő + kamra + háztartási helyiség
- Lakótér: 127 m2
- Terasz: 22 m2, 600m2-es SAJÁT KERT
- Külön épület: 37 m2, KÉTÁLLÁSOS GARÁZS
- Teljes hasznos nettó terület: 175 m2 (127 + 37 + 11)
- Ár: 118 M Ft


2. lakás
- Elrendezés: 4 hálószoba + nappali + 2 fürdő + kamra + háztartási helyiség
- Lakótér: 124 m2
- Terasz: 26 m2, 730m2-es SAJÁT KERT
- Teljes hasznos nettó terület: 137 m2 (124 + 13)
- Ár: 102 M Ft

Szerkezet és hőszigetelés:

- Főfal: Leier 30 NF tégla
- Válaszfalak: Leier 20 S és 10 tégla
- Padló alatti szigetelés: EPS 100 (10 cm)
- Külső nyílászárók: fehér műanyag, 3 rétegű üvegezéssel
- Födémszigetelés: 30 cm ásványgyapot
- Fa tetőszerkezet, tetőhéjazat: Bramac betoncserép
- Homlokzati szigetelés: 10 cm EPS
- Lábazati szigetelés: 5 cm + barna szemcsés díszvakolat

Gépészet és komfort:

VILLANYSZERELÉS: 3x16 A +1x25A H tarifás kiépítéssel.

- Hőszivattyú: japán Fujitsu High Power fűtésre és melegvíz-ellátásra
- Hidegburkolatos helyiségekben PADLÓFŰTÉS
- Szobákban és nappaliban digitális vezérlésű, HŰTŐ-FŰTŐ Galletti Flat FANCOILOK
- Fürdőszobánként 1 db törölközőszárító fali radiátor

Vízszerelés:
- 2 db fürdőszoba: fürdőnként törölközőszárítós RADIÁTOR; RAVAK ROSA II akril SAROKKÁD + zuhanyzó; GEBERIT WC falsík mögötti tartály nyomólappal.
A másik fürdőben zuhanyzó, + GEBERIT WC.


Elhelyezkedés és megközelítés
- ÖNÁLLÓ MEGKÖZELÍTHETŐSÉG, SAJÁT MÉRŐÓRÁK
- Vasútállomás: 15 perc séta / 2 perc autó
- Óvoda: ~900 m, bevásárlás: ~1 km
- Budapest: ~35 km

Praktikus, MINDENKI számára jól használható terek, korszerű gépészet és igényes szerkezet – MEGBÍZHATÓ, ÉRTÉKÁLLÓ választás.

Amennyiben felkeltette a meghirdetett ingatlan az érdeklődését, keressen bizalommal.

Kihagyhatatlan ajánlatok: CSOK+, kedvezményes kamatozású lakáshitelek.
Az ország szinte összes bankjának a hiteleit is kínáljuk, egyedi, általunk igénybe vehető kedvezményekkel, díjmentes ügyintézéssel.
Köő Zsolt

Köő Zsolt

随时给我们打电话

+36-20-234- 给我看

更多的广告

房产代理处
GDN 房产联盟 - SZIGET
+36 24 656 320

请给我回电话

相似的房产