Совмещенный дом Продается Üllő - Bozsik József körút

Продается Üllő Совмещенный дом
91 m2Площадь 4 Комната
109 000 000 HUF Цена
393046Идентификация
Прочие данные

250 m2 Yчасток

С видом на сад вид

В хорошем состоянии Cостояние

Tégla Kонструкция

12 m2 балкон/терраса

Возобновляемый источник энергии отопление

Dupla komfort Kомфортность

Свое место парковки парковка

Dobrý Общественный транспорт

Американская кухня

Есть Есть сад

2019 Год строительства

Délnyugat Расположение

NAGYCSALÁDOSOK FIGYELEM!

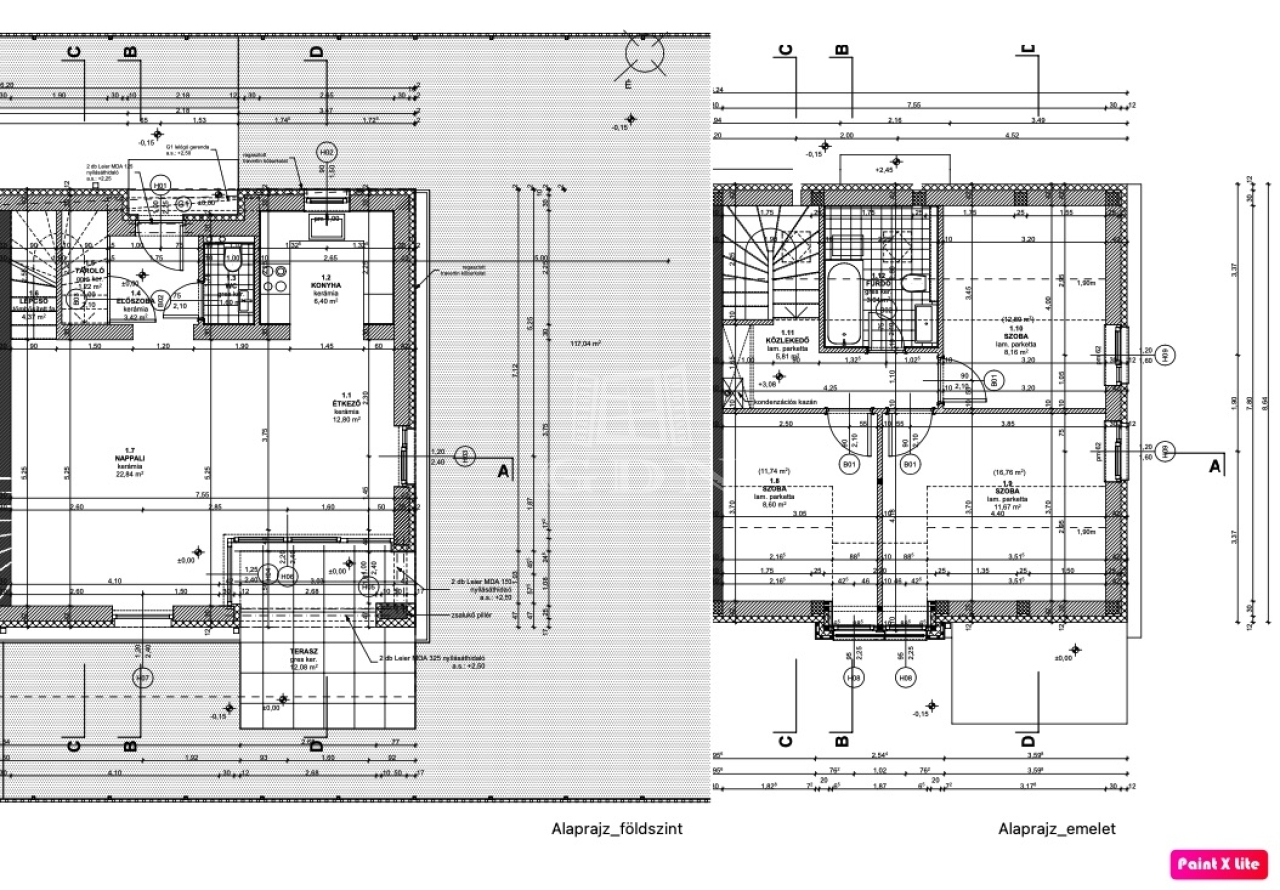
Üllőn a Sportliget lakóparkban, megvételre kínálok egy 2018-ba épült ikerház felet.

Az ingatlan Leiertherm 30N+F kerámia téglából, 10 cm-es homlokzati szigetelőrendszerrel, 10 cm-es YTONG válaszfalakkal, 15 cm-es mennyezeti paplan szigeteléssel épült, 2 rétegű műanyag nyílászáróval szerelt, 3 külön nyíló szobával, dupla komforttal nagy amerikai konyhás nappalival rendelkezik. Fűtését, egy CALEO elektromos rendszer adja.

2019-ben SolarEdge 5,4 kWp napelem rendszer lett telepítve, mely az ingatlan teljes elektromos rendszerét táplálja.
Átlagos éves termelés stabilan 4 - 5,2 MWh.

A földszinten található egy gépészeti helyiség, wc kézmosóval, kényelmes nagy nappali konyhával, közvetlen kertkapcsolattal.

Az emeleten három teljes értékű külön nyíló szoba és egy kádas fürdőszoba lett kialakítva.

A kizárólagos használatú 250 nm-es kert, kényelmes kikapcsolódást nyújt és gyorsan karbantartható.

1 személyautó parkolására van lehetőség.

Közlekedés. Budapest belvárosa 35 - 60 perc autóval, Üllő vasútállomás, 17 perc gyalogosan, 4 perc autóval.

Amennyiben hirdetésem felkeltette érdeklődését, várom hívását a hét bármely napján. tp
Gergicsné Veér Annamária

Gergicsné Veér Annamária

Звоните нам с доверием

+36-20-396- Показать

Другие объявления

Aгентств недвижимости
GDN Сеть недвижимости - SZIGET
+36 24 656 320

Перезвоните мне

Похожая недвижимость