Частный дом Продается Tiszasziget - Kossuth utca

Продается Tiszasziget Частный дом
92 m2Площадь 5 Комната
86 900 000 HUF Цена
393620Идентификация
Прочие данные

680 m2 Yчасток

С панорамой вид

Новостройка Cостояние

Tégla Kонструкция

20 m2 балкон/терраса

Тепловой насос отопление

plným komfortom Kомфортность

Свое место парковки парковка

Médium Общественный транспорт

Американская кухня

Есть Есть сад

2026 Год строительства

ÚJ ÉPÍTÉSŰ,ÖNÁLLÓ TELKEN CSALÁDI HÁZ ELADÓ TISZASZIGETEN – ZÖLD KÖRNYEZET, PRÉMIUM KIVITELEZÉS!

Tiszaszigeten kínálunk eladásra egy exkluzív kivitelezésű, új építésű családi házat a SZIGET LAKÓPARKBAN.

A beruházást nagy szakmai tapasztalattal és kiváló referenciákkal rendelkező kivitelező valósítja meg, kiemelt figyelemmel az energiatakarékosságra, esztétikumra és a minőségi anyaghasználatra.

Főbb jellemzők:

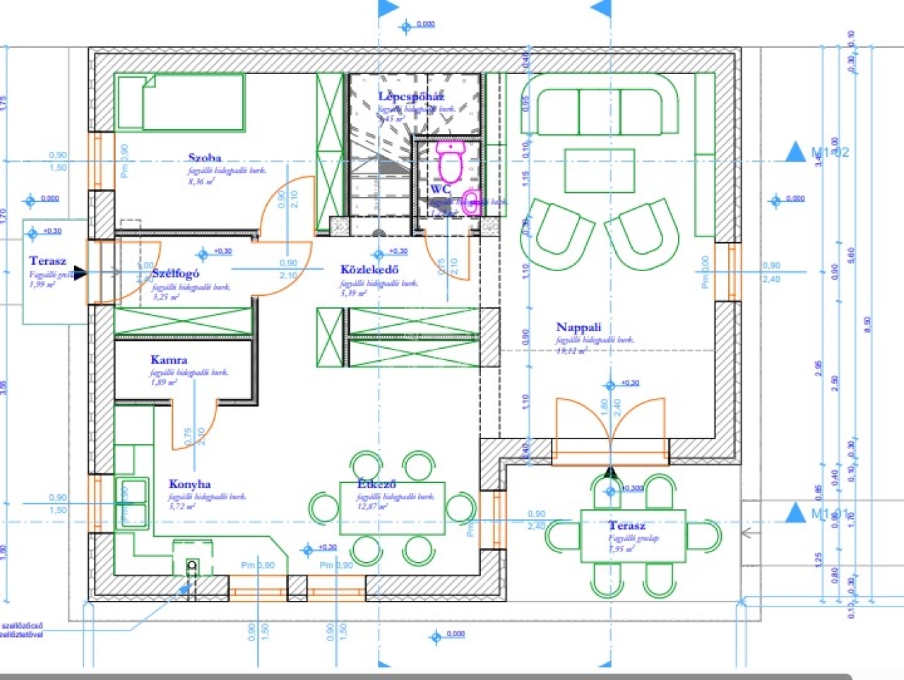
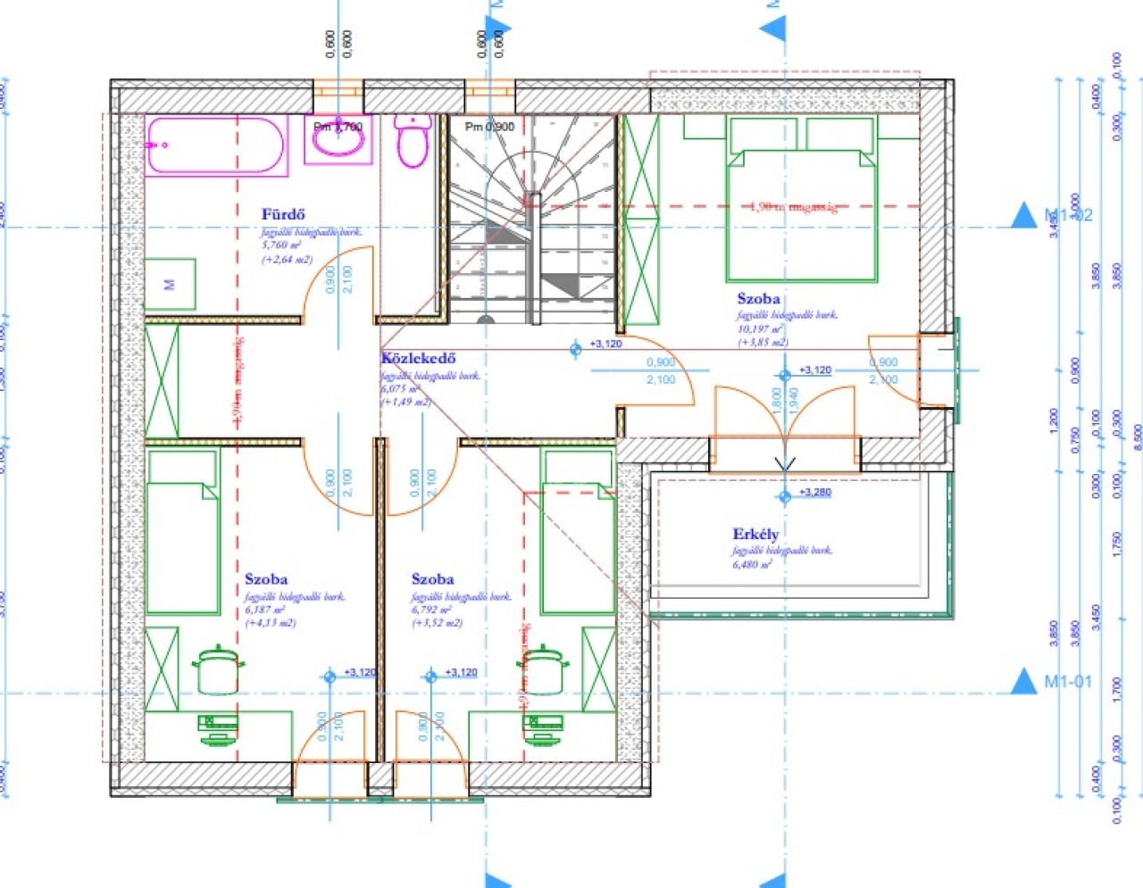
Telek mérete: 680 m2

Nettó alapterület: 92,11 m² + 8 m² terasz

Amerikai konyhás nappali + étkező, 4 hálószoba, fürdőszoba, külön WC, kamra, erkély

Modern, levegő-víz hőszivattyús fűtés, padlófűtéssel

Energiahatékony, 3 rétegű nyílászárók

Egyedi választható burkolatok, szaniterek, beltéri ajtók – teljes mértékben az Ön ízléséhez igazítva!

Hő- és hangszigetelt épület, magas műszaki tartalommal

Zöldövezeti elhelyezkedés, családbarát környezet

Műszaki tartalom kulcsrakész kivitel esetén:

Teljes belső festés, burkolás

Laminált padló, hideg burkolatok egyedi választás szerint

Alföldi porcelán szaniterek, középkategóriás csaptelepek

Programozható termosztát, szabályozható hőmérséklet

Elektromos és vízszerelvények beépítve

Igény esetén redőny és szúnyogháló is rendelhető

Környezet és elhelyezkedés:

A SZIGET LAKÓPARK Tiszasziget új, kedvelt részén helyezkedik el, csendes, zöld környezetben, ideális választás családoknak és nyugalmat keresőknek.

Szeged autóval 10-15 perc alatt elérhető, a település kiváló infrastruktúrával rendelkezik.

Amitől ez az ingatlan különleges:

Modern technológia, alacsony rezsi
Igényes, egyedi belső kialakítás
Megbízható, tapasztalt kivitelező
Természetközeli, családbarát környezet

Érdeklődj most és segítünk kiválasztani az Ön álomotthonát!
Kémeri-Szekernyés Tímea

Kémeri-Szekernyés Tímea

Звоните нам с доверием

+36-30-248- Показать

Другие объявления

Aгентств недвижимости
GDN Сеть недвижимости - SZIGET
+36 24 656 320

Перезвоните мне

Похожая недвижимость