Гараж Продается Szeged - Apáca utca

Продается Szeged Гараж
15 m2Площадь 2 Комната
13 970 000 HUF Цена
394136Идентификация
Прочие данные

Уличная вид

Новостройка Cостояние

Tégla Kонструкция

Тепловой насос отопление

plným komfortom Kомфортность

Гараж/место парковки можно купить парковка

Этаж 3

Последний этаж

Нет Лифт

Kiváló Общественный транспорт

Американская кухня

Нет Есть сад

Чердачная недвижимость

2026 Год строительства

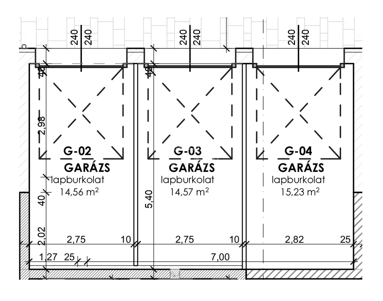
Udvari garázsok eladók Szeged belvárosában – Apáca utca

Szeged belvárosában, az Apáca utcában, új építésű társasház udvarában kínálunk megvételre önálló garázsokat, amelyek kiváló lehetőséget jelentenek saját használatra vagy befektetési célra.

A belvárosban a parkolás egyre nagyobb kihívás, ezért a garázsok iránt folyamatos és stabil kereslet tapasztalható.

Főbb jellemzők
- udvari elhelyezkedés
- külön helyrajzi egységként kialakítva
- aljzatbetonozott kivitel
- vakolt falak
- villanykiállás (kapcsoló, dugalj, lámpahely)
- billenő garázskapu

Átadás ütemezése
- 2026 év vége: emelt szerkezetkész állapot
- 2027 év eleje: kulcsrakész átadás

Miért jó befektetés?

- belvárosban korlátozott garázskínálat
- folyamatos bérlői kereslet
- alacsony fenntartási költség
- gyorsan kiadható
- hosszú távon értéknövekedés várható

Kinek ajánljuk?

- környéken lakóknak (parkolás megoldása)
- lakásvásárlóknak (értéknövelő kiegészítés)
- befektetőknek (könnyen bérbe adható)

Lokáció

- belvárosi elhelyezkedés
- zárt, udvari környezet
- biztonságos parkolás

A belvárosi garázsok egyre ritkábbak, ezért stabil, alacsony kockázatú befektetésnek számítanak, amelyek könnyen hasznosíthatók bérbeadással.

További információért keressen bizalommal!
Apolzan Magdalena

Apolzan Magdalena

Звоните нам с доверием

+36-70-908- Показать

Другие объявления

Aгентств недвижимости
GDN Сеть недвижимости - SZIGET
+36 24 656 320

Перезвоните мне

Похожая недвижимость