Частный дом Продается Vecsés - Felsőhalom csendes részén

Продается Vecsés Частный дом
143 m2Площадь 4 Комната
129 900 000 HUF Цена
379841Идентификация
Прочие данные

370 m2 Yчасток

С видом на сад вид

Отремонтированная Cостояние

Tégla Kонструкция

24 m2 балкон/терраса

Газ (циркуляционный) отопление

plným komfortom Kомфортность

Частный гараж парковка

Médium Общественный транспорт

No Американская кухня

Есть Есть сад

1998 Год строительства

Délkelet Расположение

OTTHON ÉS VÁLLALKOZÁS EGY HELYEN VECSÉS CSENDES MELLÉKUTCÁJÁBAN!!!

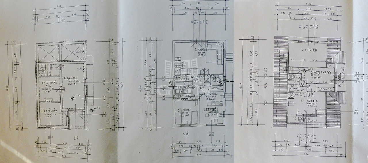
Vecsés Felsőhalom részén, csendes mellékutcában, 1998-ban épült, 370 nm-es önálló telken lévő, bruttó 227 nm-es (70 NM-ES PINCE + GARÁZS + 14 nm IRODAHELYISÉG) , 3 szintes, vasbeton födémes, szigetelt (10 cm dryvit), 4 szobás, felújított állapotú, gáz cirkó (kondenzációs, Bosch), - cserépkályha fűtéses, hűtő fűtő klímával, riasztóval felszerelt, thermo nyílászárós (redőnnyel), Dél - Keleti fekvésű, tehermentes családi ház eladó.

A földszinten egy tágas, nagy belmagasságú (5,4 m), galériázott nappali, hálószoba, étkezős konyha, kamra, wc, fürdőszoba és egy fedett terasz (15 nm) kapott helyet.

Az emeleten két hálószoba, két loggia (10 nm), fürdőszoba, gardrób és nappali (galéria részen) került kialakításra.

A pince szinten található a két állásos garázs, mosókonyha, kazánház, amely közvetlen a lakásból is és az udvarról is megközelíthető. A kazánház korábban ÜZLETHELYISÉGKÉNT funkcionált, könnyedén vissza alakítható vállalkozás céljára (kozmetika, műkörmös, kisebb iroda, kutyakozmetika, stb.), a három fázis rendelkezésre áll.

A kert kikapcsolódásra, pihenésre alkalmas, kisebb medencének is van hely a terasz mellett, továbbá fúrt kút is megtalálható.

A környék ellátottsága, infrastruktúrája jó, a vecsési Market Central cca. 2 km-re helyezkedik el, bevásárlási lehetőségek (Tesco, Lidl, Praktiker), éttermek számos sora található, a vasútállomás (Nyugati páyaudvar cca. 35-40 perc), Ferihegyi reptér, az M0-ás autóút és az M4-es autópálya könnyen elérhető személyautóval.

Érdemes megnézni, bőveb információért hívjon bizalommal akár hétvégén is!
L.D

INGYENES hitel tanácsadás, CSOK Plusz, OTTHON START ügyintézés!
BANKFÜGGETLEN hitelcentrumunk az összes elérhető bank és hitelintézet ajánlatát versenyezteti az Ön kedvéért, ráadásul DÍJMENTESEN.

- Egyedi, bankfiókban nem elérhető kamat- és díjkedvezmények
- Hitelképesség vizsgálat
- Idő, energia és pénz megtakarítás
- Teljes hivatali ügyintézés
Gergicsné Veér Annamária

Gergicsné Veér Annamária

Звоните нам с доверием

+36-20-396- Показать

Другие объявления

Aгентств недвижимости
GDN Сеть недвижимости - SZIGET
+36 24 656 320