Частный дом Продается Szada - Szada zsákutcájában

Продается Szada Частный дом
145 m2Площадь 5 Комната
94 900 000 HUF Цена
384386Идентификация
Прочие данные

288 m2 Yчасток

С видом на сад вид

Отремонтированная Cостояние

Tégla Kонструкция

25 m2 балкон/терраса

Газ (циркуляционный) отопление

Dupla komfort Kомфортность

Свое место парковки парковка

Dobrý Общественный транспорт

Американская кухня

Есть Есть сад

1998 Год строительства

Délnyugat Расположение

SZADA CSENDES ZSÁK UTCÁJÁBAN, EGYEDI KIALAKÍTÁSÚ, FELÚJÍTOTT ÁLLAPOTÚ, 2 GENERÁCIÓS CSALÁDI HÁZ ELADÓ!!!

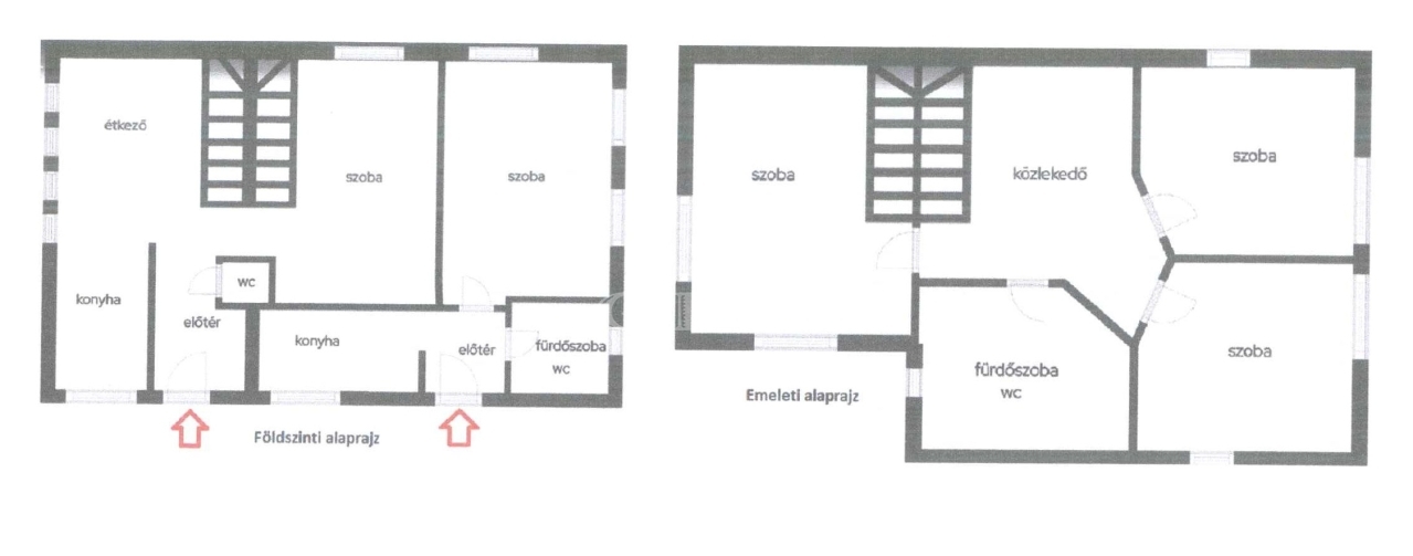
Szada csendes zsák utcájában, kertvárosi környezetben, 288 nm-es telken lévő, 1998-ban épült, de 2007-ben és 2022-ben teljeskörűen felújított és kibővített, vasbeton födémes, két szintes, szigetelt (10cm dryvit), felújított állapotú, bruttó 170 nm-es, 5 szobás, Dél - Nyugati fekvésű, 2 GENERÁCIÓS (külön bejárattal, de vissza is alakítható 1 generációsra), gáz cirkó fűtéses (radiátoros hőleadással), klímával felszerelt, műanyag thermo nyílászárós, rugalmasan birtokba vehető, családi ház eladó.

A nagyobbik lakrészen (110 nm) amerikai konyhás, étkezős nappali, 3 hálószoba, fürdőszoba, wc lett kialakítva két szinten.

A kisebbik lakrész 35 nm-es, földszintes 1 szobával, fürdőszobával, konyhával nyerte el jelenlegi állapotát.

A zárt udvaron 2 autóval meg lehet állni, a kertben egy nagy terasz (25 nm), boros pince (8nm), tároló, bográcsozó kapott helyet.

A környék ellátottsága, infrastruktúrája jó, sétatávolságra iskola, óvoda, gyermekorvosi rendelő, játszótér található, közvetlen buszjárattal elérhető Budapesten a Stadionok Metró megálló, továbbá személygépkocsival az M0-ás, M3-mas autópálya, Tesco, Stop Shop perceken belül megközelítehető!

Érdemes megnézni, bővebb információért hívjon bizalommal akár hétvégén is!
L.D

INGYENES hitel tanácsadás, CSOK PLUSSZ, OTTHON START ügyintézés!
BANKFÜGGETLEN hitelcentrumunk az összes elérhető bank és hitelintézet ajánlatát versenyezteti az Ön kedvéért, ráadásul DÍJMENTESEN.

- Egyedi, bankfiókban nem elérhető kamat- és díjkedvezmények
- Hitelképesség vizsgálat
- Idő, energia és pénz megtakarítás
- Teljes hivatali ügyintézés
Csík Zsolt

Csík Zsolt

Звоните нам с доверием

+36-30-641- Показать

Другие объявления

Aгентств недвижимости
GDN Сеть недвижимости - SZIGET
+36 24 656 320

Перезвоните мне

Похожая недвижимость