Частный дом Продается Kecskemét - Talfája tanya

Продается Kecskemét Частный дом
145 m2Площадь 5 Комната
142 500 000 HUF Цена
376559Идентификация
Прочие данные

12079 m2 Yчасток

Во двор вид

Новая Cостояние

Tégla Kонструкция

85 m2 балкон/терраса

Газ (циркуляционный) отопление

plným komfortom Kомфортность

Частный гараж парковка

Médium Общественный транспорт

Американская кухня

Есть Есть сад

2019 Год строительства

Otthonok és megoldások.
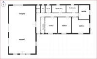
Kecskemét, Talfája külterületi részén, a Tesco közelében, kertvárosi övezetben, 1,2 Ha területen 145 nm, nappali + 4 szobás, 5 éve épült családi ház eladó.
A házban gépesített konyha, 5 darab hűtő-fűtő légkondicionáló, gázkazán padlófűtéssel, cserépkályha, riasztórendszer, kiépített kamerarendszer található.
A területen 25 KW-os napelempark lett kiépítve, ami nullás villanyfogyasztást eredményez. A ház alatt 85 nm burkolt, pince-garázs található, 80 nm terasz, beépíthető 100 nm padlástér kiváló lehetőség nagycsaládosok részére.
Az épület kivett udvar besorolású, a terület szántónak van minősítve egy helyrajzi számon. Alkalmas lótartásra, vagy bármilyen kisebb mezőgazdasági célra. Körbe van teljesen kerítve, a bejutás két kovácsoltvas, távirányítható kapun keresztül lehetséges.
A telken 50 méter mély fúrott kút van.
CSOK-ra és hitelre alkalmas az ingatlan.
Ha felkeltettem az érdeklődését, tekintse meg velem!
Apolzan Magdalena

Apolzan Magdalena

Звоните нам с доверием

+36-70-908- Показать

Другие объявления

Aгентств недвижимости
GDN Сеть недвижимости - SZIGET
+36 24 656 320