Частный дом Продается Diósd - Új építés luxus kivitelezés

Продается Diósd Частный дом
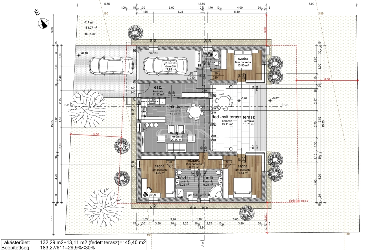
145 m2Площадь 4 Комната
210 000 000 HUF Цена
392800Идентификация
Прочие данные

611 m2 Yчасток

Во двор вид

Новостройка Cостояние

Tégla Kонструкция

13 m2 балкон/терраса

Тепловой насос отопление

Dupla komfort Kомфортность

Частный гараж парковка

Dobrý Общественный транспорт

Американская кухня

Есть Есть сад

2026 Год строительства

Délkelet Расположение

EXKLUZÍV ÚJ építésű családi ház Diósd egyik legértékesebb részén, Diósdligeten.
Nagy erőkkel folyik az építkezés!!! Még dönthet a belső kialakításban!

Diósd rendezett környezetében formálódik ez a letisztult, luxus megjelenésű családi ház, ahol minden részlet a modern életstílust szolgálja.
CSEND, MADÁRCSICSERGÉS! A NYUGALOM SZIGETE!

A belső terek elrendezése:
- kényelmes közlekedő
- amerikai konyhás nappali, ahol főzés közben is kapcsolatban maradhat a család és a vendégek
- 3 hálószoba
- mindegyik szobához külön fürdőszoba!
- a nappaliból megközelíthető a szinte egybenyitható hatalmas méretű terasz, ami megnöveli a teret, ahol igazán élvezheti a családi, baráti összejöveteleket
- garázs, melyből közvetlenül megközelítheti a belső tereket, így ha esik, ha fúj, az Ön kényelme teljes mértékben biztosított.

A tágas, amerikai konyhás nappali a ház szíve, amely természetes fénnyel, teraszkapcsolattal válik igazán élhetővé.
A három hálószoba, a garázs és a korszerű gépészet mind azt szolgálja, hogy a kényelem és az energiahatékonyság kéz a kézben járjon.

PRÉMIUM műszaki tartalom, ami a jövőnek épül:

Porotherm falazat, monolit vasbeton födém
15 cm grafitos homlokzati hőszigetelés
3 rétegű 7légkamrás antracit nyílászárók elektromos alumínium redőnnyel
hőszivattyús rendszer, H tarifa
teljes padlófűtés
klimatizált terek - központi hűtés és szellőzőrendszer
elektromos redőnyök

Extra előkészítések a jövőre:
napelem- és elektromos autó-töltő
kamerarendszer, riasztó, modern okosmegoldások

Lokáció, ami ritka érték:
Aszfaltozott utca, kész házak környezete, nincs további építkezés.
Budapest mindössze 15 perc autóval, M0, M6, M7 gyorsan elérhető.
Iskola, óvoda, bevásárlás, éttermek – minden karnyújtásnyira.

Nem tömegmegoldás. Nem sablon.
Egy átgondolt, időtálló otthon azoknak, akik minőséget keresnek.

A kivitelezés tapasztalt, referenciákkal rendelkező építőcsapat munkája, e-naplós rendszerrel, átlátható folyamatokkal. Minden tervdokumentáció elérhető.

Tervezett átadás: 2026 nyár használatbavételi engedéllyel

!!! A képek között látványtervek szerepelnek, szobákról, nappali berendezés, fürdőszoba. Ötletként kiválóan szolgálnak, az elképzeléseknek a fantázia szab határt!!!!!

Ne vigyék el Ön elöl! Érdeklődjön és válassza ki még most Ön a burkolatokat, színeket és kövesse tovább az építkezés folyamatát!
Teljes mértékben személyre szabható belső kialakítás:
Burkolatok, szaniterek, beltéri ajtók – az új tulajdonos döntései alapján, rugalmas kivitelezéssel.
Kémeri-Szekernyés Tímea

Kémeri-Szekernyés Tímea

Звоните нам с доверием

+36-30-248- Показать

Другие объявления

Aгентств недвижимости
GDN Сеть недвижимости - SZIGET
+36 24 656 320

Перезвоните мне

Похожая недвижимость