Primărie Vânzare Veresegyház - Csodaszarva utca

Vânzare Veresegyház Primărie
123 m2Suprafaţa 5 Camere
119 900 000 HUF Preţ
395178Identificare
Mai multe detalii

207 m2 Teren

Curte Vedere

Renovat Stare

Caramida Structură

5 m2 Balcon/Terasă

Gaz Încălzire

Confort 1 Confort

Garaj Propriu Parcare

Bun Transport public

Bucătarie deschisă

Existent Acces la grădină

1993 An construcție

Aladásra kínálok Veresegyház kedvelt részén egy sorházat, utolsó lakásként a sorban.
A tömb 6 lakásból áll.
Teljes körű műszaki és esztétikai felújításnak köszönhetően újszerű állapot, modern, letisztult külső, azonnal költözhető.
•Méretéből és elosztásából fakadóan kisebb és nagyobb családoknak is ideális választás.
•Kerkapcsolat és erkélyek: valódi, kis ráfordítású életteret nyújt.
•Garázs, közvetlen bejárattal, elektromos kapuval!

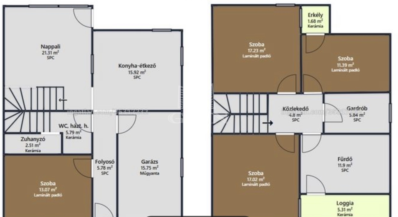
Földszint:
•tágas, világos nappali kertkapcsolattal
•külön nyíló szoba, hálónak és dolgozónak is tökéletes
•konyha-étkező
•zuhanyzós fürdőszoba + WC
•folyosó
•garázs közvetlen kapcsolattal

Emelet:
•3 külön nyíló hálószoba
•nagy méretű kádas fürdőszoba
•külön gardrób helyiség
•közlekedő
•2 erkély

Műszaki tartalom:
•felújított fűtésrendszer (kombi cirkó radiátorokkal)
•felújított villamos hálózat (1x32A, jó szakaszolás)
•új gipszbeton lépcső
•teljeskörűen felújított modern fürdők
•2 rétegű műanyag hőszigetelt nyílászárók redőnnyel és szúnyoghálóval
•10 cm szigetelés
•tetőablak és teljes héjazat csere és 20 cm kőzetgyapot födémszigetelés

A felújítás 2026 április végére befejeződik, de már jelenleg is megtekinthető.

Veresegyház egyik legkeresettebb részén található:
•nyugodt, családbarát környezet, kiváló, befogadó utcaközösség
•jó infrastruktúra
•iskola, óvoda, bevásárlási lehetőségek a közelben

Az ingatlan rövid határidővel birtokba vehető és azonnal költözhető állapotban kerül átadásra.
Apolzan Magdalena

Apolzan Magdalena
Agent de publicitate

Contactează-mă!

+36-70-908-Arată

Mai multe anunțuri

Agenție Imobiliară
GDN Rețea de agenții imobiliare - SZIGET
+36 24 656 320