Casa Familiala Vânzare Veresegyház - Veresegyház csendes részén

Vânzare Veresegyház Casa Familiala
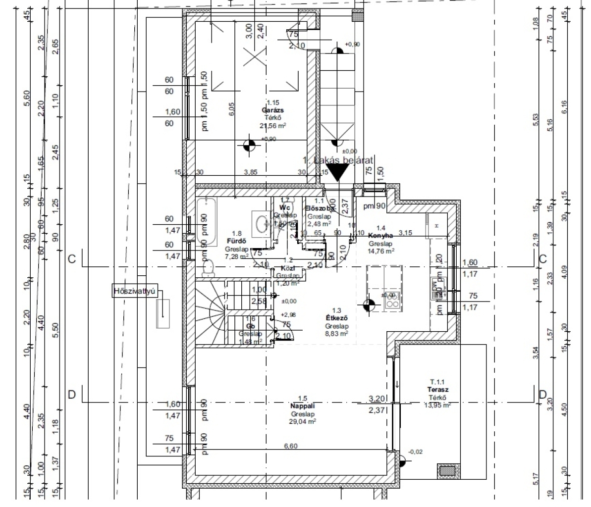
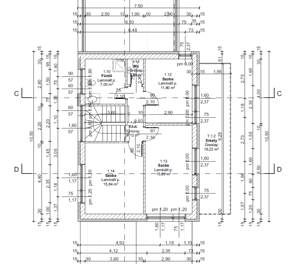
149 m2Suprafaţa 4 Camere
158 000 000 HUF Preţ
390230Identificare
Mai multe detalii

450 m2 Teren

Vedere spre grădină Vedere

Proprietate nouă Stare

Caramida Structură

32 m2 Balcon/Terasă

Pompă de căldură Încălzire

Dupla komfort Confort

Garaj Propriu Parcare

Mediu Transport public

Bucătarie deschisă

Existent Acces la grădină

2025 An construcție

Sud Est Orientare

VERESEGYHÁZ, HEGYEK VÁROSRÉSZ KERTVÁROSI RÉSZÉN, ÚJ ÉPÍTÉSŰ, TELJESEN ELSZEPARÁLT, GARÁZZSAL ELVÁLASZOTT CSALÁDI HÁZ ELADÓ!!!

Veresegyház, Hegyek városrész csendes, kertvárosias részén, cca. 450 nm-es telek területtel, Új építésű, bruttó 181 nm-es, 4 szobás (nappali + 3 hálószoba, külön konyha, étkező), két szintes, vasbeton födémes (az emeleten is), hőszivattyús (levegő - vízes) padló fűtéssel, Dél - Keleti fekvésű, műanyag thermo dió színű (3 rétegű, 7 légkamrás) nyílászárós, szigetelt (15 cm dryvit), új építésű, a másik féltől teljesen elszaparált, garázzsal elválasztott, a másik lakóegységgel egy telken lévő családi ház (első) eladó.

Az ingatlan 30 cm-es síkra csiszolt téglából épül, 15 cm-es dryvit szigeteléssel, vasbeton födémmekel, cserép fedéssel, továbbá szimpla garázzsal.


Az ingatlan kulcsrakész állapotban kerül átadásra, riasztó előkészítéssel, szaniterekkel, burkolatokkal, rendezett kerttel, új kerítéssel, tér burkolt járdával. A belső ajtókat, szanitereket és a burkolatokat a belső műszaki tartalomban megjelölt összegig a vevő a saját igénye szerint választhatja.
A nyílászárók műanyag thermo dió színű hőszigetelt 3 rétegű, 7 légkamrás üvegezésűek, elektromos redőnnyel, igény estén rovarhálóval.

450 nm-es telek terület és a földszinti terasz és az emeleti erkély lehetőséget nyújt a pihenésre, kikapcsolódásra.


Iskola, óvoda, bölcsöde, posta, orvosi rendelő, bevásárlási lehetőség, patika, vonat - és busz megálló pár perces távolságra, az M0-ás, 3-mas főút személy gépkocsival gyorsan elérhető.


CSOK PLUSSZ, 5%-OS ÁFA IGÉNYELHETŐ!!!

Átadás: 1 éven belül, 2026. júniusban.

Építés éve: 2025
Méret: bruttó 181 nm
Falazat: 30 cm vastagságú síkra csiszolt okos tégla
Szigetelés: 15 cm dryvit
Nyílászárók: 3 rétegű, 7 légkamrás üvegezéssel, elektromos redőnnyel, igény esetén szúnyoghálóval.
Födém: vasbeton a földszinten és az emeleten is
Fűtés: hőszivattyús padlófűtéssel, igény esetén mennyezeti hűtéssel, áramellátás: H tarifa igényelhető
Állapot: új építésű
Parkolás: saját 22 nm-es garázs, elektromos kapu előkészítés.

Érdemes megnézni, bővebb információért hívjon bizalommal akár hétvégén is!
L.D

INGYENES hitel tanácsadás, CSOK Plusz ügyintézés, OTTHON START HITEL!
BANKFÜGGETLEN hitelcentrumunk az összes elérhető bank és hitelintézet ajánlatát versenyezteti az Ön kedvéért, ráadásul DÍJMENTESEN.

- Egyedi, bankfiókban nem elérhető kamat- és díjkedvezmények
- Hitelképesség vizsgálat
- Idő, energia és pénz megtakarítás
- Teljes hivatali ügyintézés
Apolzan Magdalena

Apolzan Magdalena
Agent de publicitate

Contactează-mă!

+36-70-908-Arată

Mai multe anunțuri

Agenție Imobiliară
GDN Rețea de agenții imobiliare - SZIGET
+36 24 656 320